18 - 242 Lakeport Road, St. Catharines, Ontario L2N 6V2

Listed for:
$465,000
3 beds
2 baths
Listed 27 days ago
Row / Townhouse for rent: 18 - 242 Lakeport Road, St. Catharines, Ontario L2N 6V2

View all 28 photos

About

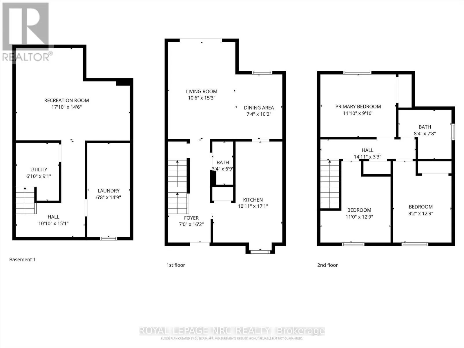
Cross Streets: Lake/Linwell. ** Directions: Between Lake St & Linwell Rd. Welcome to this charming 1200 square foot end unit townhome conveniently located in Century Village. Featuring 3 well sized bedrooms and 1.5 bathrooms. The main floor offers a beautifully updated walkthrough kitchen with extra cabinets, adjacent open dining area, a well proportioned living room with patio door access to your private rear patio and an updated 2 piece bathroom. The upper floor includes 3 good sized bedrooms and a fully renovated bathoom with walk-in shower. The modern fully finished lower level includes a spacious recroom, laundry and the utility room. Parking is conveniently located right in front of this unit. The affordable $360.00 condominium fees include water, cable, common area maintenance and condominium insurance. Owner averages under $100/month for gas & hydro. Century Village is located in a desirable North end a short distance to Port Dalhousie's Lakeside Park beach, Waterfront walking trail, Port Weller's Sunset beach, the Welland Canal trail and many other great amenities like shopping and easy QEW access. (id:27476)

Property Highlights

MLS® Number
X12847474
Type
Single Family
Community Name
443 - Lakeport
Maintenance Fee
360.00
Ownership Type
Condominium/Strata
Parking Space Total
1

Building

Building Type
Row / Townhouse
Storeys
2.00
Square Footage
1000 - 1199 sqft
Bathrooms Total
2
Bedrooms Above Ground
3
Bedrooms Total
3
Amenities
Visitor Parking
Exterior Finish
Brick, Vinyl siding
Fireplace Present
No
Basement Type
Full (Finished)
Basement Features
Building Heating Type
Forced air
Heating Fuel
Natural gas
Building Cooling Type
Central air conditioning

Location

Learn more about this property
Listing provided by:
ROYAL LEPAGE NRC REALTY
MLS® number:
X12847474
Agent:
Keith Moore
*Indicates required field
Name is required
Email is required
Please enter a valid phone number (e.g., 416-111-1111).