603 Bunting Road, St. Catharines, Ontario L2M 2Z9

Listed for:
$749,000
2 beds
3 baths
Listed 26 days ago
House for rent: 603 Bunting Road, St. Catharines, Ontario L2M 2Z9

View all 44 photos

About

Imagine watching the ships glide along the Welland Canal as you sip your morning coffee on the covered front porch. Enjoy leisurely strolls or bike rides along the scenic paved trail that stretches for miles beside the canal-right to the beach. This meticulously maintained all-brick detached bungalow offers the perfect blend of comfort, style, and versatility. The bright open-concept living room, dining, and kitchen area features beautiful hardwood flooring throughout, creating an inviting space ideal for everyday living and entertaining. The spacious primary bedroom boasts a walk-in closet and a private 4-piece ensuite with a relaxing jacuzzi tub and separate shower. Convenience continues with main floor laundry complete with utility tub and inside access to the oversized garage. The fully finished basement expands your living space with a large rec room featuring a cozy gas fireplace, an additional generous 3rd bedroom, a 4-piece bathroom with tub, and a kitchenette-perfect setup for an in-law suite, multi-generational living, or extended guest stays. A wonderful opportunity to enjoy comfortable bungalow living in a sought-after location close to nature, trails, and the waterfront. (id:27476)

Property Highlights

MLS® Number
40810342
Type
Single Family
Ownership Type
Freehold
Land Size
under 1/2 acre
Parking Space Total
8

Building

Building Type
House
Storeys
1.00
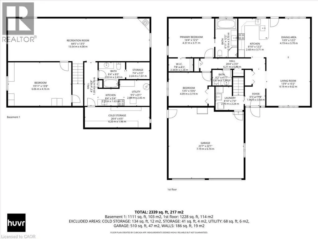
Square Footage
2428 sqft
Bathrooms Total
3
Bedrooms Above Ground
2
Bedrooms Total
2
Exterior Finish
Brick, Vinyl siding
Fireplace Present
Yes
Basement Type
Full (Finished)
Basement Features
Building Heating Type
Forced air
Heating Fuel
Natural gas
Building Cooling Type
Central air conditioning

Utilities

Water
Municipal water
Utility Sewer
Municipal sewage system

Room Layout

4pc Bathroom
Basement
Measurements not available
4pc Bathroom
Main level
Measurements not available
2pc Bathroom
Main level
Measurements not available
Laundry room
Main level
8'10'' x 7'4''
Bedroom
Main level
13'5'' x 10'6''
Primary Bedroom
Main level
14'5'' x 12'3''
Dining room
Main level
13'9'' x 12'3''
Kitchen
Main level
8'9'' x 12'3''
Living room
Main level
13'9'' x 15'3''

Location

Learn more about this property
Listing provided by:
RE/MAX Garden City Realty Inc.
MLS® number:
40810342
Agent:
Christine Gazzola
*Indicates required field
Name is required
Email is required
Please enter a valid phone number (e.g., 416-111-1111).