167 Dalhousie Avenue, St. Catharines, Ontario L2N 4X6

Listed for:
$3,000
3 beds
2 baths
Listed 13 days ago
House for rent: 167 Dalhousie Avenue, St. Catharines, Ontario L2N 4X6

View all 26 photos

About

Cross Streets: BETWEEN JOHNSTON AND CHRISTIE. ** Directions: MAIN STREET TO JOHNSTON STREET TO DALHOUSIE AVENUE. You have looked around and realized you don't want to live anywhere else other than Port Dalhousie. It's got it all. And 167 Dalhousie is perfect for you. A charming 3 bedroom (2 UP, 1 down) bungalow, that has been nicely renovated with its own mature backyard and private patio. The kitchen is brand new, opened UP in the living area and has loads of natural sunlight. 2 trendy bathrooms freshly redone with the lower level having a 3 piece down and a rec-room. For guest perhaps or a college kid that likes to hang around. This is where it's at! Previous utilities have been: Hydro $54.97, Gas $104.00, Water $84.20. (id:27476)

Property Highlights

MLS® Number
X12856380
Type
Single Family
Community Name
438 - Port Dalhousie
Ownership Type
Freehold
Land Size
35 x 165 FT
Parking Space Total
3

Building

Building Type
House
Storeys
1.00
Square Footage
700 - 1100 sqft
Bathrooms Total
2
Bedrooms Above Ground
2
Bedrooms Total
3
Exterior Finish
Vinyl siding
Fireplace Present
No
Basement Type
N/A (Finished)
Basement Features
Building Heating Type
Forced air
Heating Fuel
Natural gas
Building Cooling Type
Central air conditioning

Utilities

Water
Municipal water
Utility Sewer
Sanitary sewer

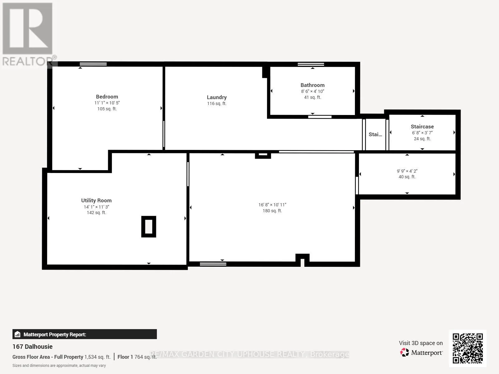
Room Layout

Family room
Lower level
5.03 m x 3.32 m
Bedroom 3
Lower level
3.39 m x 2.56 m
Laundry room
Lower level
5.75 m x 2.56 m
Utility room
Lower level
4.12 m x 3.32 m
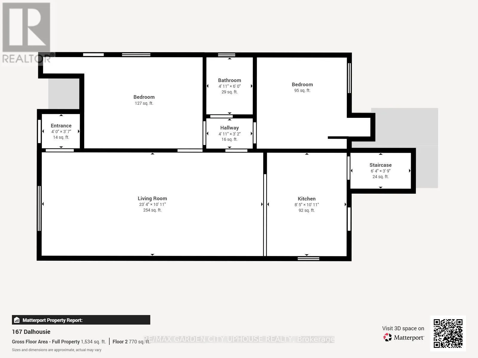
Living room
Main level
7.18 m x 4.56 m
Kitchen
Main level
3.32 m x 2.57 m
Sunroom
Main level
2.72 m x 2.02 m
Bedroom
Main level
3.82 m x 2.98 m
Bedroom 2
Main level
2.98 m x 2.93 m

Location

Learn more about this property
Listing provided by:
RE/MAX GARDEN CITY UPHOUSE REALTY
MLS® number:
X12856380
Agent:
Karl Vanderkuip
*Indicates required field
Name is required
Email is required
Please enter a valid phone number (e.g., 416-111-1111).