18 A,b,c,d Valley Road, St. Catharines, Ontario L2S 1Y6

Listed for:
$789,000
4 beds
1 baths
Listed 62 days ago
18 A,b,c,d Valley Road, St. Catharines, Ontario L2S 1Y6

View all 16 photos

About

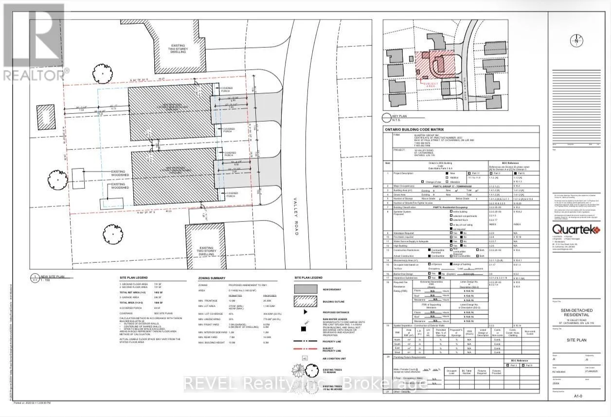
Cross Streets: Pelham & Louth. ** Directions: Pelham to Louth to Valley. Significant savings with the Gov't supporting new builds; 50% off servicing costs and no HST on new homes. Property has been approved to build four homes. Survey and all approvals have been completed and available for interested buyers. Plans are for 2 Semi-detached homes with approved ADU's in basements. 1400 + Sq feet, 2 storey Semi, plus lower unit at 650 +/- Sq Feet ADU in basement. (id:27476)

Property Highlights

MLS® Number
X12906030
Type
Vacant Land
Community Name
462 - Rykert/Vansickle
Land Size
93 x 132 FT|under 1/2 acre

Building

Storeys
1.00
Square Footage
1100 - 1500 sqft
Bathrooms Total
1
Bedrooms Above Ground
4
Bedrooms Total
4
Fireplace Present
No
Basement Type
Basement Features
Building Heating Type
Forced air
Heating Fuel
Natural gas
Building Cooling Type
Central air conditioning

Utilities

Utility Sewer
Sanitary sewer

Room Layout

Utility room
Basement
5.61 m x 5.61 m
Exercise room
Basement
5.61 m x 4.7 m
Bedroom
Main level
4.7 m x 2.44 m
Bedroom 2
Main level
3.66 m x 2.44 m
Bedroom 3
Main level
4.39 m x 2.44 m
Living room
Main level
4.88 m x 3.48 m
Kitchen
Main level
3.17 m x 2.26 m
Bedroom 4
Main level
4.39 m x 2.44 m
Bathroom
Main level
3 m x 2.5 m

Location

Learn more about this property
Listing provided by:
REVEL Realty Inc., Brokerage
MLS® number:
X12906030
Agent:
Joe Cosby
*Indicates required field
Name is required
Email is required
Please enter a valid phone number (e.g., 416-111-1111).