140 Eastchester Avenue, St. Catharines, Ontario L2P 2Z4

Listed for:
$649,000
4 beds
3 baths
Listed 16 days ago
Triplex for rent: 140 Eastchester Avenue, St. Catharines, Ontario L2P 2Z4

View all 38 photos

About

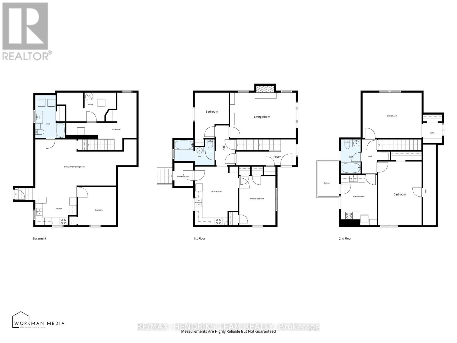
Cross Streets: Bunting Rd. ** Directions: Bunting Rd to Eastchester Ave. Turnkey legal triplex in the heart of St. Catharines offering strong income with an approximate 7% cap rate. Rarely do you find a well maintained property of with three self-contained units, each with separate hydro meters and private in-suite laundry. The building is configured as main floor, upper and lower units with thoughtful updates throughout. A common front foyer provides access to the main and upper units, while the lower unit features a separate rear entrance. The main floor unit offers a spacious living area, oversized kitchen with ample cabinetry, two bedrooms and a four-piece bathroom. This unit also benefits from exclusive access to a private basement space ideal for storage along with its own laundry. The upper unit is nicely updated and features a bright living space, eat-in kitchen with walkout to a private deck, one bedroom, four-piece bathroom and separate laundry. The lower level unit has been well finished with updates including newer kitchen, bathroom and flooring. Offering a large living area, dedicated dining space, one bedroom, four-piece bathroom and its own laundry. Parking is available at both the front and rear of the property. Currently fully tenanted with quality tenants on month-to-month agreements providing immediate income or the option for vacancy for your own use if desired. Ideal for investors seeking a solid, low-maintenance asset or buyers looking to live in one unit while offsetting costs with rental income. Photos have been virtually decluttered to remove tenant belongings. (id:27476)

Property Highlights

MLS® Number
X12918522
Type
Multi-family
Community Name
450 - E. Chester
Land Size
67.4 x 110 FT
Parking Space Total
5

Building

Building Type
Triplex
Storeys
1.50
Square Footage
1500 - 2000 sqft
Bathrooms Total
3
Bedrooms Above Ground
3
Bedrooms Total
4
Amenities
Park, Place of Worship, Public Transit
Exterior Finish
Brick, Vinyl siding
Fireplace Present
No
Basement Type
N/A
Basement Features
Apartment in basement
Building Heating Type
Radiant heat
Heating Fuel
Natural gas
Building Cooling Type
Window air conditioner

Utilities

Water
Municipal water
Utility Sewer
Sanitary sewer

Room Layout

Other
Basement
5.66 m x 4.65 m
Utility room
Basement
4.78 m x 2.34 m
Kitchen
Lower level
3.58 m x 3.2 m
Living room
Lower level
7.14 m x 3.71 m
Bedroom
Lower level
3.1 m x 3.07 m
Living room
Main level
5.33 m x 3.66 m
Bedroom
Main level
3.68 m x 2.74 m
Kitchen
Main level
4.75 m x 3.48 m
Primary Bedroom
Main level
3.96 m x 2.92 m
Living room
Upper Level
4.78 m x 3.66 m
Bedroom
Upper Level
5.13 m x 3.51 m
Kitchen
Upper Level
4.06 m x 2.9 m

Location

Learn more about this property
Listing provided by:
RE/MAX HENDRIKS TEAM REALTY
MLS® number:
X12918522
Agent:
Chris Hendriks
*Indicates required field
Name is required
Email is required
Please enter a valid phone number (e.g., 416-111-1111).