27 Lorne Street, St. Catharines, Ontario L2P 3C6

Listed for:
$399,900
2 beds
2 baths
Listed 5 days ago
House for rent: 27 Lorne Street, St. Catharines, Ontario L2P 3C6

View all 30 photos

About

Cross Streets: Grantham Ave. ** Directions: Grantham Ave to Arlington Ave to Lorne St. Estate Sale! Well maintained, low maintenance detached bungalow awaits your personal touches. Nestled on a quiet, tree-lined street, its offers a long private paved driveway to a detached garage and a manageable sized backyard with lawn area and covered patio. Back to the front of the home, step into the front vestibule and you will quickly notice the nice character touches that will be found in this home - from the original hardwood floors to the natural wood trim. Large windows for lots of natural light in the spacious living room and formal dining room. The kitchen has plenty of oak cabinetry and you could open it up to the living and dining rooms to give it a more modern flow. 2 bedrooms along with an updated 4 piece bathroom complete this level. Past the side entry to downstairs, there's a finished rec room with a freestanding gas fireplace, a 2 piece bathroom, laundry room, plus mechanical and workshop/storage rooms. Central air and updated forced air gas furnace, 100 amp breaker service plus updated windows and roof shingles. An excellent opportunity to buy an affordable home at a great price! (id:27476)

Property Highlights

MLS® Number
X12930264
Type
Single Family
Community Name
450 - E. Chester
Ownership Type
Freehold
Land Size
37 x 100 FT
Parking Space Total
4

Building

Building Type
House
Storeys
1.00
Square Footage
700 - 1100 sqft
Bathrooms Total
2
Bedrooms Above Ground
2
Bedrooms Total
2
Amenities
Fireplace(s)
Exterior Finish
Vinyl siding
Fireplace Present
Yes
Basement Type
N/A (Partially finished)
Basement Features
Building Heating Type
Forced air
Heating Fuel
Natural gas
Building Cooling Type
Central air conditioning

Utilities

Water
Municipal water
Utility Sewer
Sanitary sewer

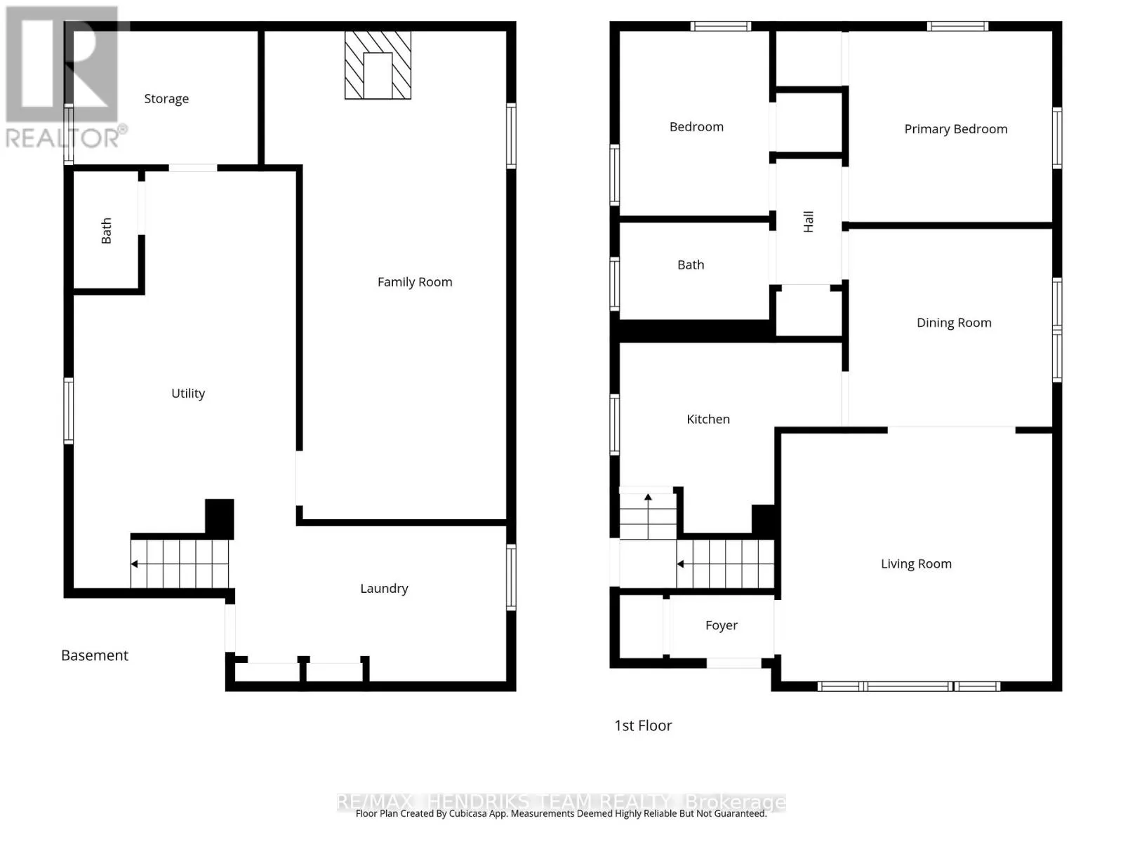
Room Layout

Recreational, Games room
Basement
7.81 m x 3.87 m
Laundry room
Basement
6.92 m x 2.49 m
Utility room
Basement
5.66 m x 3.56 m
Other
Basement
2.94 m x 2.14 m
Living room
Main level
4.34 m x 3.97 m
Kitchen
Main level
3.56 m x 3.05 m
Dining room
Main level
3.26 m x 3.17 m
Primary Bedroom
Main level
3.26 m x 3.05 m
Bedroom
Main level
2.94 m x 2.38 m

Location

Learn more about this property
Listing provided by:
RE/MAX HENDRIKS TEAM REALTY
MLS® number:
X12930264
Agent:
Jerry Hendriks
*Indicates required field
Name is required
Email is required
Please enter a valid phone number (e.g., 416-111-1111).