196 King Street, St. Catharines, Ontario L2R 3J7

Listed for:
$699,900
0 beds
0 baths
Listed 4 days ago
Offices for rent: 196 King Street, St. Catharines, Ontario L2R 3J7

View all 37 photos

About

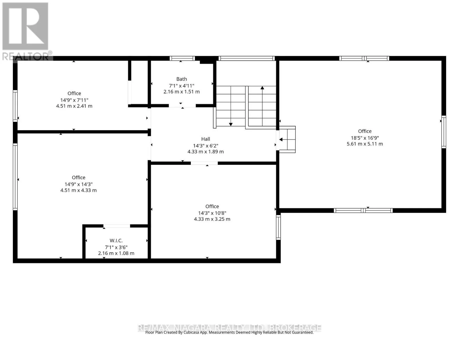
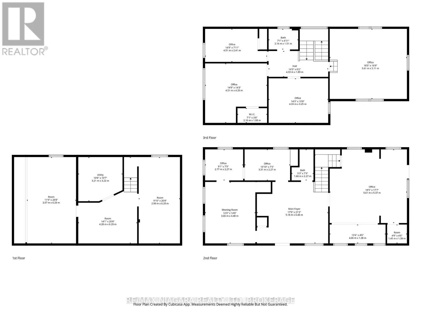
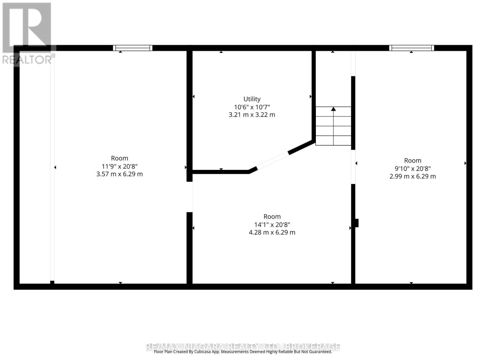
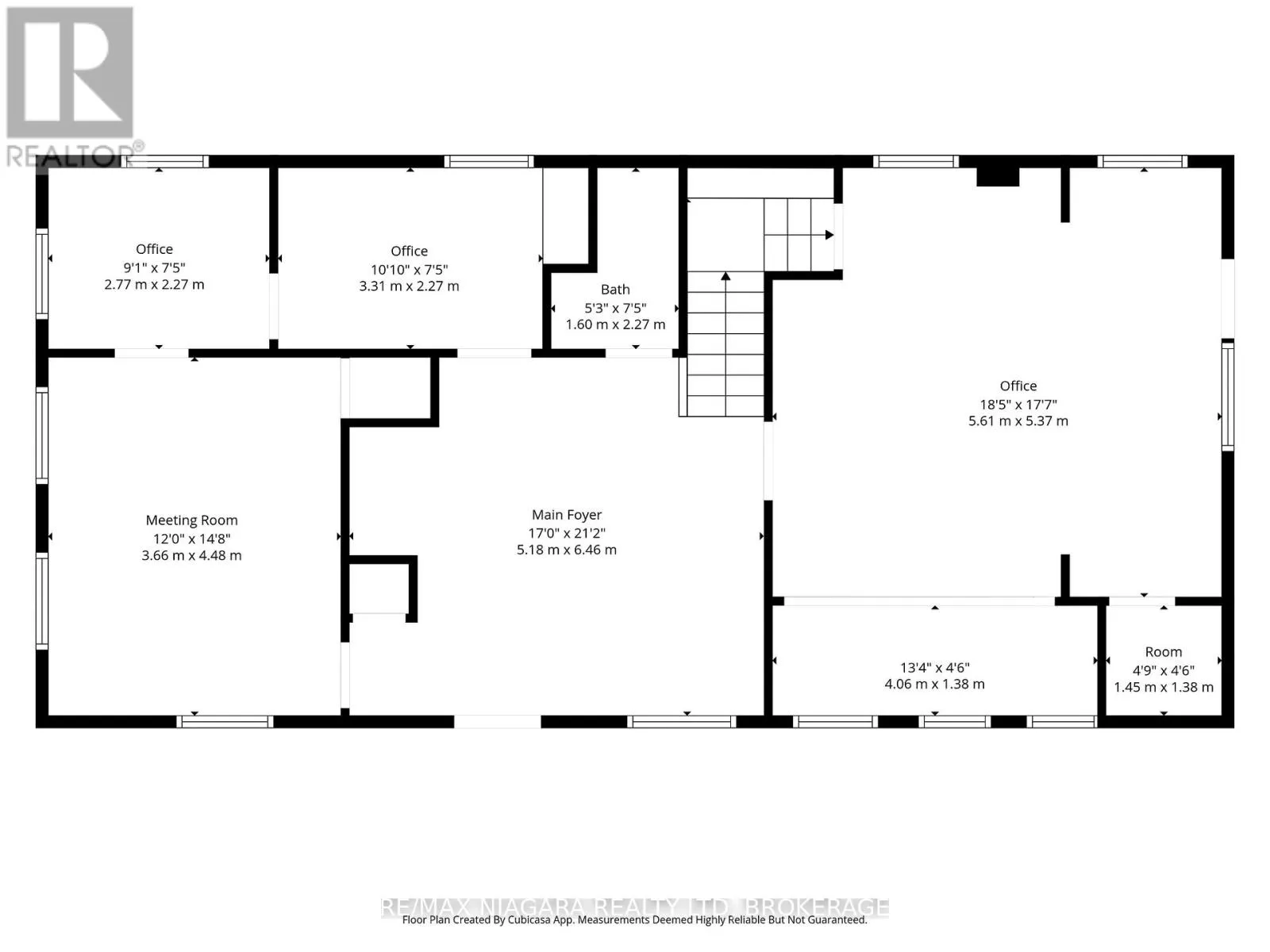
Cross Streets: St. Paul St. and Geneva St. ** Directions: Head north on Geneva St, left on King St. Prime opportunity to acquire a downtown property offering a modern, turn-key mixed-use building with exceptional street exposure, rare private on-site parking, and outstanding long-term development potential. Ideally suited for investors or owner-operators, this versatile asset combines strong commercial and residential components with flexible M2 zoning, supporting a wide range of uses including commercial, residential, or mixed-use development. The property features a welcoming wrap-around porch that enhances curb appeal, while the interior offers a functional, adaptable layout suitable for a variety of professional uses. Multiple exterior entrances provide excellent flexibility for single or multi-tenant configurations, offering exceptional accessibility and future adaptability. Offering approximately 2,235 sq. ft. of finished above-grade space plus an additional 800 sq. ft. in the basement, this property presents an excellent opportunity to customize to your needs. The main floor features a spacious open-concept co-working office, two private offices, a boardroom-style office, and an inviting front foyer complete with a coffee station and a convenient 2-piece washroom. The upper level includes an oversized executive office, three additional private offices, and a well-appointed 3-piece bathroom. Positioned on a high-traffic downtown corridor surrounded by established businesses, restaurants, cafes, and local amenities, the property benefits from consistent exposure and strong foot traffic. Just steps from the Meridian Centre, FirstOntario Performing Arts Centre, transit hub, GO Station, and with quick access to Highway 406 and the QEW, the location offers unmatched connectivity across the region. Whether expanding an investment portfolio or securing a strategic location for a growing business, this property delivers exceptional visibility, versatility, and future development potential in one of the city's most desirable downtown settings. (id:27476)

Property Highlights

MLS® Number
X12949112
Type
Office
Community Name
451 - Downtown
Land Size
Bldg=40.9 x 142 FT
Parking Space Total
8

Building

Building Type
Offices
Square Footage
2235 sqft
Fireplace Present
No
Basement Type
Basement Features
Building Heating Type
Forced air
Heating Fuel
Natural gas
Building Cooling Type
Fully air conditioned

Utilities

Water
Municipal water

Location

Learn more about this property
Listing provided by:
RE/MAX NIAGARA REALTY LTD, BROKERAGE
MLS® number:
X12949112
Agent:
Trish Postman
*Indicates required field
Name is required
Email is required
Please enter a valid phone number (e.g., 416-111-1111).