228 Queenston Street, St. Catharines, Ontario L2P 2X1

Listed for:
$349,900
0 beds
0 baths
Listed 14 days ago
228 Queenston Street, St. Catharines, Ontario L2P 2X1

View all 4 photos

About

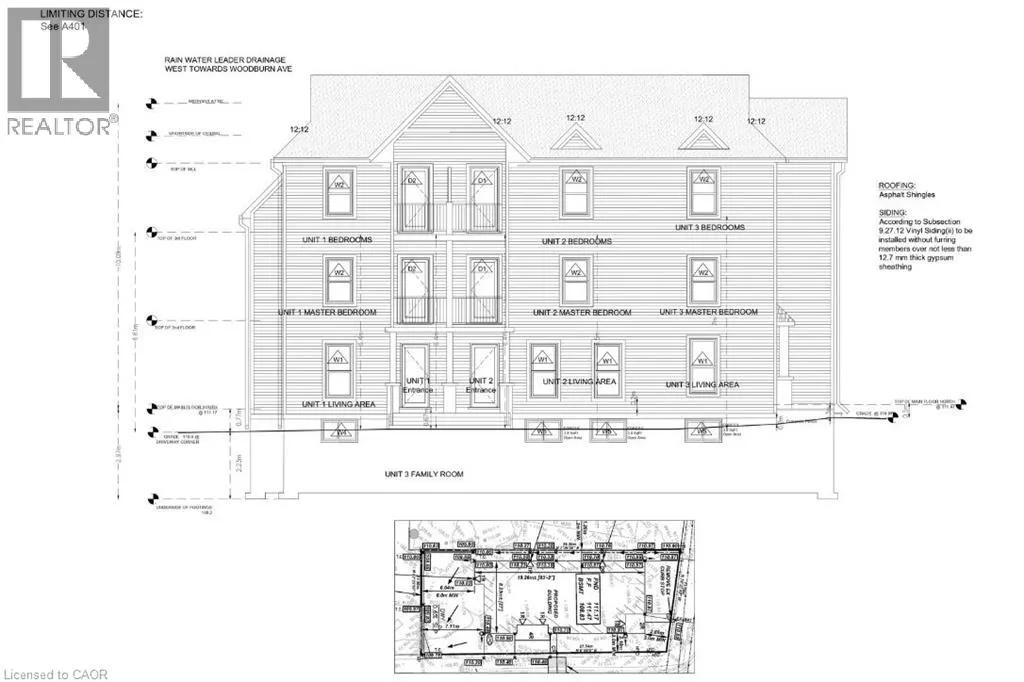
Vacant building lot with approved plans for a 3-unit residential development in a growing area of St. Catharines. The property is zoned M1 and benefits from an Official Plan designation supporting mixed-use, including residential, offering strong flexibility for redevelopment . Significant upfront work has already been completed, including minor variance approval and full building permit issuance for a purpose-built triplex. Plans allow for a 3-storey residential building with three self-contained units, designed in compliance with current building code requirements . The current owner has invested over $55,000 in pre-development costs, including permits, development charges, servicing upgrades, and site preparation. This represents a major time and cost savings for a buyer looking to move forward quickly with construction. The lot is approximately 38 ft frontage with good depth and is located along Queenston Street with convenient access to downtown St. Catharines, transit, and nearby commercial amenities. The surrounding area continues to see ongoing redevelopment and intensification, making this an attractive opportunity for investors and builders alike. (id:27476)

Property Highlights

MLS® Number
40817293
Type
Vacant Land
Ownership Type
Freehold
Land Size
under 1/2 acre

Building

Amenities
Public Transit, Schools
Fireplace Present
No
Basement Type
None
Basement Features
Building Heating Type
Heating Fuel
Building Cooling Type

Utilities

Water
Municipal water
Utility Sewer
Municipal sewage system

Location

Learn more about this property
Listing provided by:
M. Marel Real Estate Inc.
MLS® number:
40817293
Agent:
Casey Van Der Marel
*Indicates required field
Name is required
Email is required
Please enter a valid phone number (e.g., 416-111-1111).