42 Union Street, St. Catharines, Ontario L2S 2R2

Listed for:
$589,900
3 beds
1 baths
Listed 6 days ago
House for rent: 42 Union Street, St. Catharines, Ontario L2S 2R2

View all 21 photos

About

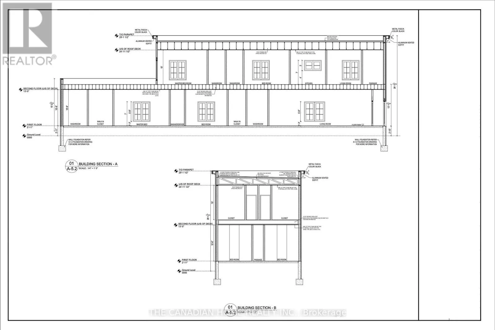
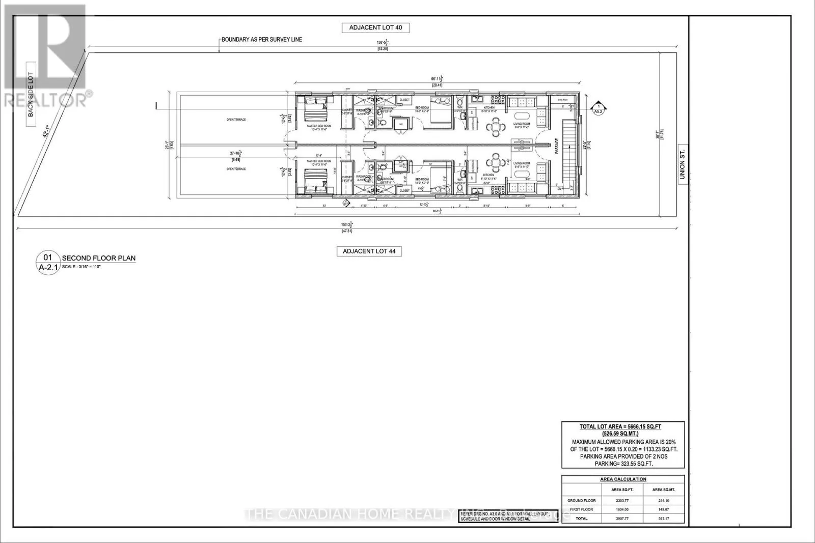
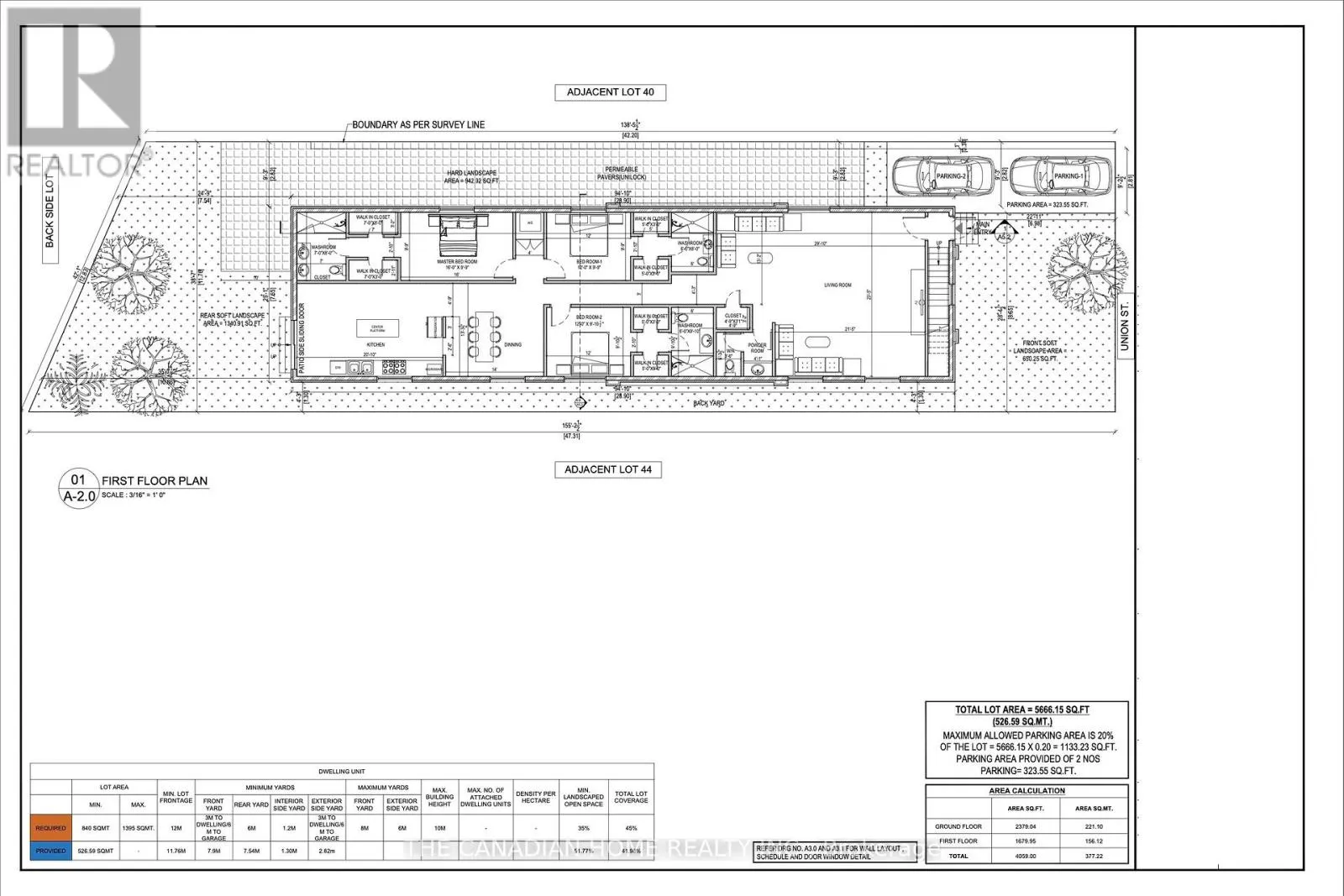
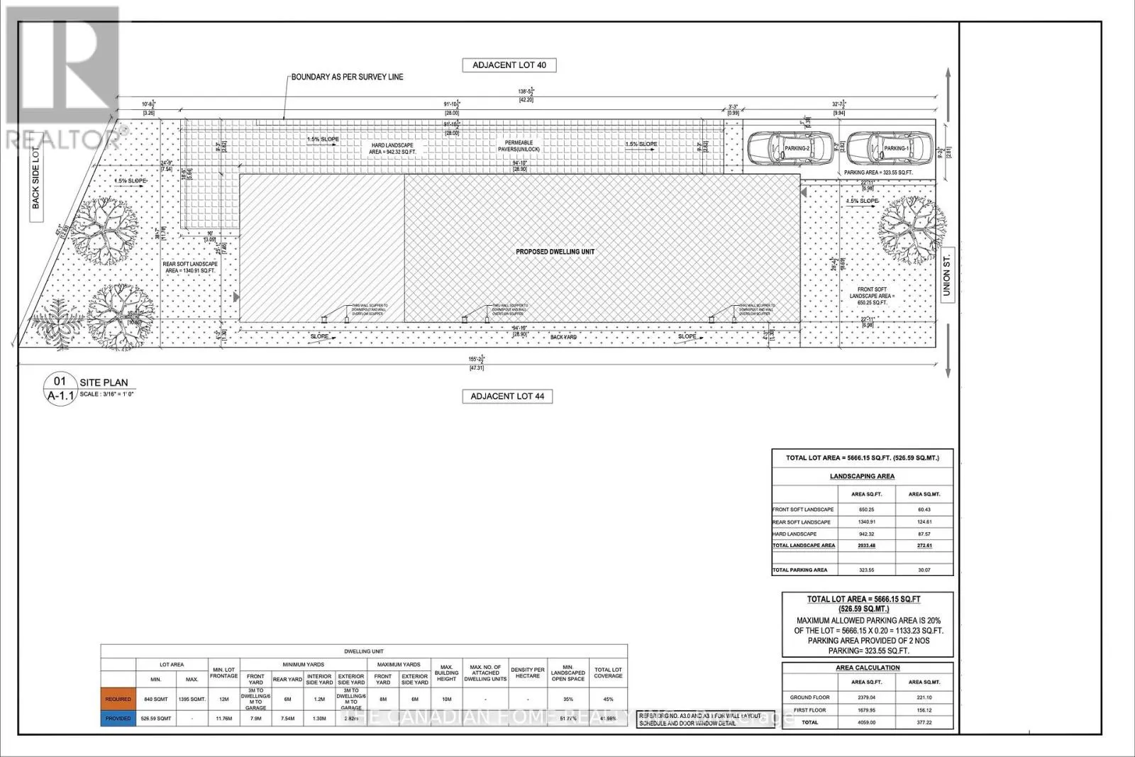
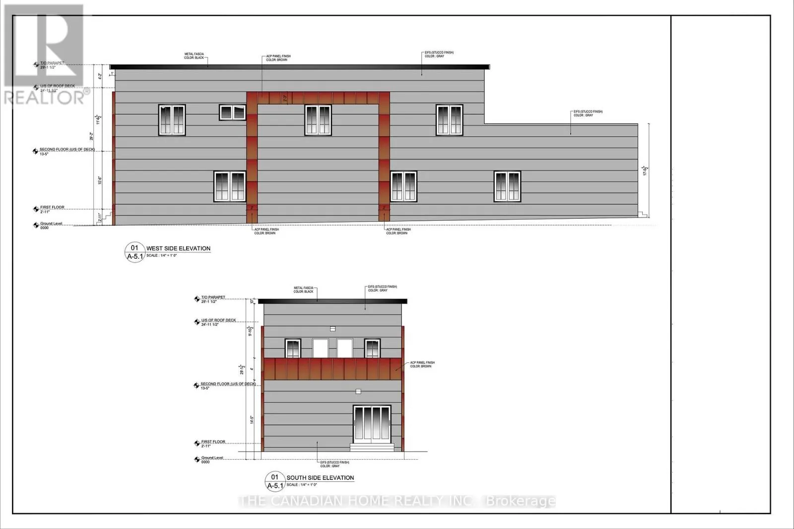
Rykert-Union Approved shovel-ready triplex development opportunity in St. Catharines! Calling all investors,builders, and savvy buyers. This is a rare chance to begin construction immediately with anapproved triplex permit already in hand, avoiding months of planning delays and significantsoft costs. Plans are completed for approximately 3,900-4,000 sqft of total build, designed asthree self-contained residential units featuring efficient layouts, multiple washrooms, andmodern exterior elevations tailored for strong rental appeal. Ideal for investors seekinglong-term hold cash flow, a BRRRR strategy, or builders looking for a ready-to-go project withapprovals secured and equally attractive for a buyer looking to live in one unit and rent theother two for supplemental income. Situated in a desirable neighbourhood close to schools,Montessori and childcare centres, parks, public transit, shopping, and everyday amenities, withconvenient access to downtown St. Catharines, Brock University, the Pen Centre, and majorroutes. A turnkey multi-unit opportunity in a growing rental market (id:27476)

Property Highlights

MLS® Number
X13021732
Type
Single Family
Community Name
458 - Western Hill
Ownership Type
Freehold
Land Size
38.5 x 155.2 FT
Parking Space Total
2

Building

Building Type
House
Storeys
1.50
Square Footage
1100 - 1500 sqft
Bathrooms Total
1
Bedrooms Above Ground
3
Bedrooms Total
3
Amenities
Park, Public Transit
Exterior Finish
Stone, Stucco
Fireplace Present
Yes
Basement Type
Partial (Unfinished)
Basement Features
Building Heating Type
Forced air
Heating Fuel
Natural gas
Building Cooling Type
Central air conditioning

Utilities

Water
Municipal water
Utility Sewer
Sanitary sewer

Room Layout

Bedroom
Second level
2.13 m x 3.66 m
Bedroom
Second level
3.66 m x 3.66 m
Kitchen
Main level
3.17 m x 3.66 m
Living room
Main level
3.66 m x 5.18 m
Bedroom
Main level
2.44 m x 3.35 m

Location

Learn more about this property
Listing provided by:
THE CANADIAN HOME REALTY INC.
MLS® number:
X13021732
Agent:
Udhey Makhni
*Indicates required field
Name is required
Email is required
Please enter a valid phone number (e.g., 416-111-1111).