36 Thomas Street S, St. Marys, Ontario N0M 2V0

Listed for:
$339,900
6 beds
1 baths
Listed 7 days ago
House for rent: 36 Thomas Street S, St. Marys, Ontario N0M 2V0

View all 23 photos

About

Cross Streets: Thomas and Jones. ** Directions: From Queen Street West turn south on Thomas Street , Property is last house on the right on the corner of Thomas and Jones Street . Sign on. Close to downtown and the River in St Marys this charming 2 or 3 bedroom home has lots to offer those that are just starting out or are retiring . This property sits on a corner lot with ample parking and inside the spacious interior has had lots of thoughtful renovations ove the years . Open concept kitchen and living area and good sized rooms includes a large utility-laundry area and a large side sunporch . Gas heat and central air . Two storage sheds included and all appliances included so you can move right in . Quick possession is possible . (id:27476)

Property Highlights

MLS® Number
X12771062
Type
Single Family
Community Name
St. Marys
Ownership Type
Freehold
Land Size
67 x 69 FT
Parking Space Total
2

Building

Building Type
House
Storeys
1.00
Square Footage
700 - 1100 sqft
Bathrooms Total
1
Bedrooms Above Ground
3
Bedrooms Total
6
Amenities
Place of Worship, Schools
Exterior Finish
Aluminum siding
Fireplace Present
No
Basement Type
N/A (Unfinished), N/A, Partial
Basement Features
Walk-up
Building Heating Type
Forced air
Heating Fuel
Natural gas
Building Cooling Type
Central air conditioning

Utilities

Water
Municipal water
Utility Sewer
Sanitary sewer

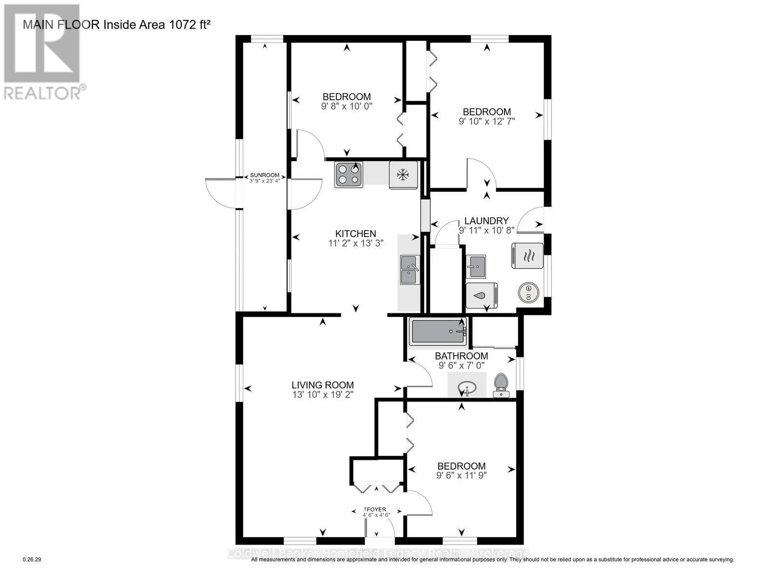
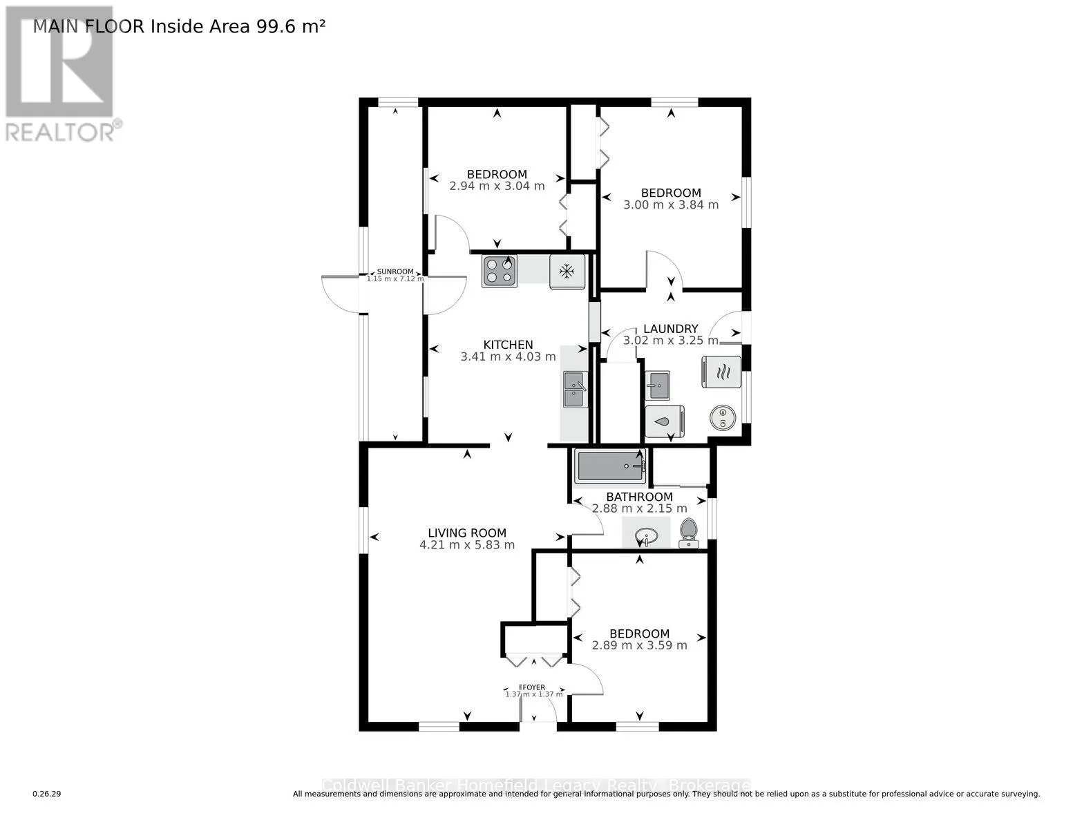
Room Layout

Living room
Main level
4.21 m x 5.83 m
Bedroom 2
Main level
2.89 m x 3.59 m
Bathroom
Main level
2.88 m x 2.15 m
Kitchen
Main level
3.41 m x 4.03 m
Utility room
Main level
3.02 m x 3.25 m
Bedroom 2
Main level
2.94 m x 3.04 m
Primary Bedroom
Main level
3 m x 3.84 m
Foyer
Main level
1.37 m x 3.59 m
Sunroom
Main level
1.15 m x 7.12 m
Bedroom 3
Main level
3 m x 3.84 m

Location

Learn more about this property
Listing provided by:
Coldwell Banker Homefield Legacy Realty
MLS® number:
X12771062
Agent:
Ron Morrison
*Indicates required field
Name is required
Email is required
Please enter a valid phone number (e.g., 416-111-1111).