Unit 4 - 340 Highbury Avenue, St. Thomas, Ontario N5P 4J4

Listed for:
$35
0 beds
1 baths
Listed 40 days ago
Unit 4 - 340 Highbury Avenue, St. Thomas, Ontario N5P 4J4

View all 6 photos

About

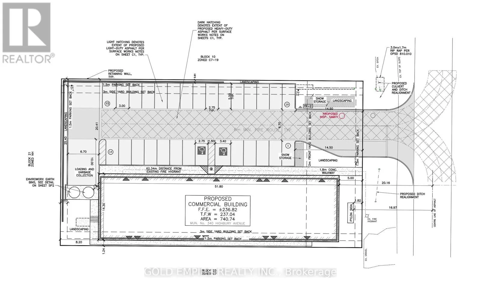
Cross Streets: Hughbury Ave S & Ron Mcneil Line. ** Directions: Right side of the Highbury Road. Presenting a rare opportunity to lease a prime commercial unit directly across from the upcoming EV Battery Plantset to be one of the regions most significant economic drivers on bustling Highbury Avenue in St. Thomas, offering exceptional visibility to thousands of vehicles daily. This versatile space, with multiple permitted uses including animal clinic, convenience store, fast food restaurant, automotive retail, or retail food store, is strategically positioned in one of Ontario's fastest-growing economic hubs, ensuring steady foot traffic, excellent accessibility, and strong investment potential. As reported by CBC News on August 6, 2025, initial production at the EV Battery Plant is slated for early 2027, expected to generate 3,000 direct jobs and an estimated 30,000 spinoff jobs, driving unprecedented demand for local services and making this location ideal for entrepreneurs and investors ready to capitalize on the area's rapid growth. (id:27476)

Property Highlights

MLS® Number
X12344679
Type
Retail
Community Name
St. Thomas
Land Size
Unit=117.95 x 213.25 FT
Parking Space Total
29

Building

Square Footage
1132 sqft
Bathrooms Total
1
Amenities
Highway
Fireplace Present
No
Basement Type
Basement Features
Building Heating Type
Other
Heating Fuel
Building Cooling Type
Fully air conditioned

Utilities

Water
Municipal water

Location

Learn more about this property
Listing provided by:
GOLD EMPIRE REALTY INC.
MLS® number:
X12344679
Agent:
Narinder Bhangoo
*Indicates required field
Name is required
Email is required
Please enter a valid phone number (e.g., 416-111-1111).