#4 - 41 Mondamin Street, St. Thomas, Ontario N5P 2V3

Listed for:
$20
0 beds
0 baths
Listed 40 days ago
#4 - 41 Mondamin Street, St. Thomas, Ontario N5P 2V3

View all 10 photos

About

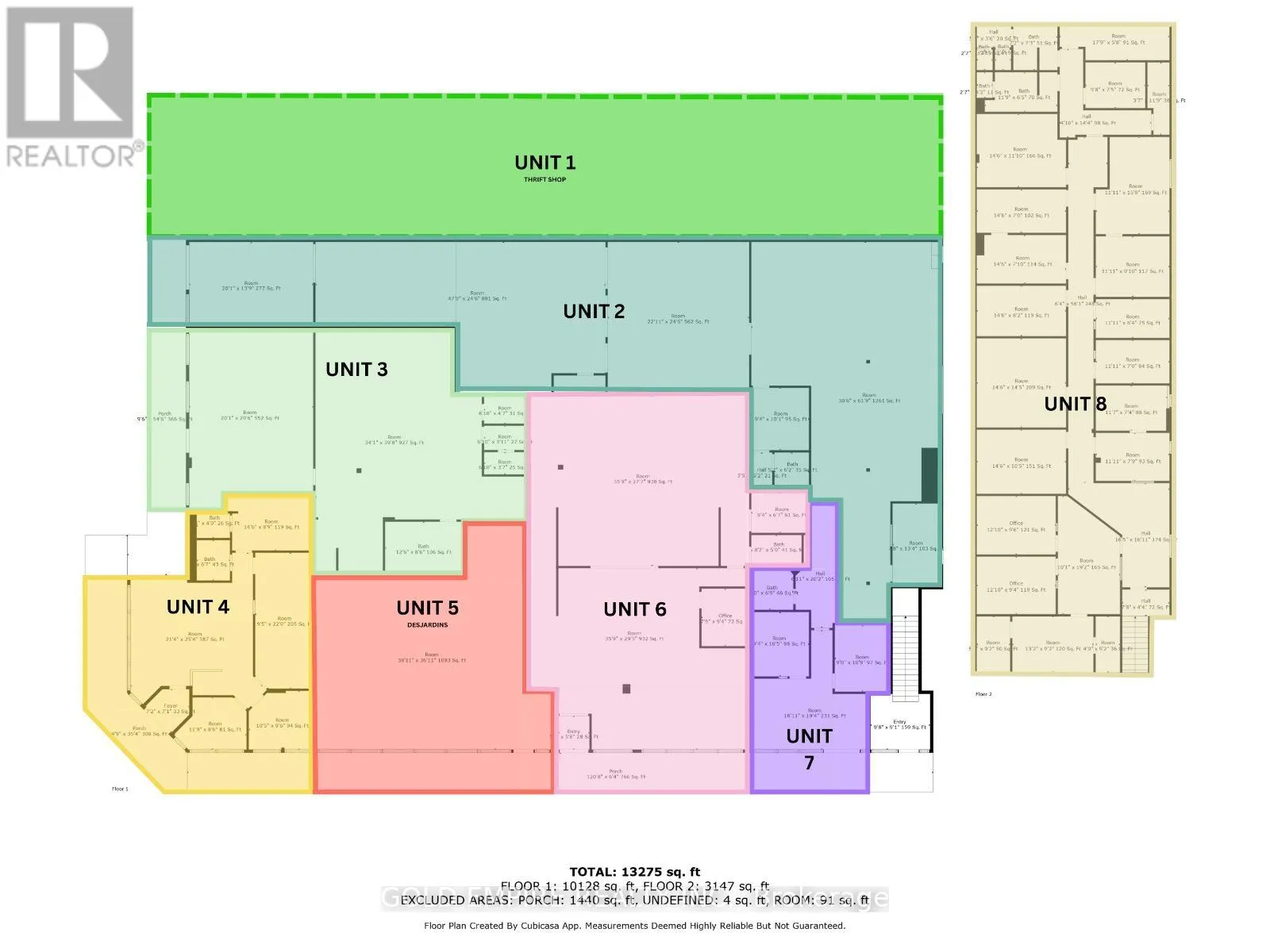
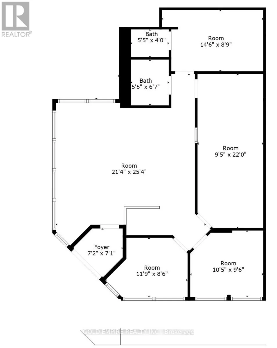
Cross Streets: Scott St. ** Directions: Turn left onto Mondamin St coming East on Talbot St. This prime commercial space in the heart of Downtown St. Thomas offers endless possibilities for your business. Zoned C2, it allows for a wide range of uses, including retail, office, restaurant, workshop, entertainment, and other permitted commercial uses.The building offers flexible layouts, with the ability to combine multiple units to create a larger contiguous space and greater overall square footage. Please refer to the plans in the attachments to explore the various unit combinations and layout options available.Located in a high-traffic area with excellent visibility and close proximity to other thriving businesses, this space is ideal for entrepreneurs looking to make a strong presence in the downtown core. Rent is $20 PSF + $5 TMI. (id:27476)

Property Highlights

MLS® Number
X12652532
Type
Retail
Community Name
St. Thomas
Land Size
Bldg=196.15 x 184.62 FT

Building

Square Footage
1250 sqft
Fireplace Present
No
Basement Type
Basement Features
Building Heating Type
Forced air
Heating Fuel
Natural gas
Building Cooling Type
Fully air conditioned

Utilities

Water
Municipal water

Location

Learn more about this property
Listing provided by:
GOLD EMPIRE REALTY INC.
MLS® number:
X12652532
Agent:
Sukhman Jassal
*Indicates required field
Name is required
Email is required
Please enter a valid phone number (e.g., 416-111-1111).