45 Shaw Valley Drive, St. Thomas, Ontario N5R 6J9

Listed for:
$1,198,000
5 beds
5 baths
Listed 1 day ago
House for rent: 45 Shaw Valley Drive, St. Thomas, Ontario N5R 6J9

View all 50 photos

About

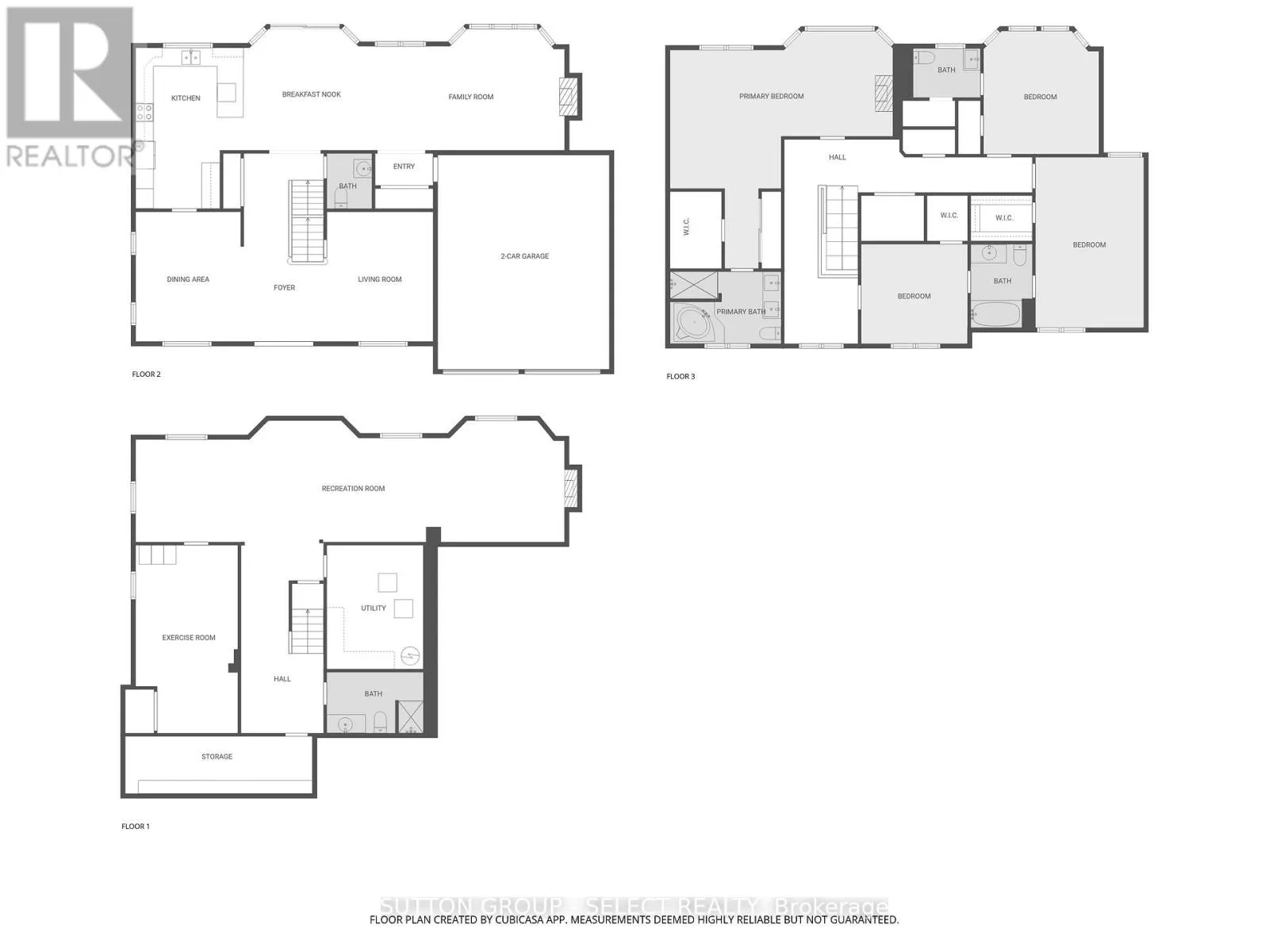
Cross Streets: Sunset / Shaw Valley. ** Directions: South on Sunset Drive, right onto Shaw Valley Drive. Welcome to the crown of Shaw Valley - a former model home designed by the builder to showcase "everything possible." With over 4,400sq/ft of finished living space, 5 bedrooms, & 5 bathrooms (3 ensuites), this home delivers exceptional scale, design, & an unforgettable backyard setting. The main floor sets the tone with a sprawling foyer, formal dining framed by tray ceilings, & a large den with matching ceiling detail-perfect as a home office. At the heart of the home sits an award-winning kitchen with new appliances, overlooking the expansive open-concept living space designed for entertaining & everyday comfort. Wall-to-wall rear windows flood the home with natural light while showcasing the spectacular private ravine lot. Stepping outside is a gift of its own - a two-tier deck overlooks an incredibly private backyard oasis featuring a gorgeous saltwater pool surrounded by new stamped concrete that connects into the new front driveway, walkway, & steps. With no rear neighbours & nature as your backdrop, the level of privacy here is rarely found in town. Upstairs, additional rear-facing windows brighten every room while framing ravine views. A charming alcove niche creates the ideal office. The primary suite features a sitting area with gas fireplace and a huge 5-piece ensuite. The 2nd bedroom boasts a turret ceiling and private 3PC ensuite, while 2 more great bedrooms share a Jack & Jill bathroom. 2nd floor laundry adds everyday convenience. The finished lower level continues the theme of space with large bright windows, a spacious rec-room with a 3rd gas fireplace, 5th bedroom, 4PC bath, & abundant storage. Out back, mornings often begin with deer wandering across the ravine (really!), while evenings are spent relaxing beside the glow of the pool. It feels like country living, yet you're just 5 minutes to St. Thomas amenities and under 15 minutes to Lake Erie. 45 Shaw Valley Drive delivers scale, privacy, & luxury in a setting that truly stands apart. (id:27476)

Property Highlights

MLS® Number
X13002728
Type
Single Family
Community Name
St. Thomas
Ownership Type
Freehold
Land Size
59.5 x 123.2 FT
Parking Space Total
6

Building

Building Type
House
Storeys
2.00
Square Footage
3000 - 3500 sqft
Bathrooms Total
5
Bedrooms Above Ground
4
Bedrooms Total
5
Amenities
Fireplace(s) Beach, Golf Nearby, Hospital, Marina
Exterior Finish
Brick
Fireplace Present
Yes
Basement Type
Full (Finished)
Basement Features
Building Heating Type
Forced air
Heating Fuel
Natural gas
Building Cooling Type
Central air conditioning

Utilities

Water
Municipal water
Utility Sewer
Septic System

Room Layout

Bathroom
Second level
Measurements not available
Bathroom
Second level
Measurements not available
Bathroom
Second level
Measurements not available
Primary Bedroom
Second level
5.38 m x 3.45 m
Bedroom 2
Second level
3.65 m x 3.55 m
Bedroom 3
Second level
4.26 m x 3.4 m
Bedroom 4
Second level
4.1 m x 3.65 m
Utility room
Basement
Measurements not available
Bathroom
Basement
Measurements not available
Recreational, Games room
Basement
9.9 m x 4.1 m
Foyer
Main level
3.9 m x 2.8 m
Bathroom
Main level
Measurements not available
Den
Main level
2.8 m x 3.4 m
Dining room
Main level
4.31 m x 3.4 m
Kitchen
Main level
5.23 m x 3.14 m
Living room
Main level
4.26 m x 3.4 m

Location

Learn more about this property
Listing provided by:
SUTTON GROUP - SELECT REALTY
MLS® number:
X13002728
Agent:
Shawn Nagy
*Indicates required field
Name is required
Email is required
Please enter a valid phone number (e.g., 416-111-1111).