1004 Bateman Road, Stirling-Rawdon, Ontario K0K 3C0

Listed for:
$389,900
2 beds
2 baths
Listed 8 days ago
House for rent: 1004 Bateman Road, Stirling-Rawdon, Ontario K0K 3C0

View all 46 photos

About

Cross Streets: Bronson Rapids Rd & Mulberry Rd. ** Directions: From Hwy 62, follow Springbrook Rd. to Bronson Rapids Road to Bateman Road. Welcome to peaceful country living just outside the quiet community of Springbrook. Set on approximately 1 acre along a quiet country road, this well maintained home offers privacy, comfort and plenty of potential. The home features 2 bedrooms with the possibility of creating a third along with 2 bathrooms including a spacious primary bedroom complete with its own 3 piece ensuite. Inside the home is tidy, well cared for and ready for new owners to make it their own. The basement provides excellent additional living space with a cozy rec room and the potential for another bedroom or office area. Start your mornings or unwind in the evenings while relaxing in the inviting screened in porch, a perfect spot to enjoy the peaceful surroundings. Outside the property includes a 1.5 car attached garage as well as additional sheds that provide great storage and workspace options. If you are looking for a quiet rural setting with room to grow, this charming property offers the perfect opportunity to enjoy country living while still being within a short drive to nearby amenities. Its a great low maintenance home for those downsizing and first time home buyers. (id:27476)

Property Highlights

MLS® Number
X12900460
Type
Single Family
Community Name
Rawdon Ward
Ownership Type
Freehold
Land Size
150 x 300.2 FT|1/2 - 1.99 acres
Parking Space Total
7

Building

Building Type
House
Square Footage
1100 - 1500 sqft
Bathrooms Total
2
Bedrooms Above Ground
2
Bedrooms Total
2
Amenities
Fireplace(s) Schools
Exterior Finish
Vinyl siding
Fireplace Present
Yes
Basement Type
Partial
Basement Features
Building Heating Type
Forced air
Heating Fuel
Electric
Building Cooling Type
Central air conditioning

Utilities

Water
Cistern, Drilled Well, Dug Well
Power
Generator
Utility Sewer
Septic System

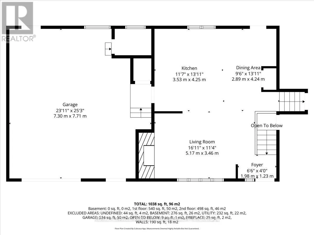
Room Layout

Primary Bedroom
Second level
3.79 m x 4.25 m
Bedroom
Second level
4.07 m x 3.36 m
Bathroom
Second level
2.12 m x 3.1 m
Bathroom
Second level
1.84 m x 3.36 m
Utility room
Basement
6.01 m x 3.72 m
Other
Basement
7.16 m x 3.99 m
Kitchen
Main level
2.53 m x 4.25 m
Dining room
Main level
2.89 m x 4.24 m
Living room
Main level
5.17 m x 3.46 m

Location

Learn more about this property
Listing provided by:
ROYAL LEPAGE PROALLIANCE REALTY
MLS® number:
X12900460
Agent:
Diana Cassidy-bush
*Indicates required field
Name is required
Email is required
Please enter a valid phone number (e.g., 416-111-1111).

Community Spotlight: Homes For sale in Your Neighborhood