225 Woodcock's Mills Road, Stone Mills, Ontario K0K 3G0

Listed for:
$842,000
4 beds
3 baths
Listed 24 days ago
House for rent: 225 Woodcock's Mills Road, Stone Mills, Ontario K0K 3G0

View all 44 photos

Learn more about this property
Listing provided by:
EXP REALTY
MLS® number:
X12476592
Agent:
Chuck Dailey
*Indicates required field
Name is required
Email is required
Please enter a valid phone number (e.g., 416-111-1111).

About

Cross Streets: County Rd 15 & Woodocks Mills Rd. ** Directions: From the village of Tamworth take County Rd 15 for 4min to Woodcocks Mills Road. **Luxury Meets Sustainability** Set on 25 acres of private forest, granite, and protected spring-fed ponds/wetlands, this modern architectural home blends luxury living with complete energy flexibility. Built in 2014 and upgraded in 2024 with a premium solar array and Growatt battery backup, the home remains fully connected to Hydro at all times. Solar simply offsets your costs-or with an easy phone or laptop app, you can choose to run entirely on solar. It's intuitive, secure, and designed for comfort.The residence stands out with galvanized steel, wood, and black accents. Inside, the upper level features soaring ceilings, hardwood floors, a wood-burning stove, stainless-steel counters, and custom tilework. The primary suite is a true retreat with a massive deep soaker tub overlooking the wetlands and a stunning oversized black-tiled shower. The main level offers a redesigned foyer, new bathroom, and a large fourth bedroom currently used as an office.The land is exceptional: private hiking trails, mixed forest with hardwood you can sustainably harvest, maples ready to tap, foraging areas rich with mushrooms, and quiet water ideal for canoeing directly from the yard. Wildlife is abundant-herons, owls, eagles, deer, beavers, turtles, and migratory birds. A powered insulated Quonset building provides workshop, garage, storage, or studio options, and a fenced dog run adds convenience. With generous acreage and road frontage, there is potential for severance or a second residence (buyer to verify). Despite its privacy, the location is ideal: Tamworth (4 min), Napanee (20), Kingston (30), Prince Edward County (40), Belleville (45). A rare offering where modern luxury, natural beauty, and future-ready living come together. (id:27476)

Property Highlights

MLS® Number
X12476592
Type
Single Family
Community Name
63 - Stone Mills
Ownership Type
Freehold
Land Size
1095.7 x 1309.3 FT|25 - 50 acres
Parking Space Total
11

Building

Building Type
House
Storeys
3.00
Square Footage
2500 - 3000 sqft
Bathrooms Total
3
Bedrooms Above Ground
4
Bedrooms Total
4
Exterior Finish
Steel, Wood
Fireplace Present
Yes
Basement Type
None
Basement Features
Building Heating Type
Forced air
Heating Fuel
Propane
Building Cooling Type
Central air conditioning, Air exchanger

Utilities

Water
Drilled Well
Utility Sewer
Septic System

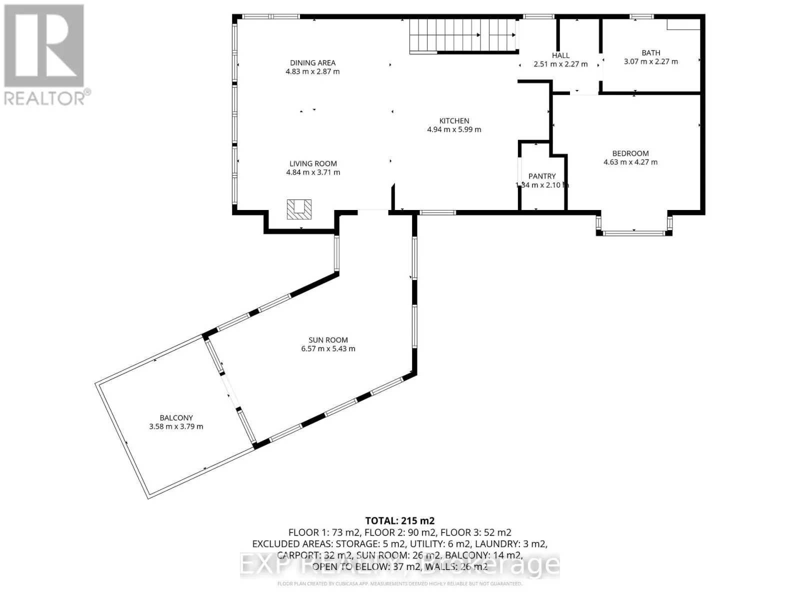
Room Layout

Bathroom
Second level
3.07 m x 2.27 m
Sunroom
Second level
6.57 m x 5.43 m
Living room
Second level
4.84 m x 3.71 m
Dining room
Second level
4.83 m x 2.87 m
Kitchen
Second level
4.94 m x 5.99 m
Pantry
Second level
1.34 m x 2.1 m
Bedroom
Second level
4.63 m x 4.27 m
Sitting room
Third level
3.49 m x 4.89 m
Bedroom
Third level
3.21 m x 4.28 m
Bathroom
Third level
5.49 m x 2.26 m
Office
Ground level
3.17 m x 5.99 m
Bedroom
Ground level
5.59 m x 4.89 m
Bathroom
Ground level
2.28 m x 1.74 m
Laundry room
Ground level
1.37 m x 2.07 m
Utility room
Ground level
3.05 m x 1.86 m

Location