7 Trillium Avenue, Stoney Creek, Ontario L8E 5E1

Listed for:
$1,500,000
0 beds
0 baths
Listed 40 days ago
7 Trillium Avenue, Stoney Creek, Ontario L8E 5E1

View all 7 photos

Learn more about this property
Listing provided by:
RE/MAX Escarpment Realty Inc.
MLS® number:
40778172
Agent:
Paul Joseph Megna
*Indicates required field
Name is required
Email is required
Please enter a valid phone number (e.g., 416-111-1111).

About

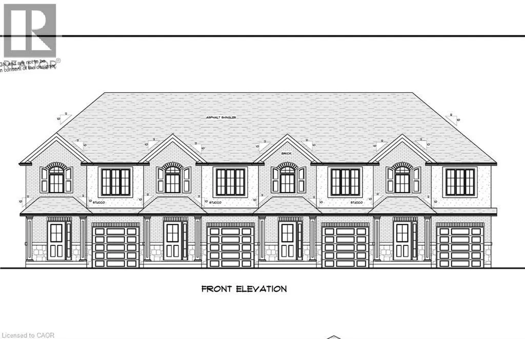
Off of North Service Road between Fifty & Fruitland New R2 Zoning approved for 4 towns. Coveted waterfront community offering rare opportunity to purchase a building lot directly across the road from Lake Ontario. Seller willing to provide assistance in all aspects of the building process. Financing available upon approval of application. Fully serviced lots ready for permit. These lots are positioned on a prestigious street lined with multi-million dollar homes. Facing the lake across vacant land zoned residential, these lots currently enjoy an unobstructed view of the lake. Several permitted uses for these lots including additional dwelling unit in basement, ideal for subsidizing living expenses or multi-generational living. Enjoy 126 feet of depth with mature trees on the lot. Three drawings for potential homes meeting city requirements are available. Located minutes from QEW access and all amenities. Building lots like these are hard to come by, don't wait, act today! (id:27476)

Property Highlights

MLS® Number
40778172
Type
Vacant Land
Ownership Type
Freehold
Land Size
under 1/2 acre

Building

Amenities
Marina, Public Transit, Schools
Fireplace Present
No
Basement Type
None
Basement Features
Building Heating Type
Heating Fuel
Building Cooling Type

Utilities

Water
Municipal water
Utility Sewer
Municipal sewage system

Location