101 Corman Avenue, Stoney Creek, Ontario L8G 3W3

Listed for:
$769,000
3 beds
2 baths
Listed 83 days ago
House for rent: 101 Corman Avenue, Stoney Creek, Ontario L8G 3W3

View all 45 photos

About

King St E to Corman Ave Located in one of Stoney Creek’s most desirable neighbourhoods, this beautifully updated bungalow with 2+1 bedrooms, and 2 full bathrooms, is surrounded by Cherry Heights Park, Corman Park, local schools, the Historic Downtown, and an excellent selection of quality restaurants and amenities. The home has been thoughtfully redesigned to enhance light, flow, and everyday functionality, featuring oversized windows and a seamless open-concept layout. The modern kitchen is both stylish and practical, offering quartz countertops, stainless steel appliances, and a comfortable eat-in breakfast nook. A custom railing staircase leads to a well-planned lower level complete with an additional bathroom and a spacious recreation room perfect for guests, teenagers, or extended living space. Step outside to a newly built wood deck overlooking a professionally landscaped backyard oasis - backing onto a park - ideal for relaxing, entertaining, and enjoying the changing seasons. A truly turnkey property in an established community, offering refined updates, outdoor living, and an exceptional location. (id:27476)

Property Highlights

MLS® Number
40796106
Type
Single Family
Ownership Type
Freehold
Land Size
0.21 ac|under 1/2 acre
Parking Space Total
3

Building

Building Type
House
Storeys
1.00
Square Footage
959 sqft
Bathrooms Total
2
Bedrooms Above Ground
2
Bedrooms Total
3
Amenities
Hospital, Marina, Park, Place of Worship, Playground, Public Transit, Schools, Shopping
Exterior Finish
Aluminum siding, Metal, Vinyl siding
Fireplace Present
No
Basement Type
Full (Finished)
Basement Features
Building Heating Type
Forced air
Heating Fuel
Natural gas
Building Cooling Type
Central air conditioning

Utilities

Water
Municipal water
Utility Sewer
Municipal sewage system

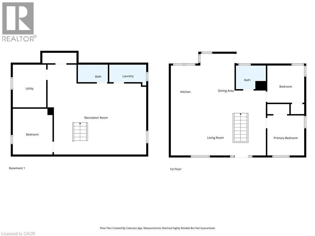
Room Layout

Utility room
Basement
9'5'' x 8'2''
Laundry room
Basement
4'6'' x 8'6''
Bedroom
Basement
12'5'' x 10'8''
3pc Bathroom
Basement
4'6'' x 8'4''
Recreation room
Basement
22'5'' x 24'6''
Primary Bedroom
Main level
10'9'' x 9'7''
Bedroom
Main level
9'9'' x 9'7''
Kitchen
Main level
11'8'' x 8'0''
4pc Bathroom
Main level
6'3'' x 7'3''
Dining room
Main level
15'3'' x 9'1''
Living room
Main level
12'3'' x 17'0''

Location

Learn more about this property
Listing provided by:
Real Broker Ontario Ltd.
MLS® number:
40796106
Agent:
Jon Van Geest
*Indicates required field
Name is required
Email is required
Please enter a valid phone number (e.g., 416-111-1111).