127 Kastner Street, Stratford, Ontario N5A 0J7

Listed for:
$1,124,900
4 beds
2 baths
Listed 37 days ago
House for rent: 127 Kastner Street, Stratford, Ontario N5A 0J7

View all 3 photos

Learn more about this property
Listing provided by:
Sutton Group - First Choice Realty Ltd.
MLS® number:
X10781317
Agent:
Darryl Guetter
*Indicates required field
Name is required
Email is required
Please enter a valid phone number (e.g., 416-111-1111).

About

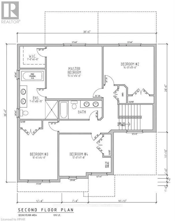
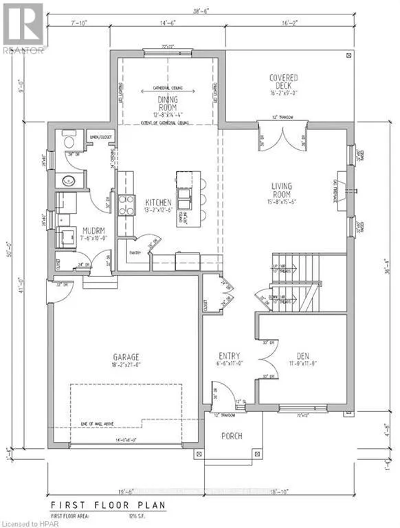
East on Perth Line 36, turn right onto Kastner Street. Lot is on RHS. Pinnacle Quality Homes presents its newest Model "The Weston" on Lot #39 in Phase 4\r\nof "Countryside Estates". This 2426 sq. ft. Energy Star Rated 2 storey home boasts\r\n4 bedrooms + Den, 3 baths and a spacious yet functional open concept design perfect\r\nfor families. 9' ceilings on main level; custom kitchen with island and built-in\r\ncorner pantry; living room features a natural gas fireplace and french doors\r\nleading to large covered (concrete) deck; dining area with vaulted LED accented\r\nceiling; main floor laundry/mudroom; master bed w/walk-in closet and 5 piece\r\nensuite with walk-in tiled shower & free-standing tub. Central Air; Central Vac;\r\nWater Softener; BBQ quick-connect gas line; 2 car attached garage with openers\r\n(fully insulated/dry walled and primed); fully sodded lot. Flexible closing date,\r\nthis stunning family home is to be built. Call for more information / other plan\r\noptions available in Phase #4, or custom design your own! Limited Lots Remaining. (id:27476)

Property Highlights

MLS® Number
X10781317
Type
Single Family
Community Name
Stratford
Ownership Type
Freehold
Land Size
50 x 120.1 FT|under 1/2 acre
Parking Space Total
4

Building

Building Type
House
Storeys
2.00
Square Footage
2000 - 2500 sqft
Bathrooms Total
2
Bedrooms Above Ground
4
Bedrooms Total
4
Amenities
Fireplace(s)
Exterior Finish
Stone, Vinyl siding
Fireplace Present
Yes
Basement Type
Full (Unfinished)
Basement Features
Building Heating Type
Forced air
Heating Fuel
Natural gas
Building Cooling Type
Central air conditioning, Air exchanger

Utilities

Water
Municipal water
Utility Sewer
Sanitary sewer

Room Layout

Bedroom
Second level
Measurements not available
Bedroom
Second level
Measurements not available
Bathroom
Second level
Measurements not available
Primary Bedroom
Second level
Measurements not available
Other
Second level
Measurements not available
Bedroom
Second level
Measurements not available
Living room
Main level
Measurements not available
Kitchen
Main level
Measurements not available
Dining room
Main level
Measurements not available
Laundry room
Main level
Measurements not available
Den
Main level
Measurements not available
Bathroom
Main level
Measurements not available

Location

Street Spotlight - For sale