Unit 42 - 3202 Vivian Line, Stratford, Ontario N5A 0K6

Listed for:
$564,900
2 beds
2 baths
Listed 41 days ago
Row / Townhouse for rent: Unit 42 - 3202 Vivian Line, Stratford, Ontario N5A 0K6

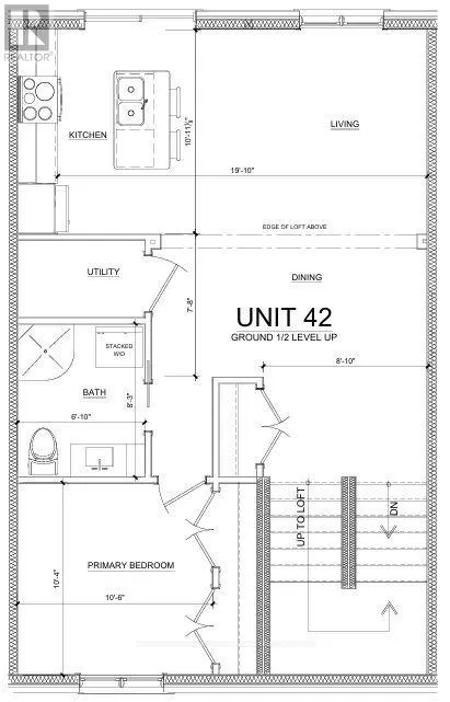
View all 34 photos

Learn more about this property
Listing provided by:
Sutton Group - First Choice Realty Ltd.
MLS® number:
X12239638
Agent:
Stephanie Theodoropoulos
*Indicates required field
Name is required
Email is required
Please enter a valid phone number (e.g., 416-111-1111).

About

Cross Streets: Romeo Street N. ** Directions: Romeo Street to Vivian. Looking for brand new, easy living with a great location? This condo is for you! This 2 story, 2 bedroom, 2 bath condo is built to impress. Lots of natural light throughout the unit, great patio space, one parking spot and all appliances, hot water heater and softener included. Let the condo corporation take care of all the outdoor maintenance, while you enjoy the easy life! Located on the outskirts of town, close to Stratford Country Club, and easy walk to parks and Theatre and quick access for commuters. *photos are of model unit 35 (id:27476)

Property Highlights

MLS® Number
X12239638
Type
Single Family
Community Name
Stratford
Maintenance Fee
269.58
Ownership Type
Condominium/Strata
Parking Space Total
1

Building

Building Type
Row / Townhouse
Storeys
2.00
Square Footage
1400 - 1599 sqft
Bathrooms Total
2
Bedrooms Above Ground
2
Bedrooms Total
2
Amenities
Visitor Parking, Storage - Locker Golf Nearby
Exterior Finish
Vinyl siding, Brick
Fireplace Present
No
Basement Type
None
Basement Features
Building Heating Type
Forced air
Heating Fuel
Natural gas
Building Cooling Type
Central air conditioning, Air exchanger

Location

Street Spotlight - For sale