393 Ontario Street Unit# Upper, Stratford, Ontario N5A 3H7

Listed for:
$2,150
2 beds
1 baths
Listed 6 days ago
House for rent: 393 Ontario Street Unit# Upper, Stratford, Ontario N5A 3H7

View all 27 photos

Learn more about this property
Listing provided by:
Chestnut Park Realty Southwestern Ontario Limited
MLS® number:
40787784
Agent:
Erik Erwin
*Indicates required field
Name is required
Email is required
Please enter a valid phone number (e.g., 416-111-1111).

About

Ontario St/Queen St Fully Furnished, Seasonal Rental Available January 1st-May 31st (flexible)- UTILITIES & INTERNET INCLUDED. Playful and full of character, this two-level upper unit combines historic charm with modern comfort. Featuring two spacious bedrooms furnished with comfortable King and Queen beds, a bright living area, a sunroom, and a well-equipped kitchen. Private entrance with parking for two vehicles. Located just a 5-minute walk to the Festival Theatre and close to downtown shops, restaurants, and cafes. Enjoy fast internet, and a comfortable blend of style and functionality without moving any furniture. Please note: the unit is on the second and third floors; the laundry is located in the unfinished basement. PARKING for 2 Cars, Snow Removal Included (id:27476)

Property Highlights

MLS® Number
40787784
Type
Single Family
Ownership Type
Freehold
Land Size
Unknown
Parking Space Total
2

Building

Building Type
House
Square Footage
1015 sqft
Bathrooms Total
1
Bedrooms Above Ground
2
Bedrooms Total
2
Amenities
Golf Nearby, Hospital, Park, Place of Worship, Public Transit, Schools
Exterior Finish
Brick
Fireplace Present
No
Basement Type
Full (Unfinished)
Basement Features
Building Heating Type
Forced air
Heating Fuel
Natural gas
Building Cooling Type
None

Utilities

Water
Municipal water
Utility Sewer
Municipal sewage system

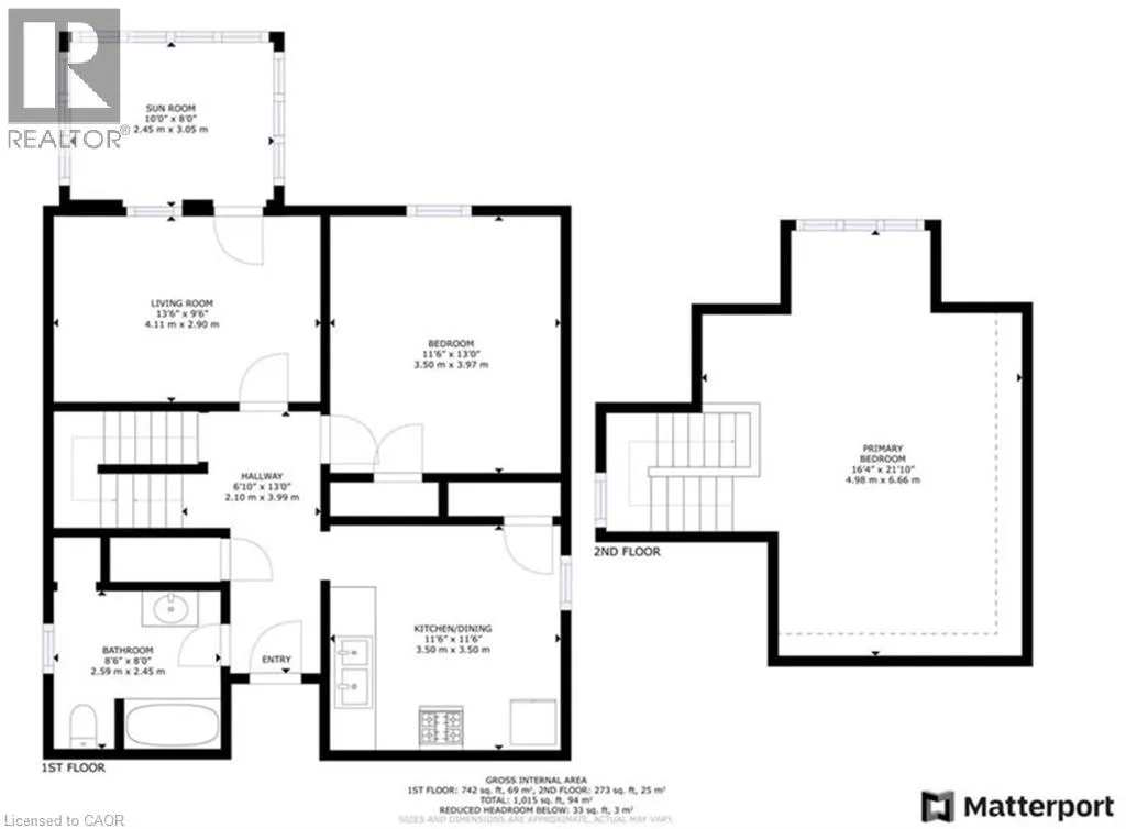
Room Layout

3pc Bathroom
Second level
8'6'' x 8'0''
Sunroom
Second level
10'0'' x 8'0''
Bedroom
Second level
11'6'' x 13'0''
Primary Bedroom
Second level
16'4'' x 21'10''
Living room
Second level
13'6'' x 9'6''
Kitchen/Dining room
Second level
11'6'' x 11'6''

Location