Lot 1 Mctavish Street, Strathroy-Caradoc, Ontario N7G 3K5

Listed for:
$599,900
3 beds
3 baths
Listed 127 days ago
Row / Townhouse for rent: Lot 1 Mctavish Street, Strathroy-Caradoc, Ontario N7G 3K5

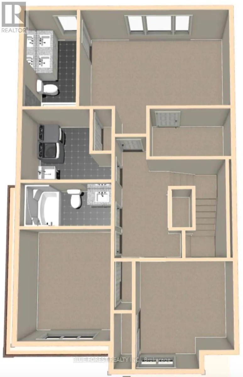
View all 12 photos

About

Cross Streets: Beer Cres. ** Directions: Buchanan Crossings Development. Bakker Design & Build Inc. presents these brand-new, FREEHOLD townhomes in the new Buchanan Crossings Development in Strathroy. Offering approximately 1,800 sq. ft. of finished living space, these spacious homes are designed for comfort, functionality, and modern living. The main floor features an open layout offering a bright living area with 9-foot ceilings, a family-sized dining space, and a well-designed kitchen with ample storage and countertop space. Upstairs, you'll find three generous bedrooms, including a primary with a 4-pc ensuite and walk-in closet. A full bathroom and convenient second-floor laundry complete this level. The basement provides future potential with a rough-in for a 3-pc bath, ideal for adding extra living space as needed. BEING BUILT NOW!! Multiple lots and layouts are available. (id:27476)

Property Highlights

MLS® Number
X12575234
Type
Single Family
Community Name
NW
Ownership Type
Freehold
Parking Space Total
3

Building

Building Type
Row / Townhouse
Storeys
2.00
Square Footage
1500 - 2000 sqft
Bathrooms Total
3
Bedrooms Above Ground
3
Bedrooms Total
3
Exterior Finish
Brick, Vinyl siding
Fireplace Present
No
Basement Type
Full (Unfinished)
Basement Features
Building Heating Type
Forced air
Heating Fuel
Natural gas
Building Cooling Type
Central air conditioning

Utilities

Water
Municipal water
Utility Sewer
Sanitary sewer

Location

Learn more about this property
Listing provided by:
BLUE FOREST REALTY INC.
MLS® number:
X12575234
Agent:
Abbe Sheedy
*Indicates required field
Name is required
Email is required
Please enter a valid phone number (e.g., 416-111-1111).

Community Spotlight: Homes For sale in Your Neighborhood