Lot 48 Beer Crescent, Strathroy-Caradoc, Ontario N7G 3K5

Listed for:
$689,000
3 beds
3 baths
Listed 35 days ago
House for rent: Lot 48 Beer Crescent, Strathroy-Caradoc, Ontario N7G 3K5

View all 4 photos

About

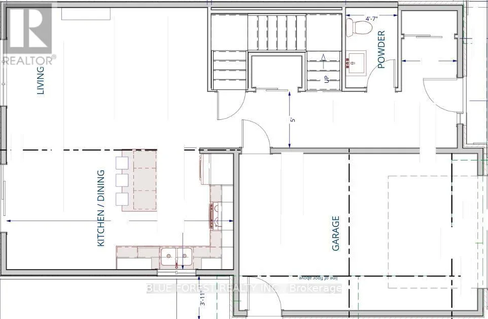
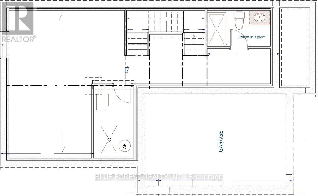
Cross Streets: McTavish Street. ** Directions: South of McTavish St. Welcome to The Francis, a thoughtfully crafted two-storey home by Bakker Design & Build, offering 1809 sq. ft. of beautifully designed living space. Known for quality craftsmanship and intentional design, this home blends functionality with timeless style. The main floor features a bright, open-concept kitchen and dining area centred around a spacious island - perfect for entertaining and everyday living. A walk-in pantry provides exceptional storage, while the inviting living room offers a comfortable space to gather and relax. Direct access to the garage, a convenient powder room, and smart main-floor flow make this layout both practical and family-friendly. Upstairs, you'll find three generously sized bedrooms, including a private primary retreat complete with a walk-in closet and ensuite bath. The additional bedrooms share a well-appointed main bathroom, and the second-floor laundry room adds everyday convenience right where it's needed most. TO BE BUILT! Other lots and designs are available. Price based on base lot, premiums extra. Check out more plans at BUCHANANCROSSINGS.COM ** This is a linked property.** (id:27476)

Property Highlights

MLS® Number
X12818112
Type
Single Family
Community Name
NW
Ownership Type
Freehold
Land Size
33.3 FT
Parking Space Total
3

Building

Building Type
House
Storeys
2.00
Square Footage
1500 - 2000 sqft
Bathrooms Total
3
Bedrooms Above Ground
3
Bedrooms Total
3
Exterior Finish
Brick, Vinyl siding
Fireplace Present
No
Basement Type
Full (Unfinished)
Basement Features
Building Heating Type
Forced air
Heating Fuel
Natural gas
Building Cooling Type
Central air conditioning

Utilities

Water
Municipal water

Location

Learn more about this property
Listing provided by:
BLUE FOREST REALTY INC.
MLS® number:
X12818112
Agent:
Klaud Czeslawski
*Indicates required field
Name is required
Email is required
Please enter a valid phone number (e.g., 416-111-1111).

Street Spotlight - For sale