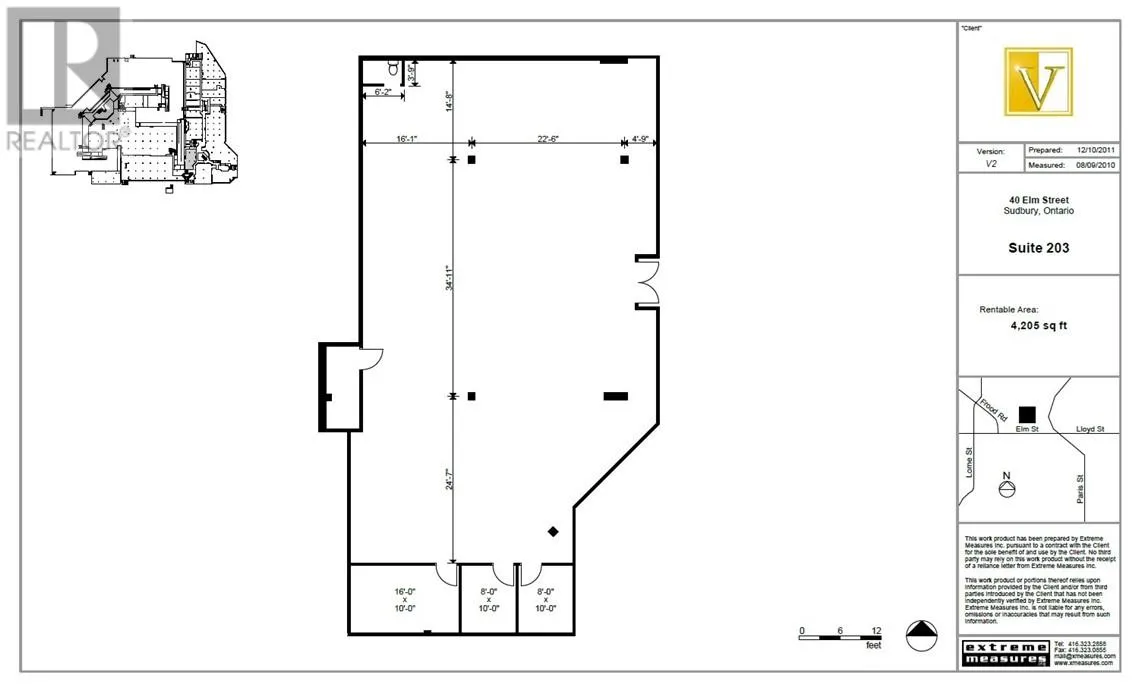
40 Elm Street Unit# 203, Sudbury, Ontario P3C 1S8

Listed for:
$10
0 beds
0 baths
Listed 233 days ago
Commercial Mix for rent: 40 Elm Street Unit# 203, Sudbury, Ontario P3C 1S8

View all 8 photos

About

Located in the heart of Downtown Sudbury, Elm Place is a premier, high-traffic destination offering excellent visibility, a diverse tenant mix, and convenient access for both customers and employees. This Class A property provides flexible space options ranging from 200 to 50,000 square feet, accommodating businesses of all sizes and industries. Elm Place features Sudbury’s largest downtown parking facility, which has undergone significant upgrades. The three-story garage offers 950+ stalls, including ground-level, covered, and upper-level parking. The building has also undergone extensive renovations, boasting luxury finishes throughout its common areas, such as marble flooring, elegant cornice details, and more. On-site amenities enhance both tenant and visitor experiences, including a food court, gym, movie theatre, spa, and the Radisson Hotel. Conveniently accessible from Elm Street and Ste. Anne Road, this prime location benefits from a daily traffic count of 28,847 vehicles and foot traffic of approximately 5,000 people per day, ensuring exceptional exposure and accessibility. This 4,205 sq. ft office space features a spacious open layout, complete with private offices and a washroom. Secure your space in one of Sudbury’s most dynamic commercial hubs! Contact us today for leasing details. (id:27476)

Property Highlights

MLS® Number
2120838
Type
Office
Ownership Type
Leasehold
Land Size
3 - 10 acres

Building

Building Type
Commercial Mix
Amenities
Air Conditioning, Exercise Centre, Secured Parking, Shopping Area
Fireplace Present
No
Basement Type
Basement Features
Building Heating Type
Heating Fuel
Building Cooling Type
Central air conditioning

Utilities

Water
Municipal water
Utility Sewer
Municipal sewage system

Location

Learn more about this property
Listing provided by:
RE/MAX CROWN REALTY (1989) INC., BROKERAGE (SUDBURY)
MLS® number:
2120838
Agent:
Krysta Lapointe
*Indicates required field
Name is required
Email is required
Please enter a valid phone number (e.g., 416-111-1111).