801 Lapointe Street, Sudbury, Ontario P3A 5N8

Listed for:
$18
0 beds
0 baths
Listed 13 days ago
Multi-Tenant Industrial for rent: 801 Lapointe Street, Sudbury, Ontario P3A 5N8

View all 12 photos

Learn more about this property
Listing provided by:
RE/MAX CROWN REALTY (1989) INC., BROKERAGE (SUDBURY)
MLS® number:
2123863
Agent:
Rik Cormier
*Indicates required field
Name is required
Email is required
Please enter a valid phone number (e.g., 416-111-1111).

About

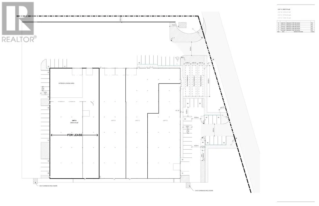
Recently updated with new exterior. Large warehouse/office/shop space in preferred New Sudbury industrial park (26,603 sq ft). Unit A can be divided into separate spaces with roughly 17,000+ sq ft in one area; as well as another 9,000+ sq ft space. 22 foot ceiling heights below the roof deck, grade and dock level loading, 2 large overhead doors. Present use is warehousing but can accommodate variety of uses. Yard space available. CAM estimated at $4.75 for 2025. (id:27476)

Property Highlights

MLS® Number
2123863
Type
Industrial
Ownership Type
Freehold
Land Size
3 - 10 acres

Building

Building Type
Multi-Tenant Industrial
Exterior Finish
Metal
Fireplace Present
No
Basement Type
Basement Features
Building Heating Type
Heating Fuel
Building Cooling Type

Utilities

Water
Municipal water
Utility Sewer
Municipal sewage system

Location