10 Elm Street Unit# 502g, Sudbury, Ontario P3C 1S8

Listed for:
$500
0 beds
0 baths
Listed 13 days ago
Commercial Mix for rent: 10 Elm Street Unit# 502g, Sudbury, Ontario P3C 1S8

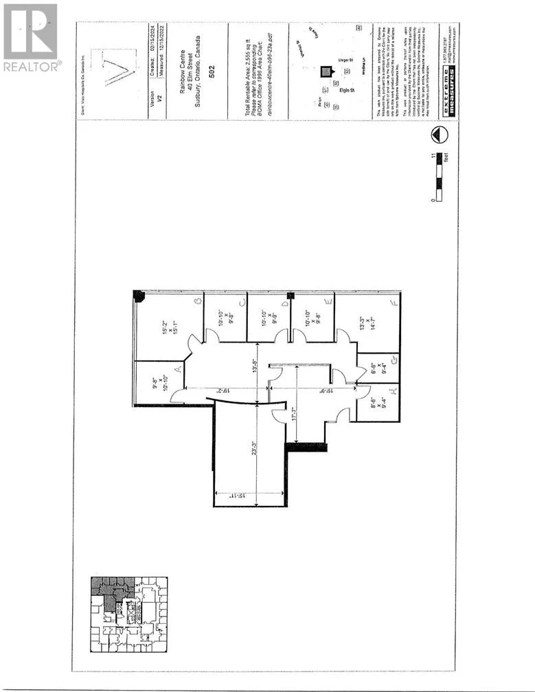
View all 4 photos

Learn more about this property
Listing provided by:
RE/MAX CROWN REALTY (1989) INC., BROKERAGE (SUDBURY)
MLS® number:
2124033
Agent:
Krysta Lapointe
*Indicates required field
Name is required
Email is required
Please enter a valid phone number (e.g., 416-111-1111).

About

Class A, individual office space available immediately in the heart of Downtown Sudbury. Located in Elm Place, a premier, high-traffic destination with excellent visibility, a diverse tenant mix, and convenient access for customers and employees. Elm Place offers Sudbury’s largest downtown parking facility with over 950 upgraded stalls, as well as luxury common area finishes including marble flooring, elegant cornice details, and accessible spaces. On-site amenities enhance both tenant and visitor experiences, including a food court, gym, movie theatre, spa, and the Radisson Hotel. Conveniently accessible from Elm Street and Ste. Anne Road, this prime location benefits from a daily traffic count of 28,847 vehicles and foot traffic of approximately 5,000 people per day, ensuring exceptional exposure and accessibility. Great value at $500 + HST fully gross (all inclusive) including access to shared washrooms, reception/waiting area and boardroom. Other offices available ranging from $500 to $650 + HST per month. Secure your space in one of Sudbury’s most dynamic commercial hubs! Contact us today for leasing details. (id:27476)

Property Highlights

MLS® Number
2124033
Type
Office
Ownership Type
Leasehold
Land Size
1/2 - 1 acre

Building

Building Type
Commercial Mix
Amenities
Air Conditioning, Exercise Centre, Secured Parking, Shopping Area
Fireplace Present
No
Basement Type
Basement Features
Building Heating Type
Heating Fuel
Building Cooling Type
Central air conditioning

Utilities

Water
Municipal water
Utility Sewer
Municipal sewage system

Location