560 Notre Dame Street Unit# 4, Sudbury, Ontario P3C 5L2

Listed for:
$16
0 beds
0 baths
Listed 79 days ago
560 Notre Dame Street Unit# 4, Sudbury, Ontario P3C 5L2

View all 20 photos

About

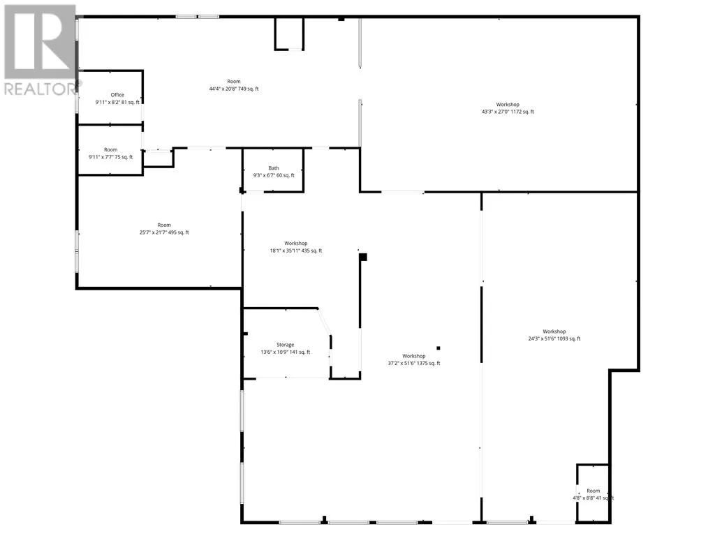
6,000 sq ft industrial space with showroom or storefront for lease on Notre Dame Avenue, offering exceptional visibility with over 30,000 vehicles per day. This versatile unit features an overhead dock-level door, open and functional layout, and plenty of on-site parking for customers, staff, and deliveries. Centrally located with excellent accessibility and ease of entry, this M1-1 Zoned property is ideal for retail showroom, light industrial, distribution, or mixed commercial use in one of Sudbury’s busiest commercial corridors. Very affordable additional rent of $3.25 + 5% admin fee. Available May 1, 2026. (id:27476)

Property Highlights

MLS® Number
2125757
Type
Industrial
Ownership Type
Leasehold
Land Size
32,670 - 43,559 sqft (3/4 - 1 ac)

Building

Amenities
Air Conditioning, Shopping Area, Storefront
Exterior Finish
Metal
Fireplace Present
No
Basement Type
Basement Features
Building Heating Type
Forced air
Heating Fuel
Building Cooling Type
Central air conditioning

Utilities

Water
Municipal water
Utility Sewer
Municipal sewage system

Location

Learn more about this property
Listing provided by:
ROYAL LEPAGE NORTH HERITAGE REALTY, BROKERAGE
MLS® number:
2125757
Agent:
Cassandra Beach
*Indicates required field
Name is required
Email is required
Please enter a valid phone number (e.g., 416-111-1111).