801 Lapointe Street, Sudbury, Ontario P3A 5N8

Listed for:
$18
0 beds
0 baths
Listed 58 days ago
Multi-Tenant Industrial for rent: 801 Lapointe Street, Sudbury, Ontario P3A 5N8

View all 18 photos

About

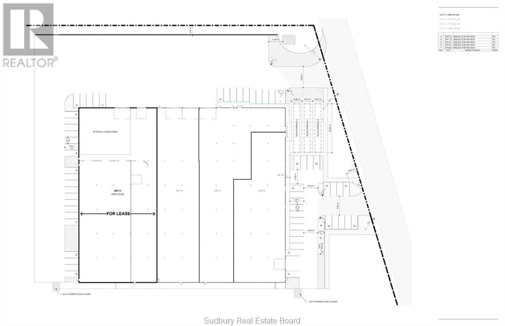
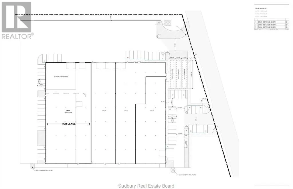
Recently updated with new exterior. Large warehouse/office/shop space in preferred New Sudbury industrial park (26,603 sq ft). Unit A can be divided into separate spaces with roughly 17,000+ sq ft in one area; as well as another 9,000+ sq ft space. 22 foot ceiling heights below the roof deck, grade and dock level loading, 2 large overhead doors. Present use is warehousing but can accommodate variety of uses. Yard space available. CAM estimated at $4.75 for 2025. (id:27476)

Property Highlights

MLS® Number
2125949
Type
Industrial
Ownership Type
Freehold
Land Size
3 - 10 acres

Building

Building Type
Multi-Tenant Industrial
Exterior Finish
Metal
Fireplace Present
No
Basement Type
Basement Features
Building Heating Type
Heating Fuel
Building Cooling Type

Utilities

Water
Municipal water
Utility Sewer
Municipal sewage system

Location

Learn more about this property
Listing provided by:
RE/MAX CROWN REALTY (1989) INC., BROKERAGE (SUDBURY)
MLS® number:
2125949
Agent:
Rik Cormier
*Indicates required field
Name is required
Email is required
Please enter a valid phone number (e.g., 416-111-1111).