218 Jephson Street, Tay, Ontario L0K 2A0

Listed for:
$669,900
4 beds
2 baths
Listed 63 days ago
House for rent: 218 Jephson Street, Tay, Ontario L0K 2A0

View all 44 photos

Learn more about this property
Listing provided by:
EXP REALTY
MLS® number:
S12319042
Agent:
Wendy Elzner
*Indicates required field
Name is required
Email is required
Please enter a valid phone number (e.g., 416-111-1111).

About

Cross Streets: Jephson and Albert. ** Directions: Hwy 12 to William St (R) on Albert, (R) on Jephson to dead end. In the quiet village of Victoria Harbour this spacious family home is located at the end of a dead end road, with forested area across the road, walk to shopping, town dock, boat lunch and the Tay walking/bike trails, school is only a few blocks away. You have the bonus of living in town, but feels like country. All brick 3 +1 Bedroom Bungalow with attached oversize garage with steps to basement and back yard access. Eat in Kitchen walks out to back deck, large living room with picture window, 3rd bedroom had laundry added. Main bath has step in accessible tub/shower. Huge side yard with plenty of room for all your outdoor fun. The bright and spacious basement was just totally redone in June 2025, offers a great space for a multi-generation family, with large Livingroom with gas fireplace, kitchen, bedroom, den, 3pce bath and it's own laundry, has walk up step to garage and main level. New shingles (2023) Heat Pump provides back up heat source and A/C. (id:27476)

Property Highlights

MLS® Number
S12319042
Type
Single Family
Community Name
Victoria Harbour
Ownership Type
Freehold
Land Size
66 x 165 FT
Parking Space Total
5

Building

Building Type
House
Storeys
1.00
Square Footage
1100 - 1500 sqft
Bathrooms Total
2
Bedrooms Above Ground
3
Bedrooms Total
4
Amenities
Fireplace(s)
Exterior Finish
Brick
Fireplace Present
Yes
Basement Type
N/A, N/A (Finished)
Basement Features
Walk-up
Building Heating Type
Forced air
Heating Fuel
Natural gas
Building Cooling Type
Central air conditioning

Utilities

Water
Municipal water
Utility Sewer
Sanitary sewer

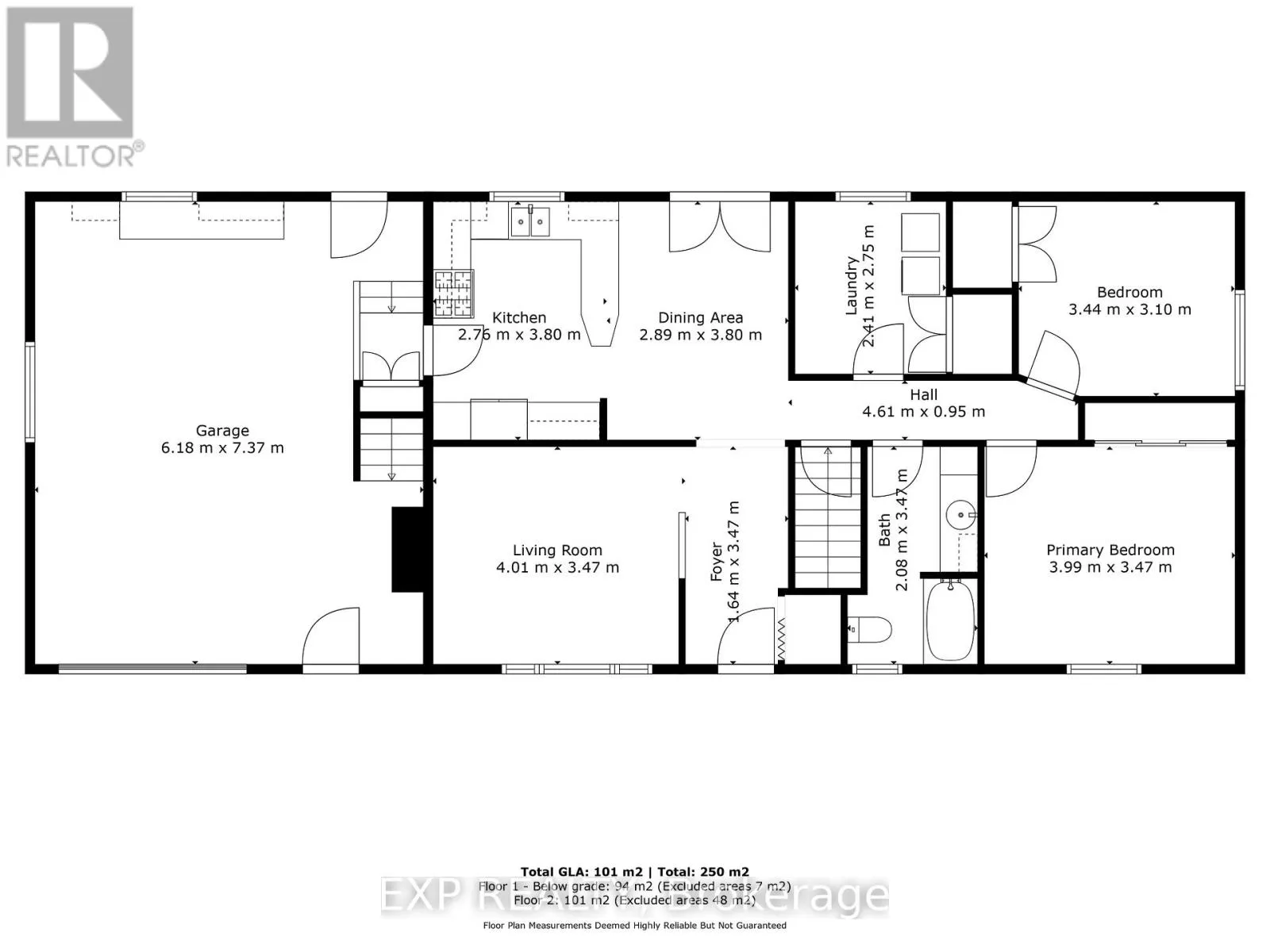
Room Layout

Utility room
Basement
3.25 m x 3.14 m
Living room
Basement
6.9 m x 3.88 m
Office
Basement
3.54 m x 3.48 m
Bedroom 4
Basement
7.18 m x 3.85 m
Kitchen
Basement
3.98 m x 2.07 m
Kitchen
Main level
3.8 m x 2.76 m
Dining room
Main level
3.8 m x 2.89 m
Living room
Main level
4.01 m x 3.47 m
Primary Bedroom
Main level
3.99 m x 3.47 m
Bedroom 2
Main level
3.44 m x 3.1 m
Bedroom 3
Main level
2.75 m x 2.41 m

Location