43 Highland Ave - 5411 Elliott Side Road, Tay, Ontario L4R 4K3

Listed for:
$499,777
2 beds
2 baths
Listed 46 days ago
Modular for rent: 43 Highland Ave - 5411 Elliott Side Road, Tay, Ontario L4R 4K3

View all 24 photos

About

Cross Streets: Old Fort Rd & Elliott SR. ** Directions: Old Fort Rd to Elliott Side Road to Candlelight Village - Sign On. Welcome to 5411 Elliott Side Road #43 in Tay, located in a great retirement community known for its peaceful setting and strong sense of pride of ownership. This well-cared-for home features a bright kitchen with island, a spacious living room, and a beautiful sunroom/family room-perfect for relaxing and enjoying the surroundings. Offering two bedrooms and two bathrooms, along with the convenience of main floor laundry, this home is designed for comfortable, easy living. Forced air heating and central air provide year-round comfort, and a full generator adds peace of mind. Additional highlights include a detached garage and a location just 10 minutes from all local amenities and the scenic shores of Beautiful Georgian Bay, making this an ideal option for those looking to enjoy a relaxed lifestyle close to nature. (id:27476)

Property Highlights

MLS® Number
S12940546
Type
Single Family
Community Name
Rural Tay
Parking Space Total
3

Building

Building Type
Modular
Storeys
1.00
Square Footage
1100 - 1500 sqft
Bathrooms Total
2
Bedrooms Above Ground
2
Bedrooms Total
2
Exterior Finish
Vinyl siding
Fireplace Present
No
Basement Type
None
Basement Features
Building Heating Type
Forced air
Heating Fuel
Electric
Building Cooling Type
Central air conditioning

Utilities

Water
Municipal water
Power
Generator
Utility Sewer
Septic System

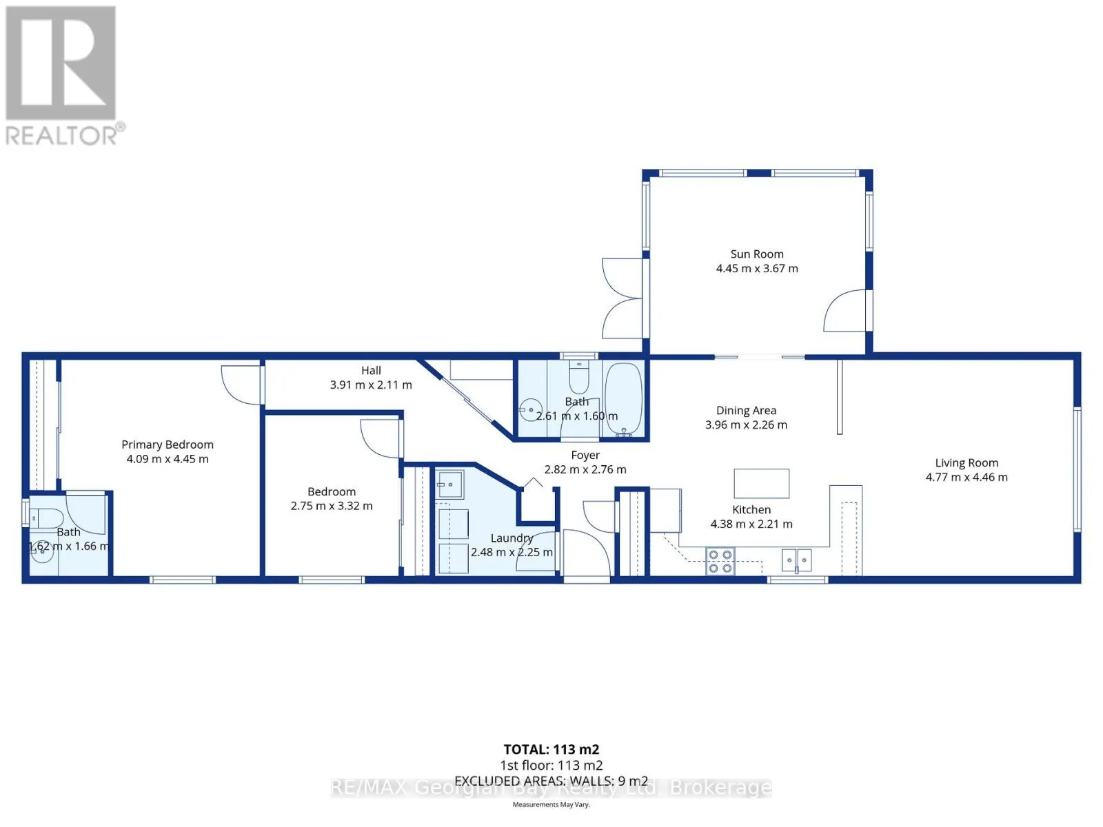
Room Layout

Kitchen
Main level
4.38 m x 2.21 m
Dining room
Main level
3.96 m x 2.26 m
Living room
Main level
4.77 m x 4.46 m
Sunroom
Main level
4.45 m x 3.67 m
Laundry room
Main level
2.48 m x 2.25 m
Bedroom
Main level
4.09 m x 4.45 m
Bedroom 2
Main level
2.75 m x 3.32 m
Bathroom
Main level
2.61 m x 1.6 m
Bathroom
Main level
1.62 m x 1.66 m

Location

Learn more about this property
Listing provided by:
RE/MAX Georgian Bay Realty Ltd
MLS® number:
S12940546
Agent:
Kevin Ellis
*Indicates required field
Name is required
Email is required
Please enter a valid phone number (e.g., 416-111-1111).

Street Spotlight - For sale