1777 Mayrand Crescent, Tecumseh, Ontario N8N 4R3

Listed for:
$750,000
5 beds
3 baths
Listed 9 days ago
House for rent: 1777 Mayrand Crescent, Tecumseh, Ontario N8N 4R3

View all 48 photos

About

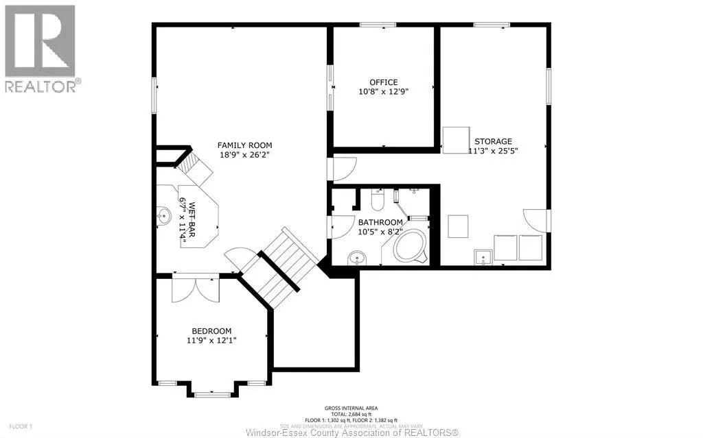
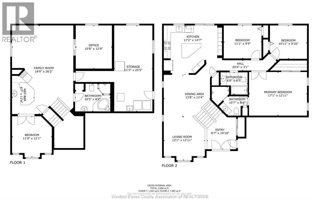
""Quality and Comfort Living"" Nestled in one of Tecumseh's most sought-after areas, this Fully Brick, sprawling, Raised Ranch, offers all the Bells and Whistles, and so much more. Attention to detail, everywhere, from attractive curb appeal, featuring well manicured gardens, to a rear yard ""Oasis"", with On-Ground pool, gazebo, plus added features, such as a convenient storage/ change area, great for family get togethers. The interior features open, sun drenched areas, with a smartly designed kitchen to die for, with everything the ""serious Chef"" could ever dream of, not to mention the more than ample storage space for all your new recipes. Enjoy a warm, open lower level, complete with wet bar, sprawling Rec Room w/ Fireplace, to catch up with old friends, plus a serious Office Space, and extra bedrooms for those family stayovers. Don't miss this gorgeous Gem of Tecumseh ; Truly a Special Place to call home. ALL OFFERS MUST INCLUDE ATTACHED SCHEDULE B. (id:27476)

Property Highlights

MLS® Number
26002776
Type
Single Family
Ownership Type
Freehold
Land Size
90.35 X 113.43 FT

Building

Building Type
House
Bathrooms Total
3
Bedrooms Above Ground
3
Bedrooms Total
5
Exterior Finish
Brick
Fireplace Present
Yes
Basement Type
Basement Features
Building Heating Type
Forced air
Heating Fuel
Natural gas
Building Cooling Type
Central air conditioning

Location

Learn more about this property
Listing provided by:
REMAX PREFERRED REALTY LTD. - 585
MLS® number:
26002776
Agent:
K.r.(bob) Kella
*Indicates required field
Name is required
Email is required
Please enter a valid phone number (e.g., 416-111-1111).