5225 Aiden Avenue, Tecumseh, Ontario N0R 1K0

Listed for:
$819,999
3 beds
2 baths
Listed 2 days ago
House for rent: 5225 Aiden Avenue, Tecumseh, Ontario N0R 1K0

View all 2 photos

About

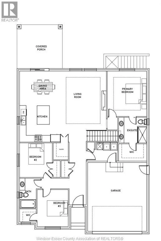
Now building in Oldcastle Heights by Sleiman Homes. This well-appointed ranch offers approximately 1718 sq. ft. of finished living space and features 3 bedrooms and 2 full bathrooms, including an ensuite bath & walk-in closet. The home boasts a spacious living room with fireplace, dining area with an elegant, functional layout and finished hardwood flooring throughout. The gourmet kitchen includes granite countertops, an island, a pantry and high end finishes using only top-quality materials. The lower level features a grade entrance and offers excellent potential for additional living space, and can be finished with a large family room, 2 additional bedrooms, a full bath, and a second kitchen for those seeking more space. Inquire about basement layout options and pricing. Exterior highlights include brick, stucco, and stone finishes, a double car garage, outdoor pot lights, and a 10' x 10' covered porch. Situated on a large lot in one of Windsor’s hottest new subdivisions, Oldcastle heights - 7-Year Tarion Warranty. The listed price already reflects the HST rebate for the period of April 1, 2026 through March 31, 2027, with all rebate amounts assigned to the builder. The discounted price is conditional upon the buyer qualifying for the applicable rebates. Additional lots available. Contact today for the builder’s package. Buyer to verify zoning, taxes, and measurements. 3d renderings for illustration purposes only. (id:27476)

Property Highlights

MLS® Number
26008088
Type
Single Family
Ownership Type
Freehold
Land Size
50 X 115 FT

Building

Building Type
House
Storeys
1.00
Square Footage
1718 sqft
Bathrooms Total
2
Bedrooms Above Ground
3
Bedrooms Total
3
Exterior Finish
Brick, Stone, Concrete/Stucco
Fireplace Present
Yes
Basement Type
Basement Features
Building Heating Type
Forced air, Furnace
Heating Fuel
Natural gas
Building Cooling Type
Central air conditioning

Location

Learn more about this property
Listing provided by:
REMAX CAPITAL DIAMOND REALTY
MLS® number:
26008088
Agent:
Nadia Khalaf
*Indicates required field
Name is required
Email is required
Please enter a valid phone number (e.g., 416-111-1111).

Street Spotlight - For sale