2670 Putnam Road, Thames Centre, Ontario N0L 2B0

Listed for:
$974,500
4 beds
3 baths
Listed 160 days ago
House for rent: 2670 Putnam Road, Thames Centre, Ontario N0L 2B0

View all 50 photos

About

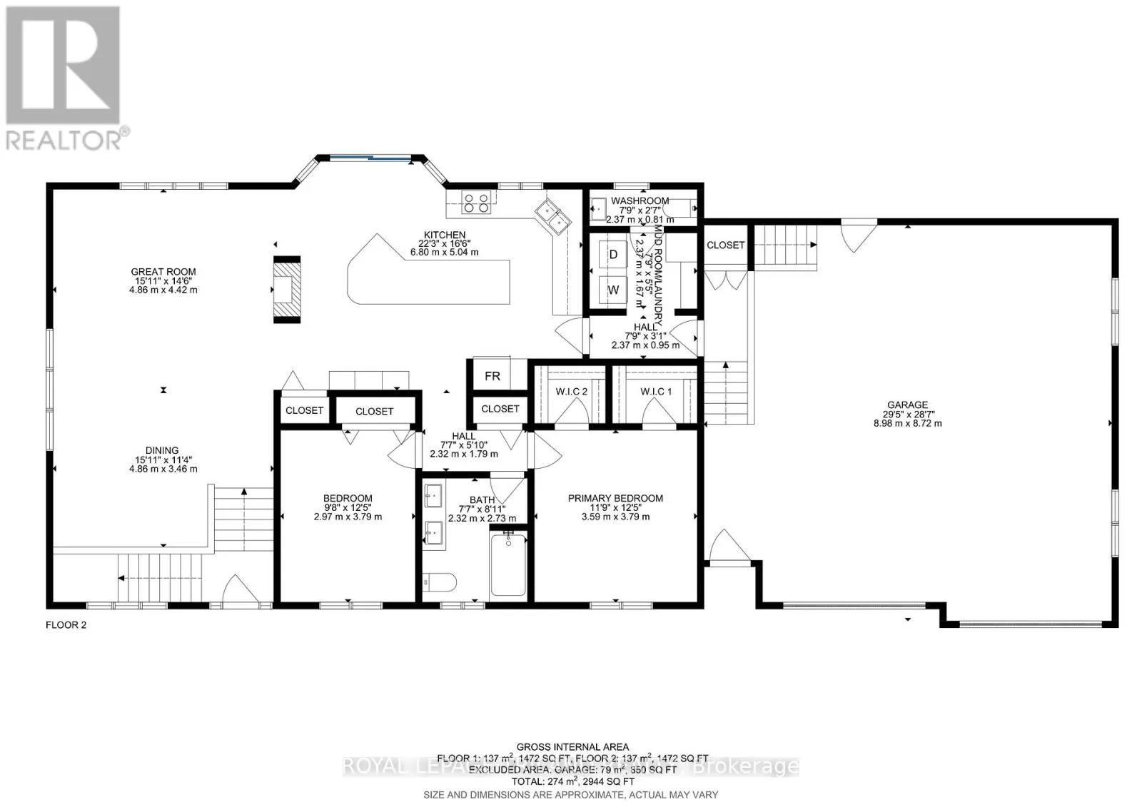
Cross Streets: Hamilton Rd (Hwy 29) & Putnam Road (hwy30). ** Directions: From Hamilton Rd (Hwy 29), head North on Putnam Road (hwy30) and it's on the right. This is the one! Just 10 minutes from London, this stunning acreage with Wallace Creek running through it features a beautiful 4 bedroom raised bungalow with an oversized garage that easily fits two large pickup trucks, plus outdoor parking for an RV, 45ft trailer, and more. Blending modern upgrades, thoughtful design, and expansive living, its amazing inside and out. The home is warm and inviting with vaulted ceilings, open-concept layout, oversized windows, and hickory hardwood floors. A dual sided gas fireplace connects the great room and gourmet kitchen, which boasts a 12 ft quartz island, abundant cabinetry, and casual dining. Patio doors open to a large two tier deck and private yard, ideal for seamless indoor / outdoor living. All bedrooms fit king beds and include closet organizers. The main floor features two bedrooms, including a primary suite with two walk-ins and a spa like bath with double sinks and walk-in shower. Laundry/mud room and powder room complete the floor for easy one level living. The fully finished lower level offers a huge family room, two more bedrooms, full bath with tub/shower/double sinks, and a versatile workshop (pre-wired and plumbed for second kitchen to easily convert for an in-law suite). Direct stairs connect to the oversized insulated garage, perfect for car enthusiasts or hobbyists. Meticulously maintained with a new roof (2016), furnace, AC, and UV air disinfectant system (2017), ultraviolet disinfectant system for water, plus updated doors, custom lighting, and modern finishes. Central vac, gas BBQ line, two sheds, and negotiable zero-turn mower and snowblower add convenience. The sprawling lot offers privacy and mature landscaping, with low maintenance perennial gardens and a peaceful creek that attracts herons, deer, turtles, foxes, and more, your own private retreat. Just 3 minutes to Hwy 401 and under 30 minutes to Ingersoll, Dorchester, St. Thomas, and Aylmer, this exceptional home wont last. (id:27476)

Property Highlights

MLS® Number
X12421865
Type
Single Family
Community Name
Putnam
Ownership Type
Freehold
Land Size
330 x 123 FT
Parking Space Total
8

Building

Building Type
House
Storeys
1.00
Square Footage
1500 - 2000 sqft
Bathrooms Total
3
Bedrooms Above Ground
4
Bedrooms Total
4
Exterior Finish
Brick
Fireplace Present
Yes
Basement Type
N/A (Finished)
Basement Features
Building Heating Type
Forced air
Heating Fuel
Natural gas
Building Cooling Type
Central air conditioning, Air exchanger, Ventilation system

Utilities

Utility Sewer
Septic System

Room Layout

Bedroom 3
Lower level
3.21 m x 3.79 m
Utility room
Lower level
4.18 m x 3.99 m
Workshop
Lower level
4.83 m x 3.22 m
Other
Lower level
1.9 m x 2.86 m
Bathroom
Lower level
2.07 m x 2.73 m
Family room
Lower level
4.86 m x 7.81 m
Bedroom 2
Lower level
3.59 m x 3.79 m
Dining room
Main level
4.86 m x 3.46 m
Great room
Main level
4.86 m x 4.42 m
Kitchen
Main level
6.8 m x 5.04 m
Primary Bedroom
Main level
3.59 m x 3.79 m
Bedroom
Main level
2.97 m x 3.79 m
Laundry room
Main level
2.37 m x 1.67 m
Bathroom
Main level
2.32 m x 2.73 m
Bathroom
Main level
2.37 m x 0.81 m

Location

Learn more about this property
Listing provided by:
ROYAL LEPAGE TRILAND REALTY
MLS® number:
X12421865
Agent:
Ian Sterling Leishman
*Indicates required field
Name is required
Email is required
Please enter a valid phone number (e.g., 416-111-1111).