Lot 71 Harvest Lane, Thames Centre, Ontario N0L 1G2

Listed for:
$859,900
2 beds
2 baths
Listed 16 days ago
House for rent: Lot 71 Harvest Lane, Thames Centre, Ontario N0L 1G2

View all 28 photos

About

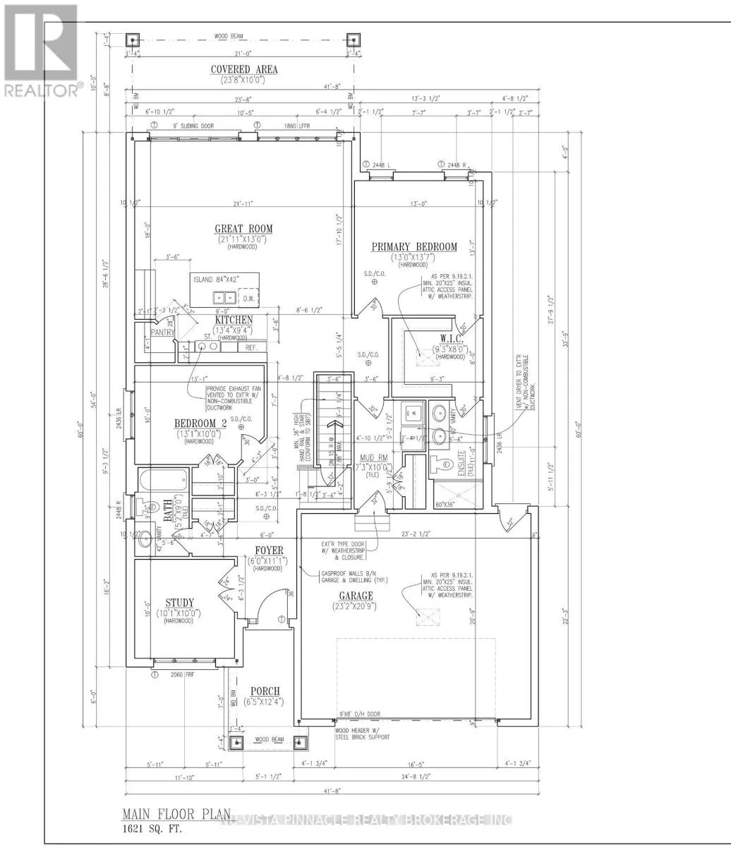
Cross Streets: Boardwalk way and Harvest Lane. ** Directions: Heading south on Dorchester road turn right on boardwalk way and then left on harvest lane. Welcome to The Boardwalk at Millpond, one of the area's most sought-after communities, where modern design meets small-town charm. This to-be-built custom bungalow offers the rare opportunity to create your dream home on a generous 50 ft lot, just steps from scenic walking trails, water views, and everyday amenities. Thoughtfully designed for effortless main-floor living, this home will feature an open-concept layout, great kitchen with pantry and abundant natural light. The spacious kitchen flows seamlessly into the great room and dining area - perfect for entertaining or quiet evenings at home. A private primary retreat, flexible guest space, and high-quality finishes throughout ensure both comfort and style. With the ability to personalize selections and finishes, you can truly make this home your own - all while enjoying the tranquility and prestige of The Boardwalk at Millpond. A rare chance to build new in an established, nature-inspired neighbourhood. Secure your lot and start designing today. Purchase price reflects the primary residence 13% HST rebate, subject to buyer qualification and assignment to the seller. (id:27476)

Property Highlights

MLS® Number
X12763940
Type
Single Family
Community Name
Rural Thames Centre
Ownership Type
Freehold
Land Size
50 x 114 FT
Parking Space Total
4

Building

Building Type
House
Storeys
1.00
Square Footage
1500 - 2000 sqft
Bathrooms Total
2
Bedrooms Above Ground
2
Bedrooms Total
2
Exterior Finish
Stone, Hardboard
Fireplace Present
No
Basement Type
Full
Basement Features
Building Heating Type
Forced air
Heating Fuel
Natural gas
Building Cooling Type
Central air conditioning, Air exchanger

Utilities

Water
Municipal water
Utility Sewer
Sanitary sewer

Room Layout

Bedroom
Main level
4.1402 m x 3.9624 m
Great room
Main level
6.6802 m x 3.9624 m
Bedroom 2
Main level
3.9878 m x 3.048 m
Study
Main level
3.048 m x 3.048 m

Location

Learn more about this property
Listing provided by:
NU-VISTA PINNACLE REALTY BROKERAGE INC
MLS® number:
X12763940
Agent:
Liam Cope
*Indicates required field
Name is required
Email is required
Please enter a valid phone number (e.g., 416-111-1111).

Street Spotlight - For sale