157 Wheeler Avenue, Thames Centre, Ontario N0L 1G2

Listed for:
$1,299,900
5 beds
4 baths
Listed 5 days ago
House for rent: 157 Wheeler Avenue, Thames Centre, Ontario N0L 1G2

View all 50 photos

About

Cross Streets: HAMILTON AND DORCHESTER RD. ** Directions: Hamilton south on mill and south on wheeler home is on the west side near the end of the road. Welcome to this stunning executive two-storey home in sought-after Tiner Estates, where generous proportions and thoughtful upgrades define every space. Boasting 4+1 bedrooms and 3.5 bathrooms, this home offers exceptional room sizes throughout - ideal for growing families and effortless entertaining. The main level features a beautifully appointed kitchen with full-height cabinetry, Corian countertops, gas stove, and an oversized island perfect for gathering. The open living space is anchored by a built-in entertainment unit with gas fireplace, creating a warm and inviting focal point. A convenient main floor laundry/mudroom adds everyday functionality. Upstairs, the spacious primary retreat offers a large walk-in closet and an impressive, fully updated ensuite designed for comfort and relaxation. The fully finished lower level expands your living space with a walk-out to the backyard, wet bar, and expansive recreation room - ideal for hosting and family fun. Step outside to your private backyard oasis featuring a heated fiberglass in-ground pool (2017) with lifetime warranty and low-salt system, updated landscaping (2017), full fencing, and front & back sprinkler systems. Multiple walk-outs to the deck enhance indoor-outdoor living. Additional highlights include a rare 3-door garage with 4 parking spaces and pull-through access. Located minutes from parks, trails, schools, shopping, Hwy 401 access, and London International Airport - this home truly offers the complete package. (id:27476)

Property Highlights

MLS® Number
X12818088
Type
Single Family
Community Name
Rural Thames Centre
Ownership Type
Freehold
Land Size
70 x 160.9 FT
Parking Space Total
10

Building

Building Type
House
Storeys
2.00
Square Footage
2500 - 3000 sqft
Bathrooms Total
4
Bedrooms Above Ground
5
Bedrooms Total
5
Amenities
Fireplace(s)
Exterior Finish
Brick
Fireplace Present
Yes
Basement Type
Full, N/A, N/A (Finished)
Basement Features
Separate entrance
Building Heating Type
Forced air
Heating Fuel
Natural gas
Building Cooling Type
Central air conditioning

Utilities

Water
Municipal water
Utility Sewer
Septic System

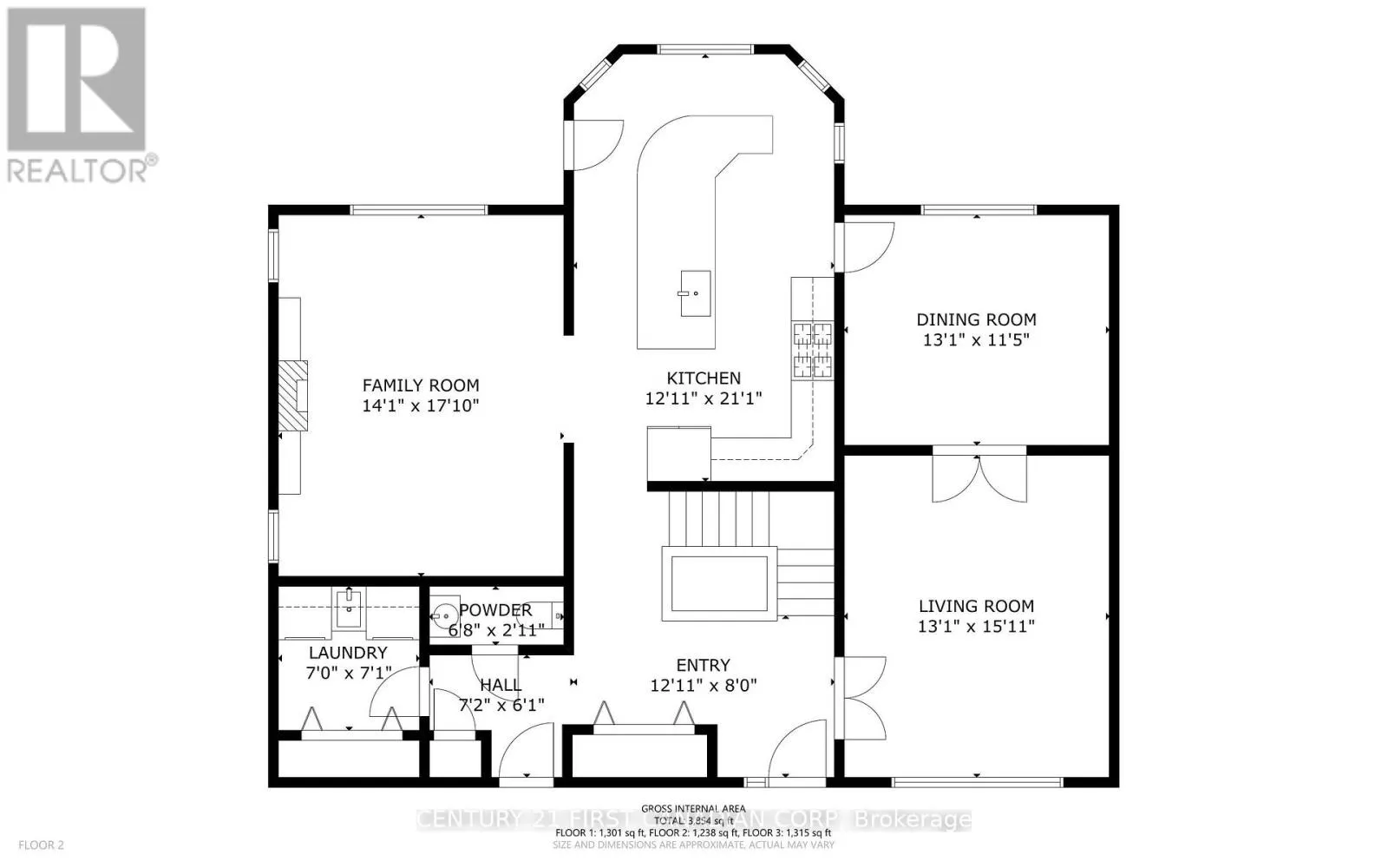
Room Layout

Bedroom
Second level
4.34 m x 4.21 m
Bedroom 2
Second level
4.57 m x 4.31 m
Bedroom 3
Second level
4.34 m x 3.53 m
Primary Bedroom
Second level
6.17 m x 4.16 m
Other
Second level
2.99 m x 2.1 m
Bedroom 5
Lower level
5.74 m x 4.24 m
Other
Lower level
6.29 m x 4.16 m
Recreational, Games room
Lower level
8.3 m x 3.81 m
Family room
Main level
5.46 m x 4.26 m
Kitchen
Main level
6.45 m x 3.91 m
Dining room
Main level
3.98 m x 3.47 m
Living room
Main level
4.85 m x 3.96 m
Laundry room
Main level
2.89 m x 2.13 m

Location

Learn more about this property
Listing provided by:
CENTURY 21 FIRST CANADIAN CORP
MLS® number:
X12818088
Agent:
Adam Salt
*Indicates required field
Name is required
Email is required
Please enter a valid phone number (e.g., 416-111-1111).

Community Spotlight: Homes For sale in Your Neighborhood