212 Foxborough Place, Thames Centre, Ontario N0M 2P0

Listed for:
$994,900
4 beds
2 baths
Listed 5 days ago
House for rent: 212 Foxborough Place, Thames Centre, Ontario N0M 2P0

View all 9 photos

About

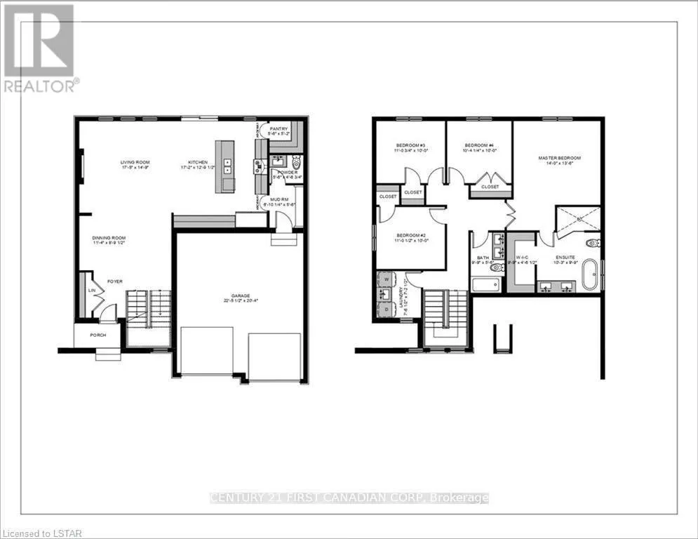
Cross Streets: AGNES. ** Directions: Take Medway Road into Thorndale (turns into Thorndale road), turn right onto Agnes St, turn left onto Foxborough Place. Discover The Aberdeen, a beautifully designed 2,260 sq. ft. TO BE BUILT home that offers 4 bedrooms, 2.5 bathrooms, and a double car garage. With a clean, modern exterior and distinct window placement, this home effortlessly blends contemporary and transitional styles for standout curb appeal. Step inside to find thoughtful architectural details, including arched openings leading to both the walk-in pantry and mudroom, accessible from either side of the kitchen. The open-concept layout connects the kitchen, dining, and living areas ideal for entertaining and everyday living. Upstairs, all four generously sized bedrooms are conveniently located, along with a well-appointed laundry room. The primary suite serves as a luxurious retreat, featuring a spacious walk-in closet and a spa-inspired 5-piece ensuite with a stand-alone tub and glass-enclosed shower. With its unique layout, abundant space, and family-friendly design, The Aberdeen delivers both comfort and sophistication. Additional floor plans and lot options available. Photos shown are from previous models and are for illustration purposes only. Final designs may vary based on client selections. (id:27476)

Property Highlights

MLS® Number
X12946026
Type
Single Family
Community Name
Thorndale
Ownership Type
Freehold
Land Size
47.9 x 142 FT|under 1/2 acre
Parking Space Total
4

Building

Building Type
House
Storeys
2.00
Square Footage
2500 - 3000 sqft
Bathrooms Total
2
Bedrooms Above Ground
4
Bedrooms Total
4
Amenities
Fireplace(s)
Exterior Finish
Concrete, Stucco
Fireplace Present
Yes
Basement Type
Full
Basement Features
Building Heating Type
Forced air
Heating Fuel
Natural gas
Building Cooling Type
Central air conditioning

Utilities

Water
Municipal water
Utility Sewer
Sanitary sewer

Room Layout

Bedroom
Second level
3.35 m x 3.05 m
Bathroom
Second level
2.97 m x 1.68 m
Bedroom
Second level
3.35 m x 3.05 m
Primary Bedroom
Second level
4.27 m x 4.11 m
Other
Second level
3.12 m x 2.97 m
Laundry room
Second level
2.29 m x 2.18 m
Dining room
Main level
3.45 m x 2.67 m
Mud room
Main level
2.08 m x 1.68 m
Bathroom
Main level
1.68 m x 1.37 m
Pantry
Main level
1.68 m x 1.57 m
Kitchen
Main level
5.23 m x 3.89 m
Living room
Main level
5.31 m x 4.5 m

Location

Learn more about this property
Listing provided by:
CENTURY 21 FIRST CANADIAN CORP
MLS® number:
X12946026
Agent:
Jenny Drygas
*Indicates required field
Name is required
Email is required
Please enter a valid phone number (e.g., 416-111-1111).

Street Spotlight - For sale