932 Katia Street, The Nation, Ontario K0A 2M0

Listed for:
$645,800
2 beds
2 baths
Listed 149 days ago
House for rent: 932 Katia Street, The Nation, Ontario K0A 2M0

View all 2 photos

Learn more about this property
Listing provided by:
EXP REALTY
MLS® number:
X12272244
Agent:
Ronald Jr. Mccomber-rozon
*Indicates required field
Name is required
Email is required
Please enter a valid phone number (e.g., 416-111-1111).

About

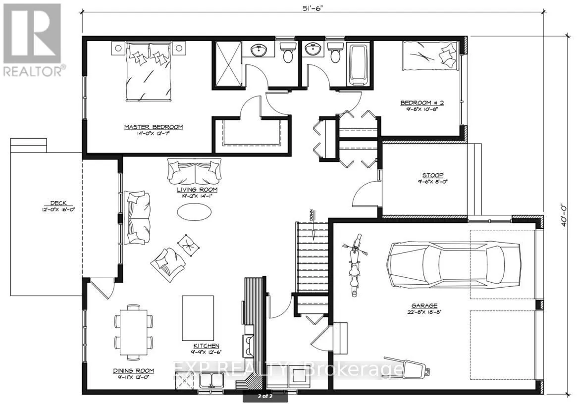
Cross Streets: Mayer. ** Directions: From Mayer, Turn right on Katia. OPEN HOUSE January 8th 5:00pm - 7:00pm AT 63 Chateauguay Street, Embrun. Introducing the Modern Audrey a sleek and stylish bungalow offering 1,315 square feet of thoughtfully designed living space. With 2 bedrooms and 2 full bathrooms, this home is ideal for those seeking one-level living without compromising on comfort or elegance. The open-concept layout creates a seamless flow between living, dining, and kitchen areas, perfect for everyday living and entertaining. The primary suite is a true retreat, complete with its own ensuite bathroom for added privacy and relaxation. A spacious 2-car garage adds functionality and convenience, making this model perfect for downsizers, first-time buyers, or anyone looking for low-maintenance living with a modern edge. Constructed by Leclair Homes, a trusted family-owned builder known for exceeding Canadian Builders Standards. Specializing in custom homes, two-storeys, bungalows, semi-detached, and now offering fully legal secondary dwellings with rental potential in mind, Leclair Homes brings detail-driven craftsmanship and long-term value to every project. (id:27476)

Property Highlights

MLS® Number
X12272244
Type
Single Family
Community Name
616 - Limoges
Ownership Type
Freehold
Land Size
49 x 109 FT
Parking Space Total
6

Building

Building Type
House
Storeys
1.00
Square Footage
1100 - 1500 sqft
Bathrooms Total
2
Bedrooms Above Ground
2
Bedrooms Total
2
Exterior Finish
Stone, Vinyl siding
Fireplace Present
No
Basement Type
Full (Unfinished)
Basement Features
Building Heating Type
Forced air
Heating Fuel
Natural gas
Building Cooling Type
None

Utilities

Water
Municipal water
Utility Sewer
Sanitary sewer

Room Layout

Kitchen
Main level
3 m x 3.8 m
Living room
Main level
5.8 m x 4.3 m
Dining room
Main level
3 m x 3.7 m
Primary Bedroom
Main level
4.3 m x 3.8 m
Bedroom 2
Main level
3 m x 3.3 m

Location

Street Spotlight - For sale