5151 County 10 Road, The Nation, Ontario K0B 1G0

Listed for:
$590,000
2 beds
2 baths
Listed 56 days ago
House for rent: 5151 County 10 Road, The Nation, Ontario K0B 1G0

View all 42 photos

Learn more about this property
Listing provided by:
EXP REALTY
MLS® number:
X12424635
Agent:
Allister Beauchamp
*Indicates required field
Name is required
Email is required
Please enter a valid phone number (e.g., 416-111-1111).

About

From Ottawa: East on Highway 417 and take Exit 51. Turn left and proceed through St. Isidore. Turn right onto County Road 10. The property is located on your left. Welcome to your chance to own a truly extraordinary property where classic charm meets modern elegance. Originally built in the 1920s and thoughtfully renovated from top to bottom, this captivating home offers the perfect fusion of old-world character and contemporary style. Step inside to discover a stunning, fully updated kitchen with sleek finishes and clean lines, seamlessly open to a bright and inviting dining room ideal for entertaining or quiet family dinners. Just beyond, a cozy TV room with a electric fireplace provides the perfect space to unwind. The main floor also offers a convenient laundry area and a stylish powder room. Upstairs, you'll find a spacious and serene primary bedroom along with two more generously sized bedrooms. The upper-level bathroom is nothing short of breathtaking meticulously designed to impress and inspire. The charm continues in the partly finished basement, which offers a second TV room perfect for movie nights or a private retreat. Outside, the magic unfolds across nearly 2 acres of beautifully manicured grounds. Relax on the spacious porch with multiple sitting areas or take a dip in the above-ground pool. A tranquil creek lines the edge of the property, and a dedicated fire pit area invites endless evenings under the stars. Don't miss this rare opportunity to own a spectacular piece of history, lovingly transformed for modern living. (id:27476)

Property Highlights

MLS® Number
X12424635
Type
Single Family
Community Name
605 - The Nation Municipality
Ownership Type
Freehold
Land Size
117.1 x 101.2 FT
Parking Space Total
10

Building

Building Type
House
Storeys
2.00
Square Footage
1100 - 1500 sqft
Bathrooms Total
2
Bedrooms Above Ground
2
Bedrooms Total
2
Amenities
Fireplace(s)
Exterior Finish
Brick, Vinyl siding
Fireplace Present
Yes
Basement Type
Full (Finished)
Basement Features
Building Heating Type
Forced air
Heating Fuel
Propane
Building Cooling Type
Central air conditioning

Utilities

Water
Drilled Well
Utility Sewer
Sanitary sewer

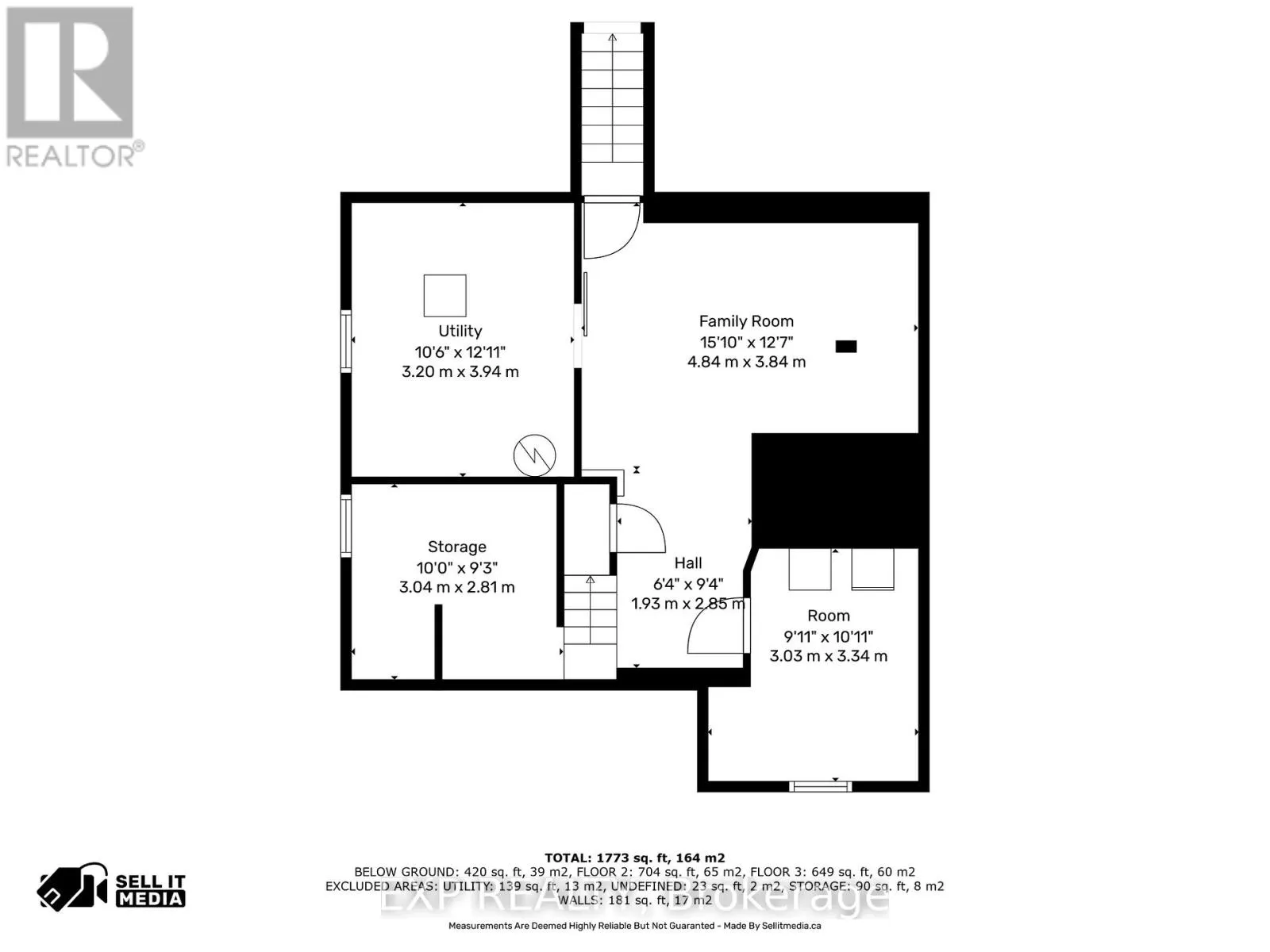
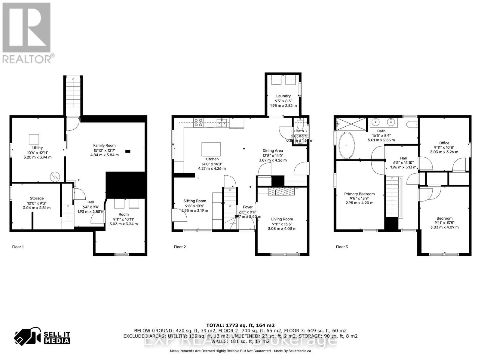
Room Layout

Primary Bedroom
Second level
2.95 m x 4.2 m
Bedroom 2
Second level
3.03 m x 4.09 m
Office
Second level
3.03 m x 3.26 m
Family room
Basement
4.84 m x 3.84 m
Other
Basement
3.04 m x 2.81 m
Other
Basement
3.03 m x 3.34 m
Utility room
Basement
3.2 m x 3.94 m
Foyer
Main level
1.97 m x 2.6 m
Living room
Main level
3.03 m x 4.03 m
Sitting room
Main level
2.95 m x 3.19 m
Kitchen
Main level
4.27 m x 4.26 m
Dining room
Main level
3.87 m x 4.26 m
Laundry room
Main level
1.95 m x 2.52 m

Location