1 - 555 Limoges Street, The Nation, Ontario K0A 2M0

Listed for:
$25
0 beds
0 baths
Listed 23 days ago
Offices for rent: 1 - 555 Limoges Street, The Nation, Ontario K0A 2M0

View all 4 photos

About

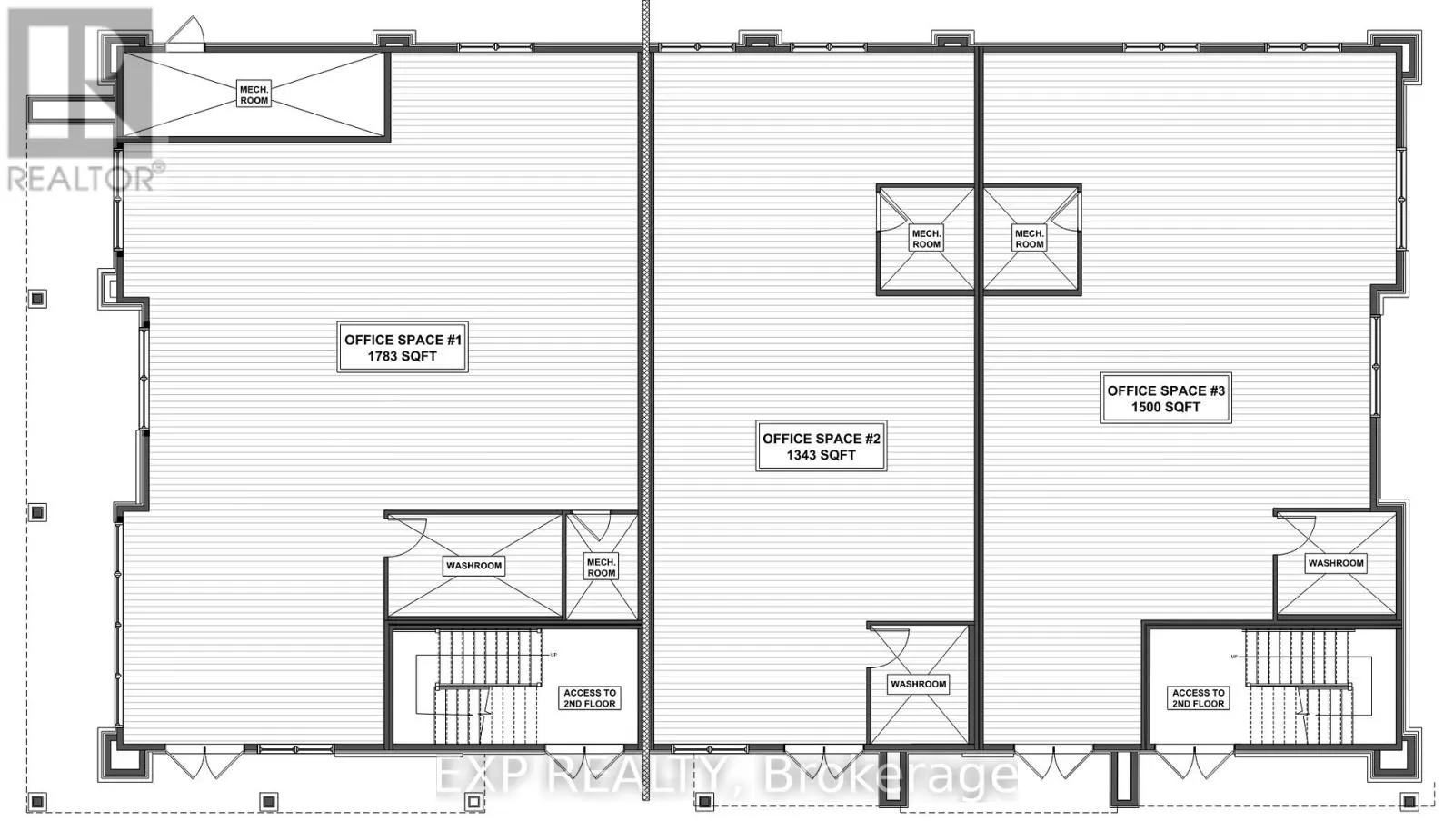
Cross Streets: Linda St & Calypso Street. ** Directions: On Main Street. *** New Construction ready for end of 2026. Prime Office Space in the Heart of Limoges! Amazing opportunity to lease a high-visibility commercial space in the heart of the growing town in Limoges. Located directly on the Main St, this property offers great exposure, plenty of parking, and easy access - ideal for businesses seeking a strong community presence and daily traffic flow. The space is well-suited for a wide range of uses (subject to zoning). The layout provides flexible open-concept areas to be customized to your operational needs. Key Features: Excellent street visibility with strong signage potential Large display windows offering natural light and storefront appeal. High daily traffic count and established neighbouring businesses, Ample on-site and visitor parking, Easy access and close to the Hwy 417, Modern façade with professional curb appeal Suitable for a variety of commercial uses. Only 25 minutes east of Ottawa - making this location ideal for entrepreneurs, franchises, and service providers looking to expand into a thriving suburban market. Don't miss this opportunity to establish your business in a sought-after commercial corridor. Other units of different sizes available, contact listing agent. (id:27476)

Property Highlights

MLS® Number
X12870084
Type
Office
Community Name
616 - Limoges
Land Size
Bldg=150 x 200 FT

Building

Building Type
Offices
Square Footage
1783 sqft
Fireplace Present
No
Basement Type
Basement Features
Building Heating Type
Other
Heating Fuel
Building Cooling Type
Fully air conditioned

Utilities

Water
Municipal water

Location

Learn more about this property
Listing provided by:
EXP REALTY
MLS® number:
X12870084
Agent:
Michel Leger
*Indicates required field
Name is required
Email is required
Please enter a valid phone number (e.g., 416-111-1111).