32 Bounty Avenue, Thorold, Ontario L2V 0B7

Listed for:
$714,900
4 beds
3 baths
Listed 55 days ago
House for rent: 32 Bounty Avenue, Thorold, Ontario L2V 0B7

View all 23 photos

Learn more about this property
Listing provided by:
STREETCITY REALTY INC.
MLS® number:
X12403613
Agent:
Tony Tang
*Indicates required field
Name is required
Email is required
Please enter a valid phone number (e.g., 416-111-1111).

About

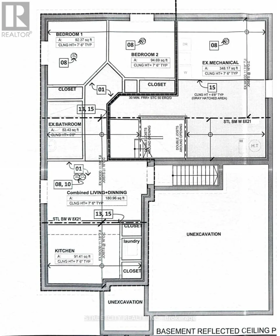
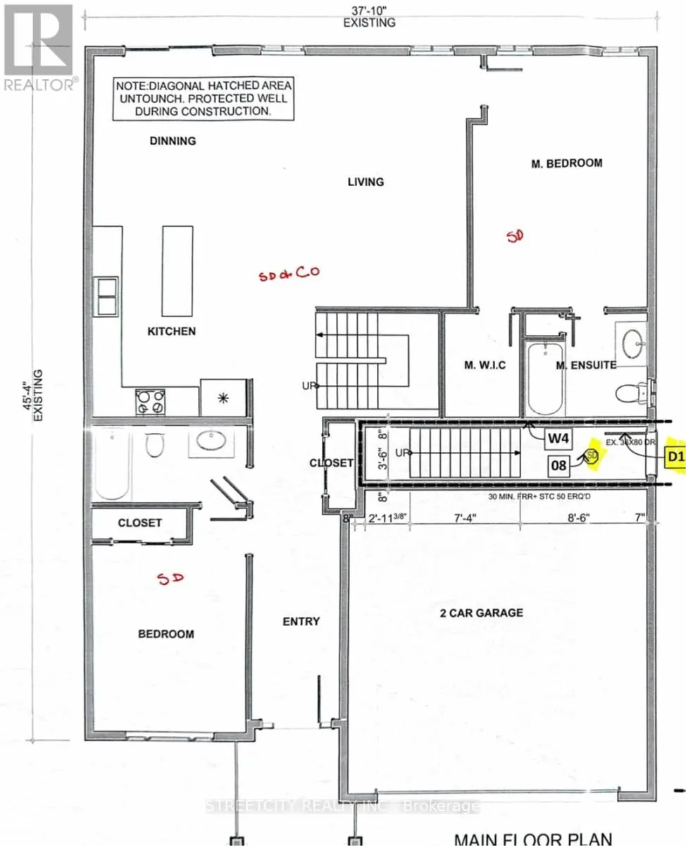
Cross Streets: Davis Rd/ Barker PKWY. ** Directions: Davis Rd turn onto Barker Pkwy- Venture Way- Bounty Ave. Rare Fully Legal Duplex in Rolling Meadows! Gone through legalization process from builder finished in-law suite. Perfect for first-time buyers, retirees, or investors. This beautifully finished bungalow features a 2-bedroom main unit with 9 ceilings, open-concept living, and stainless steel appliances. The basement offers a separate, legalized 2-bedroom unit with full kitchen, in-suite laundry, large egress windows, and private side entrance, ideal for extended family or rental income. Features include 200A electrical service, EV charger potential, AC (2021), and double garage. Unlike many in-law suites nearby, this home is fully legalized and compliant with City of Thorold rental regulations. Close to Brock University, Niagara College, parks, trails, shopping, and highways. There is space in basement of main unit for 3rd bedroom, as seen from floor plan. (id:27476)

Property Highlights

MLS® Number
X12403613
Type
Single Family
Community Name
560 - Rolling Meadows
Ownership Type
Freehold
Land Size
45.9 x 110 FT
Parking Space Total
4

Building

Building Type
House
Storeys
1.00
Square Footage
1100 - 1500 sqft
Bathrooms Total
3
Bedrooms Above Ground
2
Bedrooms Total
4
Amenities
Park, Schools
Exterior Finish
Vinyl siding, Stucco
Fireplace Present
No
Basement Type
N/A, N/A (Finished)
Basement Features
Apartment in basement
Building Heating Type
Forced air
Heating Fuel
Natural gas
Building Cooling Type
Central air conditioning

Utilities

Water
Municipal water
Utility Sewer
Sanitary sewer

Location