3207 96 High St N, Thunder Bay, Ontario P7A 5R3

Listed for:
$423,420
2 beds
1 baths
Listed 20 days ago
Apartment for rent: 3207 96 High St N, Thunder Bay, Ontario P7A 5R3

View all 29 photos

Learn more about this property
Listing provided by:
ROYAL LEPAGE LANNON REALTY
MLS® number:
TB253344
Agent:
Christine Lannon
*Indicates required field
Name is required
Email is required
Please enter a valid phone number (e.g., 416-111-1111).

About

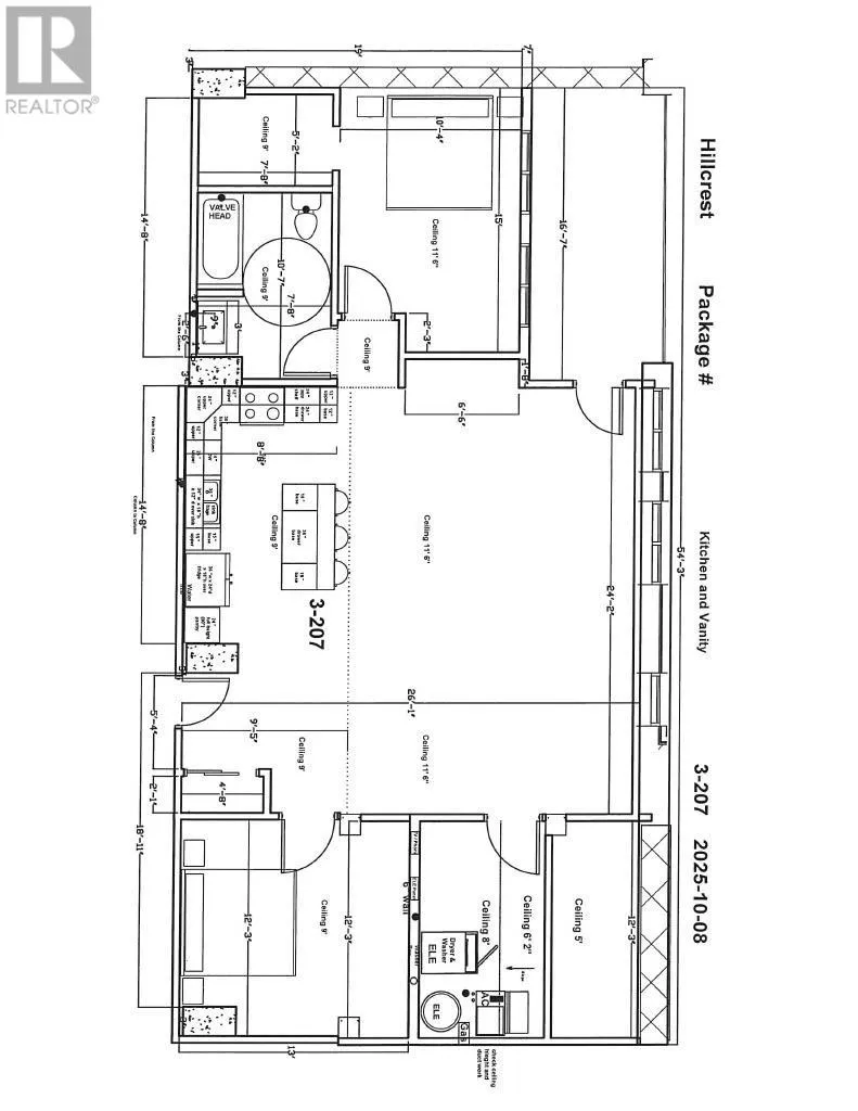
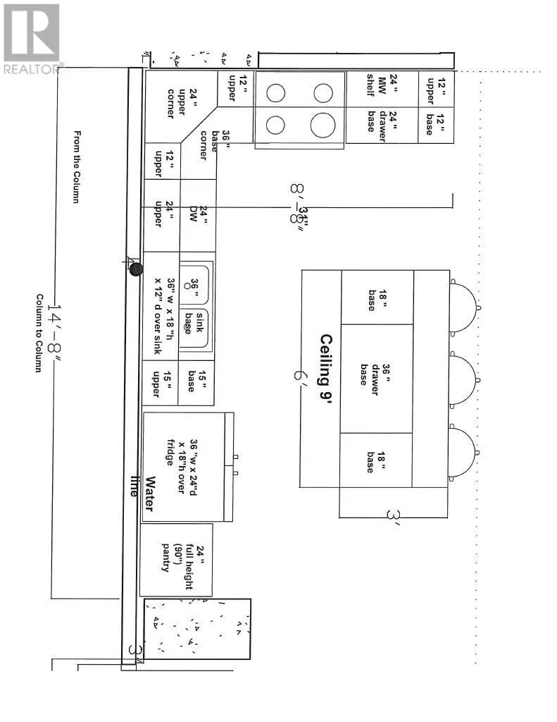
Corner of Van Norman and North High Street. Park at the lower level parking at the very left of bldg. Welcome to #3207 at Hillcrest Neighbour Village Condos — where lifestyle meets comfort in the heart of College Heights. This west-facing 2-bedroom, 1-bath condo offers 1,420 sq. ft. of bright, open living with 10-foot ceilings, a unique layout, and an 18'11" balcony to enjoy Lake Superior sunsets every night. Modern finishes include quartz countertops, quality flooring, and designer fixtures. Enjoy exceptional amenities — rooftop terrace, fitness studio, pickleball & basketball courts, theatre room, and more — all just minutes from downtown Thunder Bay. (id:27476)

Property Highlights

MLS® Number
TB253344
Type
Single Family
Community Name
Thunder Bay
Maintenance Fee
417.00
Ownership Type
Condominium
Land Size
(0 Acres)|under 1/2 acre

Building

Building Type
Apartment
Storeys
1.00
Square Footage
1420 sqft
Bathrooms Total
1
Bedrooms Above Ground
2
Bedrooms Total
2
Amenities
Common Area Indoors, Laundry - In Suite, Storage - Locker
Fireplace Present
No
Basement Type
Basement Features
Building Heating Type
Forced air
Heating Fuel
Natural gas
Building Cooling Type
Air exchanger, Central air conditioning

Utilities

Water
Municipal water
Utility Sewer
Sanitary sewer

Room Layout

Living room
Main level
24'2x16'5
Kitchen
Main level
14'8x8"8
Primary Bedroom
Main level
15'x10'4
Bedroom
Main level
13'x12'3
Bathroom
Main level
4PC

Location

Community Spotlight: Homes For sale in Your Neighborhood