100 Bruce St, Thunder Bay, Ontario P7A 5W6

Listed for:
$159,000
0 beds
0 baths
Listed 42 days ago
100 Bruce St, Thunder Bay, Ontario P7A 5W6

View all 12 photos

Learn more about this property
Listing provided by:
ROYAL LEPAGE LANNON REALTY
MLS® number:
TB253510
Agent:
Keith Holmstrom
*Indicates required field
Name is required
Email is required
Please enter a valid phone number (e.g., 416-111-1111).

About

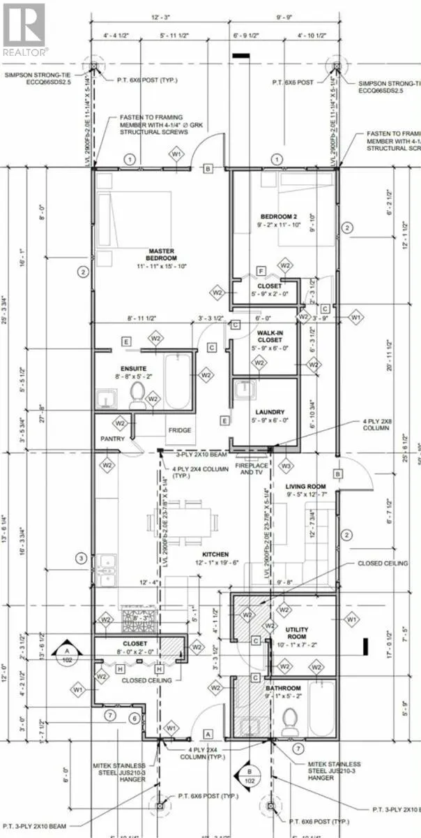
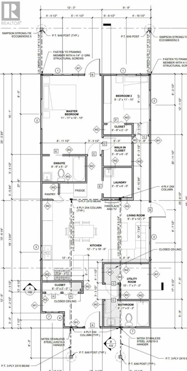
Between Parsons and Theresa Great opportunity in BEAUTIFUL Grandview area! Welcome to 100 Bruce St! All the preliminary work is done! property has an existing 28 x 22 Garage with all Sewer/Water on site., Blueprints and Permits are Completed and can be Transferred for a Fantastic 2 Bedroom, 2 Bath Core Floor. Or Create you own Design! Call for more info, Documents and Feature Sheet available. (id:27476)

Property Highlights

MLS® Number
TB253510
Type
Vacant Land
Community Name
Thunder Bay
Land Size
under 1/2 acre

Building

Fireplace Present
No
Basement Type
Basement Features
Building Heating Type
Heating Fuel
Building Cooling Type

Utilities

Water
Municipal water
Utility Sewer
Municipal sewage system

Location

Community Spotlight: Homes For sale in Your Neighborhood