11 Canary Street, Tillsonburg, Ontario N4G 0K4

Listed for:
$490,000
2 beds
2 baths
Listed 26 days ago
Row / Townhouse for rent: 11 Canary Street, Tillsonburg, Ontario N4G 0K4

View all 26 photos

Learn more about this property
Listing provided by:
ELGIN REALTY LIMITED
MLS® number:
X12480851
Agent:
David Matthews
*Indicates required field
Name is required
Email is required
Please enter a valid phone number (e.g., 416-111-1111).

About

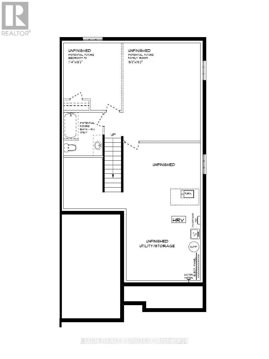
Cross Streets: Braun Ave. & Canary St. ** Directions: North Street E. to Braun Ave., Left on Canary St. Welcome to 11 Canary Street, a beautifully finished freehold end-unit townhome built by Hayhoe Homes. This thoughtfully designed residence features 2 bedrooms, 2 bathrooms, and a single car garage, making it ideal for first-time buyers or those looking to downsize. Enjoy the ease of main floor living with a spacious primary suite that includes a walk-in closet and private ensuite. The open-concept layout showcases 9' ceilings, luxury vinyl plank flooring as per plan, and a stylish kitchen with quartz countertops, a pantry, and a central island that flows seamlessly into a bright great room with cathedral ceiling and a patio door leading to the rear deck. A second bedroom, bathroom, and laundry room complete the main level. The unfinished basement offers excellent potential for a future family room, third bedroom, and additional bathroom. Other highlights include a covered front porch, central air conditioning & HRV system, Tarion New Home Warranty, plus numerous upgraded finishes throughout. Located in the desirable Northcrest Estates community, this home is just minutes from shopping, restaurants, parks, trails, and highway access. Taxes to be assessed. (id:27476)

Property Highlights

MLS® Number
X12480851
Type
Single Family
Community Name
Tillsonburg
Ownership Type
Freehold
Land Size
32.9 x 111.5 FT
Parking Space Total
3

Building

Building Type
Row / Townhouse
Storeys
1.00
Square Footage
1100 - 1500 sqft
Bathrooms Total
2
Bedrooms Above Ground
2
Bedrooms Total
2
Exterior Finish
Brick, Vinyl siding
Fireplace Present
No
Basement Type
N/A (Unfinished)
Basement Features
Building Heating Type
Forced air
Heating Fuel
Natural gas
Building Cooling Type
Central air conditioning

Utilities

Water
Municipal water
Utility Sewer
Sanitary sewer

Room Layout

Location