71 Braun Avenue, Tillsonburg, Ontario N4G 0K4

Listed for:
$520,000
3 beds
3 baths
Listed 26 days ago
Row / Townhouse for rent: 71 Braun Avenue, Tillsonburg, Ontario N4G 0K4

View all 32 photos

Learn more about this property
Listing provided by:
ELGIN REALTY LIMITED
MLS® number:
X12480856
Agent:
David Matthews
*Indicates required field
Name is required
Email is required
Please enter a valid phone number (e.g., 416-111-1111).

About

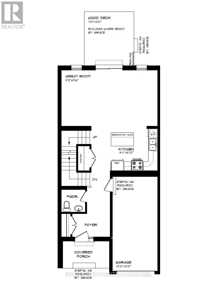
Cross Streets: North Street E. & Braun Ave. ** Directions: North Street E. to Braun Ave. Freehold (No Condo Fees) town interior unit crafted by Hayhoe Homes offers 3 bedrooms, 2.5 bathrooms, and a single car garage. The inviting entrance features a covered porch and spacious foyer that leads to the open concept main floor with 9' ceilings, powder room, and designer kitchen showcasing quartz countertops, an island and pantry, opening to the large great room with sliding glass doors for access to the rear deck. Upstairs, the primary suite includes a large walk-in closet and private 3-piece ensuite with a walk-in shower, along with two additional bedrooms, a 4-piece main bathroom, and convenient bedroom-level laundry. The unfinished basement provides excellent development potential for a future family room and bathroom. Additional highlights include luxury vinyl plank flooring (as per plan), Tarion New Home Warranty, central air conditioning & HRV, plus many upgraded features throughout. Located in the Northcrest Estates community, just minutes from shopping, restaurants, parks, trails, and highway access. Taxes to be assessed. (id:27476)

Property Highlights

MLS® Number
X12480856
Type
Single Family
Community Name
Tillsonburg
Ownership Type
Freehold
Land Size
22.6 x 105 FT
Parking Space Total
3

Building

Building Type
Row / Townhouse
Storeys
2.00
Square Footage
1500 - 2000 sqft
Bathrooms Total
3
Bedrooms Above Ground
3
Bedrooms Total
3
Exterior Finish
Brick, Vinyl siding
Fireplace Present
No
Basement Type
N/A (Unfinished)
Basement Features
Building Heating Type
Forced air
Heating Fuel
Natural gas
Building Cooling Type
Central air conditioning

Utilities

Water
Municipal water
Utility Sewer
Sanitary sewer

Room Layout

Location

Street Spotlight - For sale