37 Greenhill Drive, Tillsonburg, Ontario N4G 0L4

Listed for:
$914,900
2 beds
2 baths
Listed 6 days ago
House for rent: 37 Greenhill Drive, Tillsonburg, Ontario N4G 0L4

View all 4 photos

About

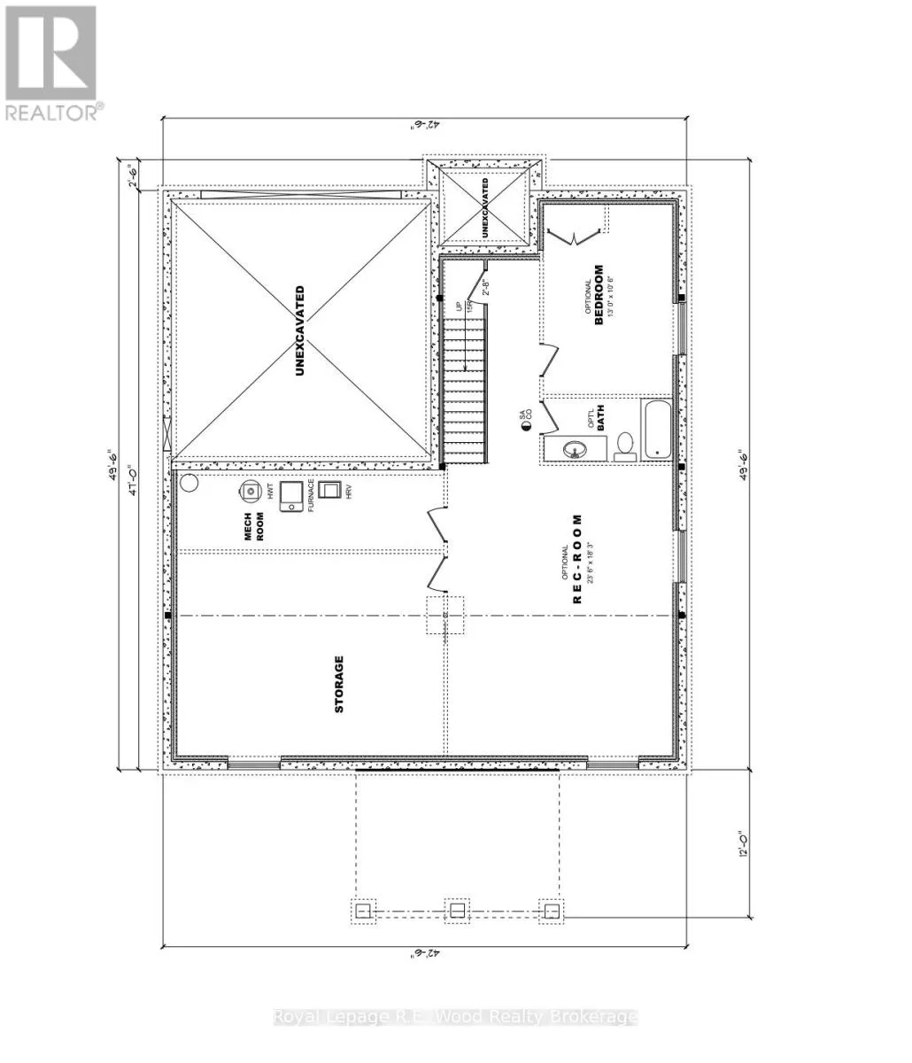
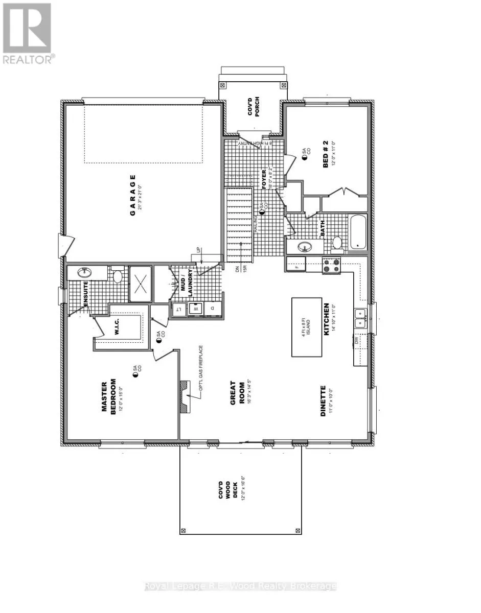
Cross Streets: Baldwin and Greenhill. ** Directions: From Broadway head West on Baldwin. Experience refined living in this beautifully crafted 1,480 sq. ft. custom bungalow by TDI Homes! This to be built home is ideally situated in the prestigious Bridges Estates community at the Bridges Golf Course. Showcasing timeless Craftsman-style architecture with striking post and beam detailing, this thoughtfully designed home offers an open-concept layout with 9' ceilings and oversized windows that fill the space with natural light. The inviting great room features an open design and stunning stone-surround fireplace-perfect for relaxing or entertaining. The custom kitchen is both stylish and functional, complete with quartz countertops, premium cabinetry, and a spacious island ideal for gathering.This home offers 2 generous bedrooms and 2 well-appointed bathrooms, including a luxurious primary suite with a walk-in closet and a spa-inspired ensuite featuring a glass and tile shower, and quartz counters. The main bathroom is finished with quality fixtures, including a right-height toilet, tub/shower surround, and coordinated cabinetry. A double car garage provides ample space and convenience, connecting to a practical mudroom/laundry area with built-in storage. Step outside to a covered rear deck-perfect for enjoying outdoor living in comfort. Premium finishes are showcased throughout, and early buyers will appreciate the opportunity to personalize interior selections, including flooring, cabinetry, trim, and paint, allowing you to create a home that truly reflects your style. Relaxed living, in style. (id:27476)

Property Highlights

MLS® Number
X12985570
Type
Single Family
Community Name
Tillsonburg
Ownership Type
Freehold
Land Size
60 x 120 FT
Parking Space Total
4

Building

Building Type
House
Storeys
1.00
Square Footage
1100 - 1500 sqft
Bathrooms Total
2
Bedrooms Above Ground
2
Bedrooms Total
2
Exterior Finish
Stone
Fireplace Present
Yes
Basement Type
Full
Basement Features
Building Heating Type
Forced air
Heating Fuel
Natural gas
Building Cooling Type
Central air conditioning, Air exchanger

Utilities

Water
Municipal water
Utility Sewer
Sanitary sewer

Location

Learn more about this property
Listing provided by:
Royal Lepage R.E. Wood Realty Brokerage
MLS® number:
X12985570
Agent:
David Bennett
*Indicates required field
Name is required
Email is required
Please enter a valid phone number (e.g., 416-111-1111).