257 15 Concession E, Tiny, Ontario L9M 0N5

Listed for:
$1,150,000
4 beds
2 baths
Listed Today
House for rent: 257 15 Concession E, Tiny, Ontario L9M 0N5

View all 49 photos

About

Cross Streets: county road 6/ concession 15 E. ** Directions: county road 6 to Concession rd 15 E. Welcome to your private 50-acre country retreat with stunning views of the Escarpment. Surrounded by mature forest and natural beauty, this exceptional property offers privacy, tranquility, and refined country living. The thoughtfully designed home features soaring ceilings and an open concept main floor connecting the kitchen, dining, and living areas, anchored by a striking floor-to-ceiling stone wood-burning fireplace. A bright three season sunroom overlooks beautifully manicured gardens and expansive grounds. The main level offers two spacious bedrooms, a full bathroom, and a convenient main floor workshop/utility. Two additional bedrooms and a second full bathroom are located on the upper level, along with generous storage throughout. Year-round comfort is provided by forced-air propane heating, a heat pump, air conditioning, on-demand hot water, an iron filtration system, and a backup generator. Outdoor features include a solar-heated in-ground pool and over 2 km of trails for year round recreation. A former Christmas tree farm at the rear of the property adds to its charm. A two car garage provides ample storage, and the property is ideally located just minutes from Penetanguishene, Midland, and local amenities offering peaceful rural living with modern comforts. (id:27476)

Property Highlights

MLS® Number
S12832532
Type
Single Family
Community Name
Rural Tiny
Ownership Type
Freehold
Land Size
1010.5 x 2094 FT|50 - 100 acres
Parking Space Total
12

Building

Building Type
House
Storeys
2.00
Square Footage
2000 - 2500 sqft
Bathrooms Total
2
Bedrooms Above Ground
4
Bedrooms Total
4
Amenities
Fireplace(s)
Exterior Finish
Vinyl siding
Fireplace Present
Yes
Basement Type
Crawl space
Basement Features
Building Heating Type
Baseboard heaters, Forced air, Heat Pump, Not known
Heating Fuel
Electric, Other, Propane, Wood
Building Cooling Type
Wall unit

Utilities

Power
Generator
Utility Sewer
Septic System

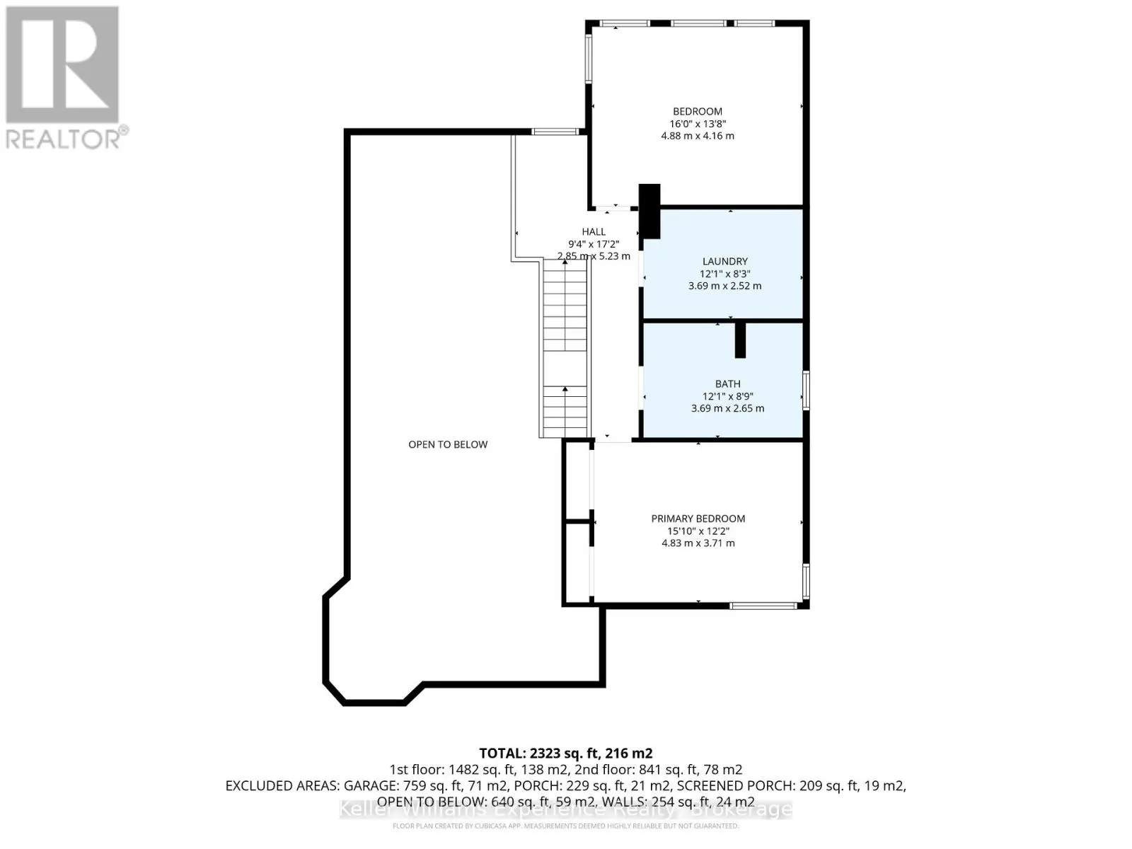
Room Layout

Bathroom
Second level
3.69 m x 2.65 m
Primary Bedroom
Second level
4.83 m x 3.71 m
Bedroom 3
Second level
4.88 m x 4.16 m
Laundry room
Second level
3.69 m x 2.52 m
Kitchen
Main level
3.95 m x 3.09 m
Eating area
Main level
2.3 m x 3.52 m
Dining room
Main level
7.72 m x 3.28 m
Living room
Main level
6.64 m x 6.26 m
Sunroom
Main level
3.79 m x 5.1 m
Bedroom
Main level
4.88 m x 3.59 m
Bedroom 2
Main level
3.73 m x 2.94 m
Bathroom
Main level
2.58 m x 1.56 m

Location

Learn more about this property
Listing provided by:
Keller Williams Experience Realty
MLS® number:
S12832532
Agent:
Eric Beutler
*Indicates required field
Name is required
Email is required
Please enter a valid phone number (e.g., 416-111-1111).