597 Lafontaine Road W, Tiny, Ontario L9M 0L7

Listed for:
$1,399,900
4 beds
3 baths
Listed 16 days ago
House for rent: 597 Lafontaine  Road W, Tiny, Ontario L9M 0L7

View all 42 photos

About

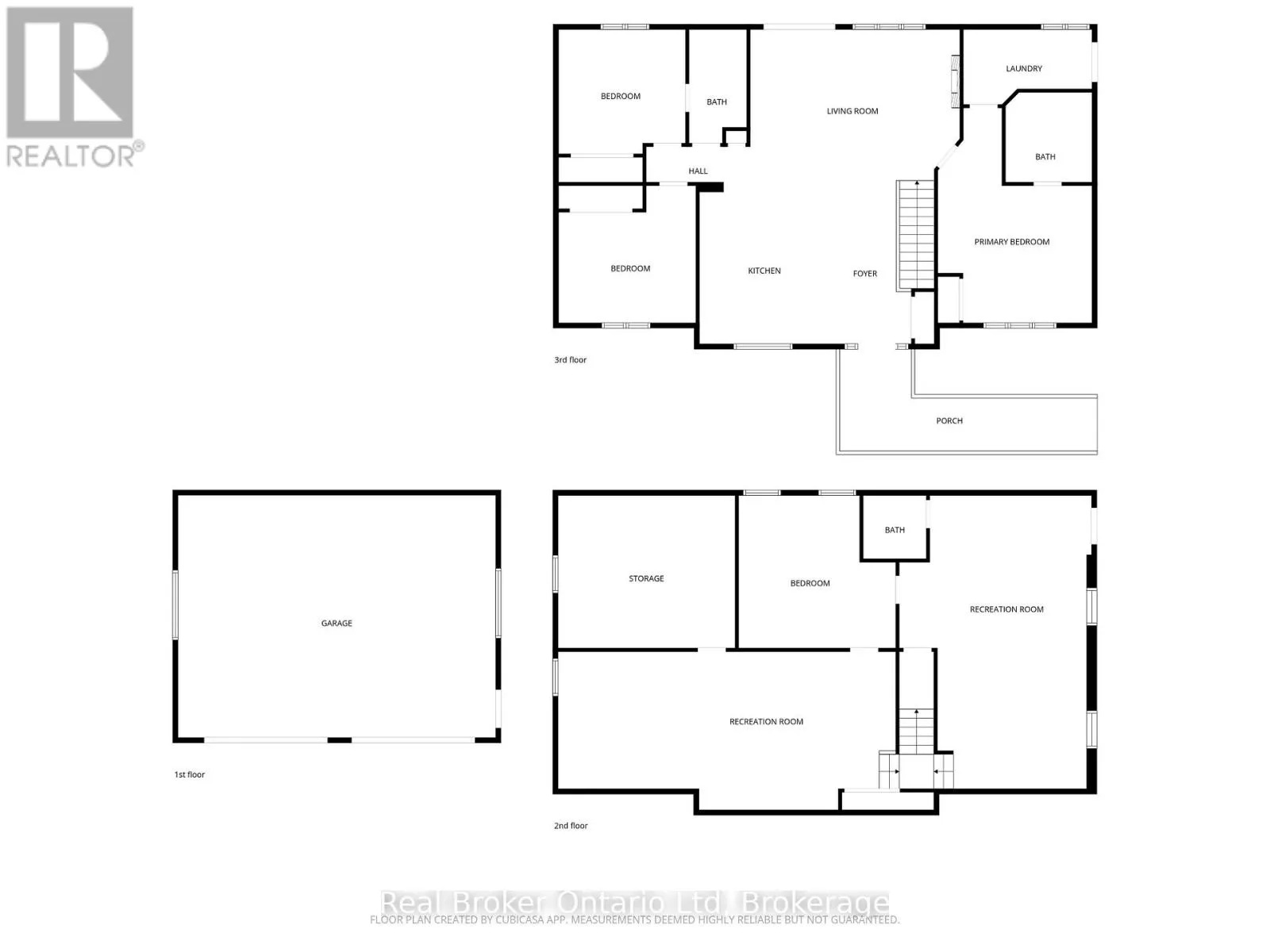
Cross Streets: Concession 16 W (Lafontaine Road W)/Cedar Point Road. ** Directions: Hwy 93 to Balm Beach Rd to County Rd 6 N to Concession 16 W (Lafontaine Rd W). Driveway is shared-upon arrival proceed to second house (Bungalow on right). Rare Multi-Generational Home with Full Wheelchair Accessibility - Completed in December of 2025. A truly unique property designed for families who want to live close while maintaining independence. This stunning custom home offers full wheelchair accessibility, including an elevator/lift, wide open spaces, and a private accessible suite, making it ideal for keeping loved ones comfortably at home. The bright, open-concept living area features an expanse of windows & garden doors offering an abundance of natural light with westerly views of the property and a walkout to the back deck. Open to the breathtaking kitchen with a large center island; beautiful finishes and top of the line appliances, you have a wonderful gathering space for everyday living. The main level features two bedrooms and a bathroom in one wing, while the accessible suite and main floor laundry provide convenience and privacy located on the opposite side of the living area. The fully finished basement offers additional living space for extended family, featuring 9' ceilings and Egress-sized windows. Adding exceptional value to the property, you will find a separate self-contained 2 storey home with 3-bedrooms & 2-baths - perfect for rental income, caregivers, or family members who want their own space. Many improvements over the years include kitchen and bathroom renos; new furnace in Dec 2021, and new siding, soffit, and fascia, to name a few. Complete with an oversized detached garage (10 years old)with an unfinished loft above and located just minutes from the beach, this is a one-of-a-kind property. Truly a remarkable offering that must be seen to fully appreciate all that this property has to offer. (id:27476)

Property Highlights

MLS® Number
S12851078
Type
Single Family
Community Name
Rural Tiny
Ownership Type
Freehold
Land Size
448.9 x 207.5 FT ; 88.26 x 416.53 x 207.51 x 98.01 x 336.59|1/2 - 1.99 acres
Parking Space Total
8

Building

Building Type
House
Storeys
1.00
Square Footage
1500 - 2000 sqft
Bathrooms Total
3
Bedrooms Above Ground
3
Bedrooms Total
4
Amenities
Fireplace(s) Beach, Park, Golf Nearby
Exterior Finish
Vinyl siding
Fireplace Present
Yes
Basement Type
N/A (Finished), Full, N/A (Other, See Remarks)
Basement Features
Building Heating Type
Forced air
Heating Fuel
Propane
Building Cooling Type
Central air conditioning

Utilities

Water
Drilled Well
Utility Sewer
Septic System

Room Layout

Utility room
Lower level
4.43 m x 5.13 m
Family room
Lower level
4.59 m x 9.79 m
Recreational, Games room
Lower level
27.11 m x 5.42 m
Bedroom 4
Lower level
4.43 m x 4.55 m
Foyer
Main level
4.69 m x 2.4 m
Kitchen
Main level
4.69 m x 3.74 m
Living room
Main level
4.43 m x 6.08 m
Primary Bedroom
Main level
6.23 m x 4.47 m
Bedroom 2
Main level
3.98 m x 3.98 m
Bedroom 3
Main level
3.61 m x 3.68 m
Laundry room
Main level
2.18 m x 3.73 m

Location

Learn more about this property
Listing provided by:
Real Broker Ontario Ltd.
MLS® number:
S12851078
Agent:
Lorraine Jordan
*Indicates required field
Name is required
Email is required
Please enter a valid phone number (e.g., 416-111-1111).

Street Spotlight - For sale