397 Silver Birch Drive, Tiny, Ontario L9M 0M5

Listed for:
$825,000
3 beds
3 baths
Listed 14 days ago
House for rent: 397 Silver Birch Drive, Tiny, Ontario L9M 0M5

View all 50 photos

About

Cross Streets: Chem du Loup Rd. ** Directions: Take County Road 6 N, (this turns into Chem du Loup Rd.). Take a Right onto Silver Birch Dr. Follow to sign, on the right. Welcome to your luxurious country retreat in the prestigious Silver Birch Beach area near Thunder Beach. This stunning 2-story home, custom built in 2005, boasts approximately 3000 sq.ft. of finished living space and sits on an Acre of forested land. The Home features 3 bedrooms, 3 bathrooms, and a spacious attached garage with plenty of storage and onsite parking. Step inside and be greeted by the warmth of Tamarak wood flooring and vaulted wood beam ceilings in the Great Room, complete with a cozy wood-burning fireplace. The expansive custom kitchen features cherry wood cabinetry, an eat-in center island, and stainless steel appliances. The dining area has both a side and rear walkout, excellent for BBQing on warm summer nights. The primary bedroom offers a tranquil escape with vaulted ceiling, ensuite bathroom complete with glass & tile shower, walk-in closet, and additional storage room. Downstairs, you'll find two large bedrooms, a versatile rec room, a full 4-pc bathroom, as well as a laundry/utility room. Step outside and enjoy the beauty of nature from the covered front porch, and wrap around deck, overlooking more than a half an acre of private forested rear yard. With access to the lake, sandy beach, and breathtaking sunsets just a short stroll away, this property is truly a slice of paradise. Don't miss your chance to make this dream home your own in this sought after community! Home owners also receive Parking Passes issued by the Township to access parking for the main beaches of Thunder Beach and the surrounding area. (id:27476)

Property Highlights

MLS® Number
S12898068
Type
Single Family
Community Name
Rural Tiny
Ownership Type
Freehold
Land Size
98.3 x 350 FT|1/2 - 1.99 acres
Parking Space Total
6

Building

Building Type
House
Storeys
2.00
Square Footage
1500 - 2000 sqft
Bathrooms Total
3
Bedrooms Above Ground
1
Bedrooms Total
3
Amenities
Fireplace(s) Beach
Exterior Finish
Hardboard
Fireplace Present
Yes
Basement Type
Full, N/A (Finished), N/A
Basement Features
Walk out, Separate entrance
Building Heating Type
Forced air
Heating Fuel
Natural gas
Building Cooling Type

Utilities

Water
Drilled Well
Utility Sewer
Septic System

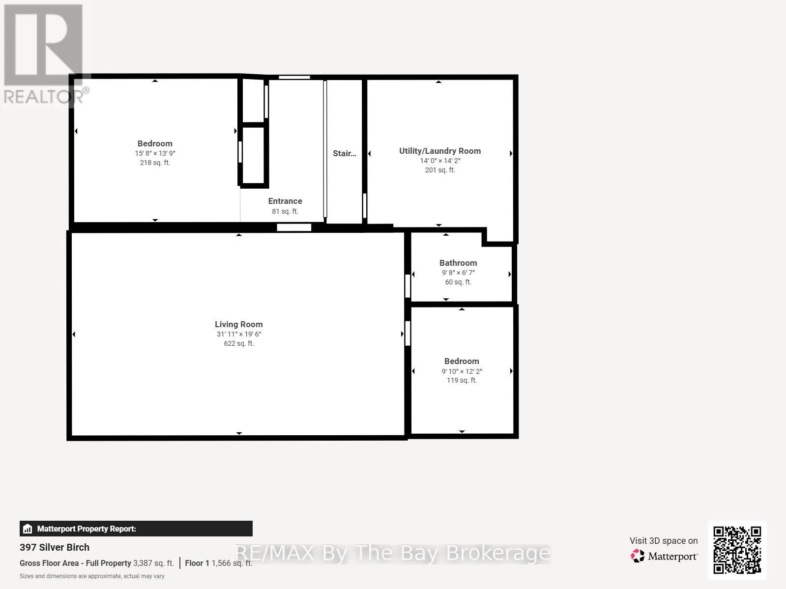
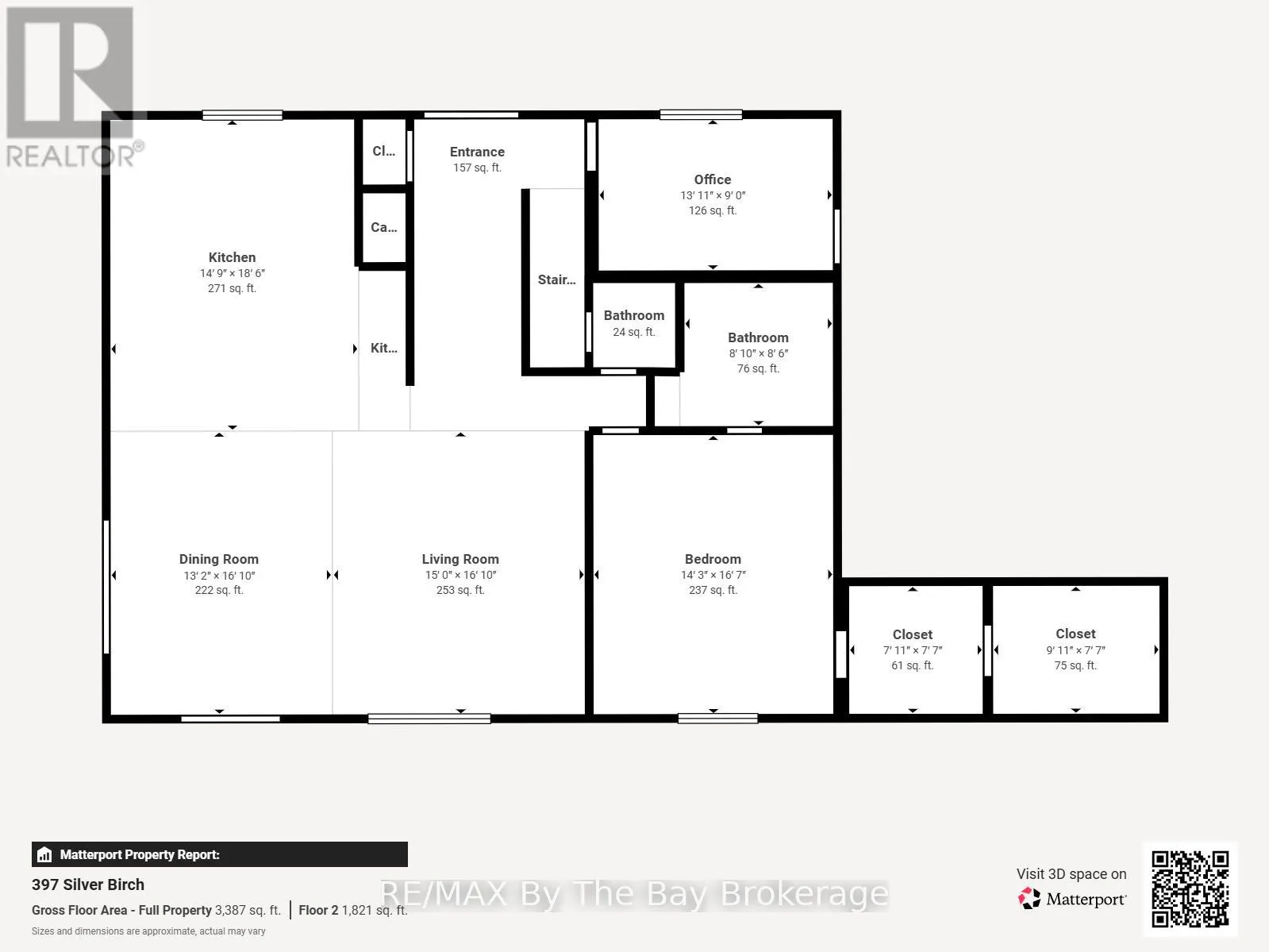
Room Layout

Bedroom 2
Lower level
4.55 m x 4.09 m
Bedroom 3
Lower level
2.89 m x 3.61 m
Recreational, Games room
Lower level
9.2 m x 5.72 m
Laundry room
Lower level
4.16 m x 4.27 m
Primary Bedroom
Main level
4.12 m x 4.82 m
Family room
Main level
4.93 m x 4.01 m
Kitchen
Main level
5.33 m x 4.62 m
Office
Main level
4.21 m x 2.54 m
Dining room
Main level
4.93 m x 4.32 m

Location

Learn more about this property
Listing provided by:
RE/MAX By The Bay Brokerage
MLS® number:
S12898068
Agent:
David Scott
*Indicates required field
Name is required
Email is required
Please enter a valid phone number (e.g., 416-111-1111).

Community Spotlight: Homes For sale in Your Neighborhood