1020 Dorcas Bay Road, Tobermory, Ontario N0H 2R0

Listed for:
$709,999
3 beds
2 baths
Listed 1 day ago
House for rent: 1020 Dorcas Bay Road, Tobermory, Ontario N0H 2R0

View all 50 photos

About

From Highway 6 N turn left on Johnsons Harbour Road then right onto Dorcas Bay Road YEAR ROUND WATERFRONT LIVING IN TOBERMORY. This beautiful property is fully winterized and lovingly maintained by current owners, who have exclusively enjoyed it for their private use for many years. You'll have your own view of the Northern Bruce's famous stunning sunsets from your large back deck or seated by the fire right at the water. When you enter the residence from the spacious driveway you will find two bedrooms, an open living room, eating area and laundry space w/walkout to covered patio, plus a 3 pc bathroom. Upstairs is the large primary bedroom, recently renovated bathroom with heated floors, large, bright open living room/dining/kitchen that opens out onto your huge deck w/unobstructed views. All interior doors & trim handcrafted from local pine. The two levels could easily be separated for in-law suite. Heating and A/C provided by 3 high efficiency Mitsubishi mini-split air-sourced heat pumps. Heating back up provided by baseboard heaters & propane fireplace. Massive outdoor space with large flat open area suitable for outdoor sports & activities. Enjoy your own butterfly sanctuary in the large pollinator garden. New Roof in 2014, Exterior Professionally painted in 2025. Large Storage Shed. Most Furniture in included. Very quiet/private location & a short drive to the world famous Grotto, Singing Sands Beach or into town where you will find shopping, restaurants, boat tours & more. This is a truly exceptional property. (id:27476)

Property Highlights

MLS® Number
40820519
Type
Single Family
Ownership Type
Freehold
Land Size
1/2 - 1.99 acres
Parking Space Total
10

Building

Building Type
House
Storeys
2.00
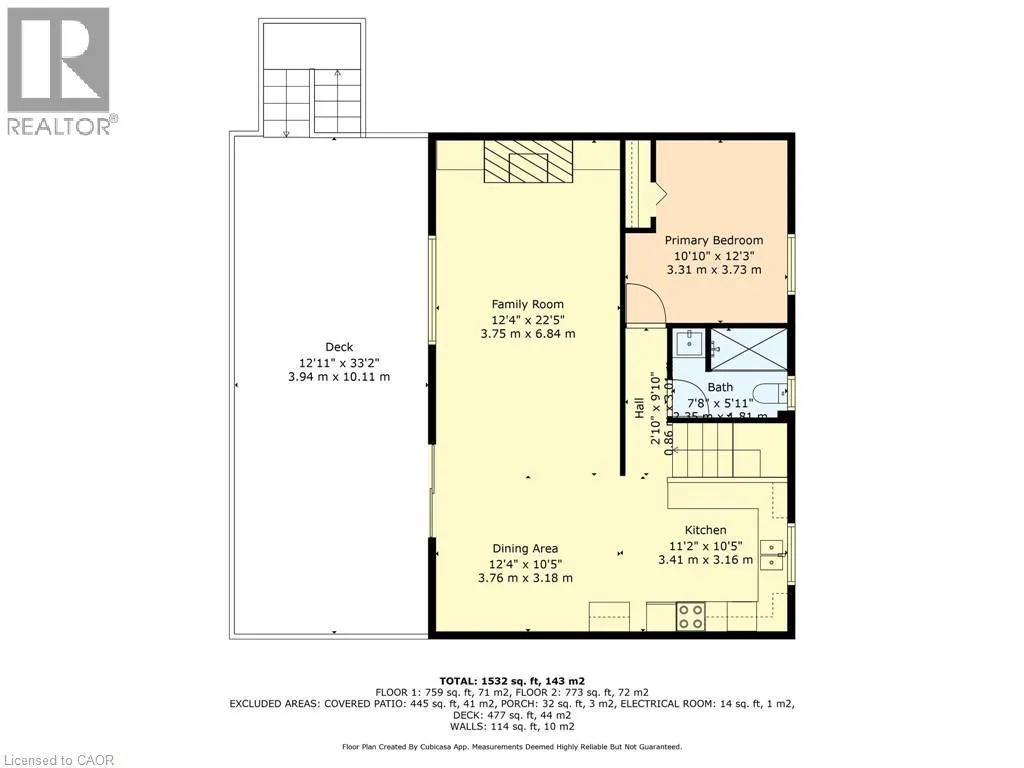
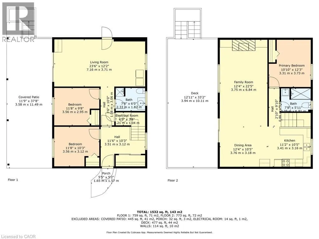
Square Footage
1532 sqft
Bathrooms Total
2
Bedrooms Above Ground
3
Bedrooms Total
3
Amenities
Beach
Fireplace Present
No
Basement Type
None
Basement Features
Building Heating Type
Heating Fuel
Building Cooling Type
Wall unit

Utilities

Water
Drilled Well
Utility Sewer
Septic System

Room Layout

3pc Bathroom
Second level
7'8'' x 5'11''
Primary Bedroom
Second level
10'10'' x 12'3''
Dining room
Second level
12'4'' x 10'5''
Family room
Second level
12'4'' x 22'5''
3pc Bathroom
Main level
7'8'' x 6'0''
Bedroom
Main level
11'8'' x 10'3''
Bedroom
Main level
11'8'' x 9'8''
Living room/Dining room
Main level
23'6'' x 12'2''

Location

Learn more about this property
Listing provided by:
Keller Williams Complete Realty
MLS® number:
40820519
Agent:
Ruth Elizabeth Lewis
*Indicates required field
Name is required
Email is required
Please enter a valid phone number (e.g., 416-111-1111).