598 Bathurst Street, Toronto, Ontario M5S 2P9

Listed for:
$1,299,900
10 beds
5 baths
Listed 152 days ago
House for rent: 598 Bathurst Street, Toronto, Ontario M5S 2P9

View all 10 photos

Learn more about this property
Listing provided by:
AIMHOME REALTY INC.
MLS® number:
C12171019
Agent:
Juncheng Wang
*Indicates required field
Name is required
Email is required
Please enter a valid phone number (e.g., 416-111-1111).

About

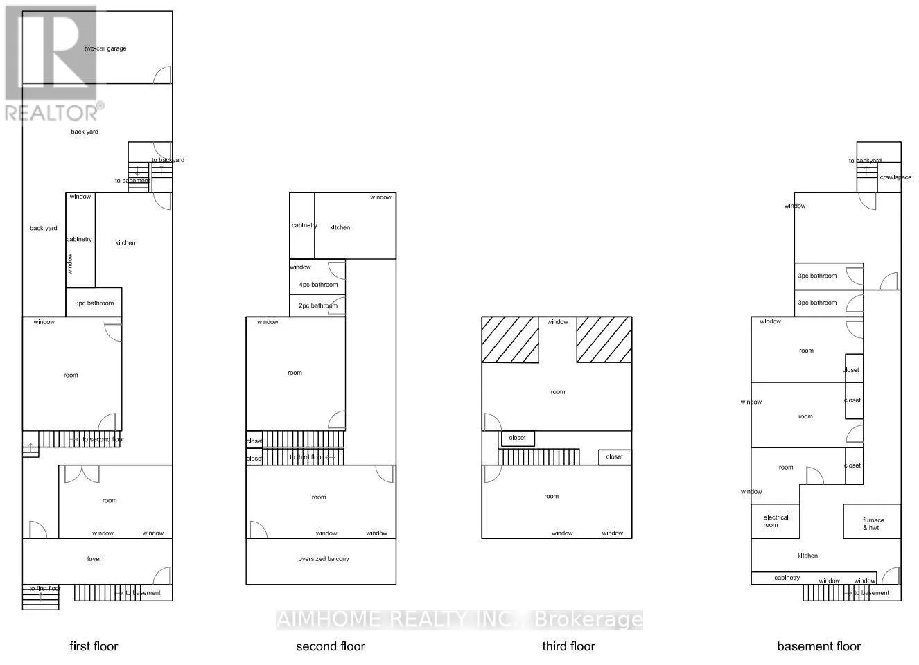
Bathurst/College Rare Investment Opportunity! Motivated Seller! Three-storey home with 2 bedrooms per floor. Third Floor: 2 Bedrooms. (Potential for expansion on existing flat roof, can make another bedroom.) Second Floor: 2 Bedrooms, 2 bathrooms, 1 kitchen. (Potential for converting the street-facing balcony to an interior space). Main Floor: 2 Bedrooms, 1 bathroom, 1 kitchen. Fully finished basement with separate entrance: 4 bedrooms, 1 kitchen, 2 bathrooms. Laneway-access double garage with potential to build a 2-storey, 800 sqft laneway suite.Huge rental income potential.Steps to TTC, near U of T, George Brown College, Toronto Western Hospital, supermarkets, restaurants & more. Dont miss out! (id:27476)

Property Highlights

MLS® Number
C12171019
Type
Single Family
Community Name
Palmerston-Little Italy
Ownership Type
Freehold
Land Size
18.1 x 129 FT
Parking Space Total
2

Building

Building Type
House
Storeys
3.00
Square Footage
2000 - 2500 sqft
Bathrooms Total
5
Bedrooms Above Ground
6
Bedrooms Total
10
Amenities
Public Transit, Park, Hospital
Exterior Finish
Brick
Fireplace Present
No
Basement Type
N/A, N/A (Finished)
Basement Features
Separate entrance
Building Heating Type
Forced air
Heating Fuel
Natural gas
Building Cooling Type
Central air conditioning

Utilities

Water
Municipal water
Utility Sewer
Sanitary sewer

Location

Street Spotlight - For sale