1801 - 62 Wellesley Street W, Toronto, Ontario M5S 2X3

Listed for:
$1,099,999
4 beds
2 baths
Listed 205 days ago
Apartment for rent: 1801 - 62 Wellesley Street W, Toronto, Ontario M5S 2X3

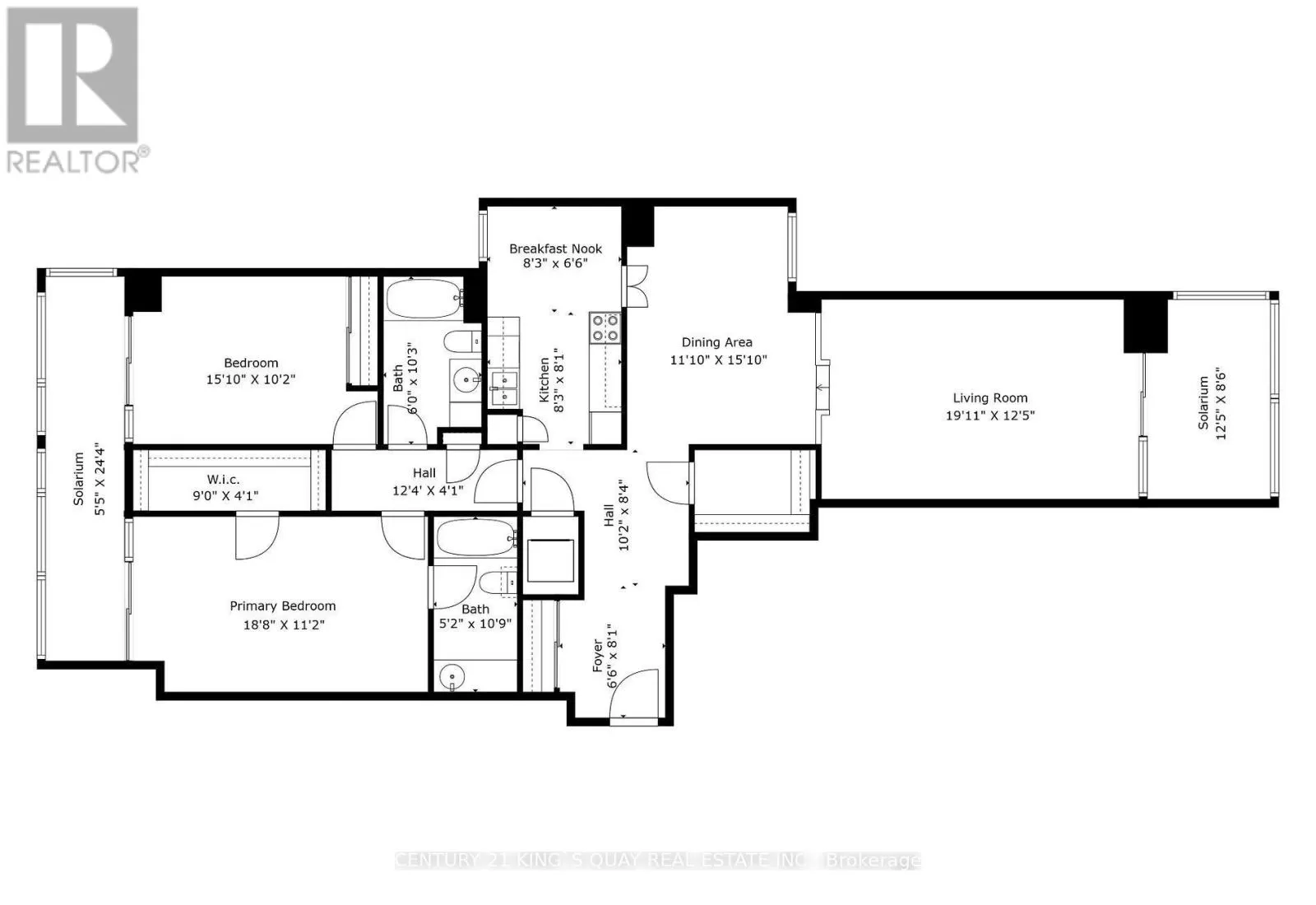
View all 47 photos

About

Bay & Wellesley Welcome to Queen's Park Place! Boutique building with only 100 suites. Unit 1801 is a sprawling 2-bedroom, 2-bath suite with over 1,580 square feet of living space. The unique floor plan features a retro-chic sunken living room, separate dining area, a large eat-in kitchen, two generously sized bedrooms with 2 full baths and stunning north and south views from two sun-filled sunrooms, both offering clear City views. An abundance of storage throughout includes a kitchen pantry, an extra-large en-suite storage locker, a linen closet, and a 9-foot-wide walk-in closet in the primary bedroom. Multiple temperature control systems are installed in the living room, dining room, bedroom, and sunroom, supported by three HVAC units to ensure optimal comfort throughout the unit, allowing people in different areas to enjoy personalized climate control. The size and scale of this well-designed home offer endless potential. Enjoy a prime location just steps to Queen's Park, University of Toronto, major hospitals, and both Wellesley and Queen's Park subway stations. Surrounded by premier shopping, dining, cultural landmarks, and green spaces. A fantastic opportunity for end-users or investors seeking value, space, and location in one of Toronto's most dynamic neighbourhoods. (id:27476)

Property Highlights

MLS® Number
C12250832
Type
Single Family
Community Name
Bay Street Corridor
Maintenance Fee
1570.00
Ownership Type
Condominium/Strata
Parking Space Total
1

Building

Building Type
Apartment
Square Footage
1400 - 1599 sqft
Bathrooms Total
2
Bedrooms Above Ground
2
Bedrooms Total
4
Amenities
Exercise Centre, Sauna, Visitor Parking, Separate Heating Controls, Security/Concierge Hospital, Park, Public Transit
Exterior Finish
Brick, Concrete
Fireplace Present
No
Basement Type
None
Basement Features
Building Heating Type
Forced air
Heating Fuel
Natural gas
Building Cooling Type
Central air conditioning, Air exchanger

Location

Learn more about this property
Listing provided by:
CENTURY 21 KING'S QUAY REAL ESTATE INC.
MLS® number:
C12250832
Agent:
Tammy Zhao
*Indicates required field
Name is required
Email is required
Please enter a valid phone number (e.g., 416-111-1111).

Street Spotlight - For sale